

Total Heated Area
2,558 sq. ft.
1st Floor
1,953 sq. ft.
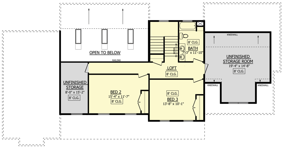
2nd Floor
674 sq. ft.
Basement Unfinished
1,889 sq. ft.
Bonus
364 sq. ft.
Bedrooms
3
Full bathrooms
2
Half bathrooms
1
Standard Foundations
Basement
Exterior Walls
2x4
Optional Type(s)
2x6
Width
82' 8"
Depth
42' 8"
Max Ridge Height
28' 2"
Type
Attached, Standard
Area
736 sq. ft.
Count
3 Cars
Entry Location
Side
First Floor
9' 2"
Second Floor
8' 2"
Primary Pitch
10 on 12
Secondary Pitch
12 on 12
Framing Type
Stick And Truss
Total Heated Area
2,558 sq. ft.
1st Floor
1,953 sq. ft.
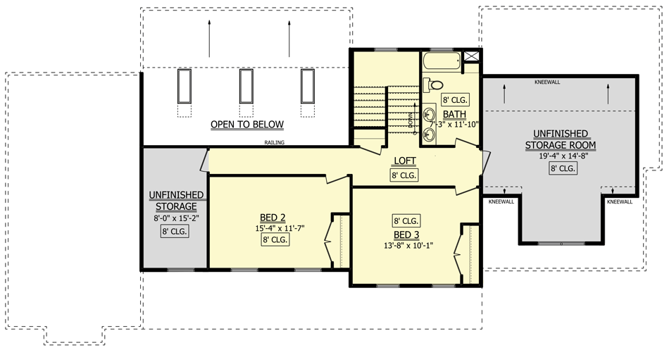
2nd Floor
674 sq. ft.
Basement Unfinished
1,889 sq. ft.
Bonus
364 sq. ft.
Bedrooms
3
Full bathrooms
2
Half bathrooms
1
Standard Foundations
Basement
Exterior Walls
2x4
Optional Type(s)
2x6
Width
82' 8"
Depth
42' 8"
Max Ridge Height
28' 2"
Type
Attached, Standard
Area
736 sq. ft.
Count
3 Cars
Entry Location
Side
First Floor
9' 2"
Second Floor
8' 2"
Primary Pitch
10 on 12
Secondary Pitch
12 on 12
Framing Type
Stick And Truss