LogoLogo TaglineLogo Tagline
Loading...
Plan 280057JWD

3-Bed Modern Farmhouse Plan with Breezeway Attached Garage

Heated S.F.
2,329
Beds
3
Baths
2.5
Stories
2
Cars
2
Client Photos

Floor Plan

Plan 280057JWD

Main Level
Main Level
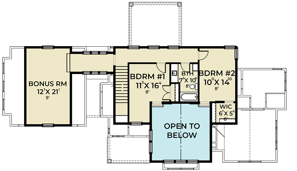
2nd Floor
2nd Floor

Plan 280057JWD

M-F 9am-5pm EST |

1-203-761-8500

Main Level

Plan 280057JWD: 3-Bed Modern Farmhouse Plan with Breezeway Attached Garage - Floor Plan - Main Level - Contemporary, Modern Farmhouse, New American, Transitional

2nd Floor

Plan 280057JWD: 3-Bed Modern Farmhouse Plan with Breezeway Attached Garage - Floor Plan - 2nd Floor - Contemporary, Modern Farmhouse, New American, Transitional

Plan Details

  • A covered porch provides welcome shelter to this New American house plan. A beautiful arrangement of windows, materials and and rooflines combine to give this home amazing curb appeal.
  • Inside, the entry opens to the vaulted great room with fireplace. The room opens to the kitchen and the dining room giving you a great space to entertain in.
  • The kitchen gives you an island with counter seating and a roomy pantry with storage. Windows over the sink give you views to the back and French doors take you to a covered patio.
  • The master bedroom has vaulted ceilings. There is a walk-in closet off the five fixture bath.
  • Upstairs, two bedrooms share a hall bath. And down the hall to the left of the stairs you'll find the bonus room give you expansion possibilities.
  • The 2-car garage is attached by a breezeway
  • IMPORTANT NOTE:  The total heated square footage includes the bonus room. 
Build Gallery
See and hear from existing customers with real photos, videos, and reviews.
build gallery item - House Plan 280057JWD Comes to Life in Virginia

House Plan 280057JWD Comes to Life in Virginia

37

Photos

What's Included

  • Exterior Elevations
  • Main Floor Plan
  • Second level floor plan - if applicable
  • Bonus Floor Plan - if applicable
  • Building Sections
  • Typical Wall Detail
  • Main Floor Framing Plan & Details
  • Bonus Room & Roof Framing Plan
  • Electrical Plan

What's Not Included

  • Architectural or Engineering Stamp - handled locally if required
  • Site Plan - handled locally when required
  • Mechanical Drawings (location of heating and air equipment and duct work) - your subcontractors handle this
  • Plumbing Drawings (drawings showing the actual plumbing pipe sizes and locations) - your subcontractors handle this
  • Energy calculations - handled locally when required
Starting at
Loading...
What's included?
Plan Set
Select...

Foundation
Select...

Options
Optional Add-Ons
+$0

Loading...
Price Match Guarantee
Cost to Build Report
Still deciding? Calculate the cost to build this house in your area.
Loading...
Customize This Plan
Need to make changes? We will get you a free price quote within 1 to 3 business days.
Cost to Furnish Report
Instant room-by-room estimates for your entire furniture & home decor plan, matched to your budget.
Loading...

Square Footage Breakdown

Total Heated Area

2,329 sq. ft.

1st Floor

1,400 sq. ft.

2nd Floor

574 sq. ft.

Bonus

355 sq. ft.

Beds/Baths

Bedrooms

3

Full bathrooms

2

Half bathrooms

1

Foundation Type

Standard Foundations

Crawl

Exterior Walls

Exterior Walls

2x6

Dimensions

Width

78' 0"

Depth

46' 0"

Max Ridge Height

29' 4"

Garage

Type

Attached

Area

494 sq. ft.

Count

2 Cars

Entry Location

Front

Ceiling Heights

First Floor

9'

Second Floor

8'

Roof Details

Primary Pitch

12 on 12

Secondary Pitch

4 on 12

Framing Type

Truss

Plan Collections

Square Footage Breakdown

Total Heated Area

2,329 sq. ft.

1st Floor

1,400 sq. ft.

2nd Floor

574 sq. ft.

Bonus

355 sq. ft.

Beds/Baths

Bedrooms

3

Full bathrooms

2

Half bathrooms

1

Foundation Type

Standard Foundations

Crawl

Exterior Walls

Exterior Walls

2x6

Dimensions

Width

78' 0"

Depth

46' 0"

Max Ridge Height

29' 4"

Garage

Type

Attached

Area

494 sq. ft.

Count

2 Cars

Entry Location

Front

Ceiling Heights

First Floor

9'

Second Floor

8'

Roof Details

Primary Pitch

12 on 12

Secondary Pitch

4 on 12

Framing Type

Truss

Plan Collections

* Please note that all sale prices and promotions featured on our website are subject to change without prior notice. While we strive to provide accurate and up-to-date information, occasional discrepancies may occur due to factors beyond our control. We encourage you to verify all details, including pricing and availability, before making any purchase. Exclusions or restrictions may apply to specific promotions. We reserve the right to modify or cancel any sale at our discretion. Thank you for your understanding and happy shopping!Let's go back to the top.