


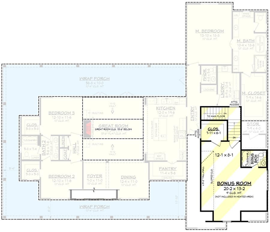
Total Heated Area
2,428 sq. ft.
1st Floor
2,428 sq. ft.
Bonus
544 sq. ft.
Porch, Combined
1,213 sq. ft.
Storage
77 sq. ft.
Bedrooms
3 or 4
Full bathrooms
2 or 3
Half bathrooms
1
Standard Foundations
Slab
Exterior Walls
2x4
Optional Type(s)
2x6
Width
81' 10"
Depth
70' 0"
Max Ridge Height
28' 0"
Type
Attached
Area
700 sq. ft.
Count
2 Cars
Entry Location
Side
First Floor
10'
Room
Ceiling Type
Height
Bonus
9' 0''
Primary Pitch
10 on 12
Secondary Pitch
12 on 12
Framing Type
Stick
Total Heated Area
2,428 sq. ft.
1st Floor
2,428 sq. ft.
Bonus
544 sq. ft.
Porch, Combined
1,213 sq. ft.
Storage
77 sq. ft.
Bedrooms
3 or 4
Full bathrooms
2 or 3
Half bathrooms
1
Standard Foundations
Slab
Exterior Walls
2x4
Optional Type(s)
2x6
Width
81' 10"
Depth
70' 0"
Max Ridge Height
28' 0"
Type
Attached
Area
700 sq. ft.
Count
2 Cars
Entry Location
Side
First Floor
10'
Room
Ceiling Type
Height
Bonus
9' 0''
Primary Pitch
10 on 12
Secondary Pitch
12 on 12
Framing Type
Stick