LogoLogo TaglineLogo Tagline
Loading...
Plan 23532JD

3-Bed Modern House Plan with Main Level Master and Garage Workshop - 2829 Sq Ft

Heated S.F.
2,829
Beds
3
Baths
3
Stories
2
Cars
3
Client Photos

Floor Plan

Plan 23532JD

Main Level
Main Level
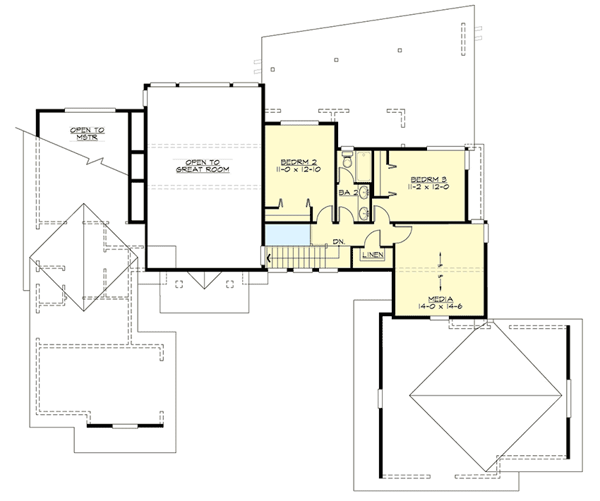
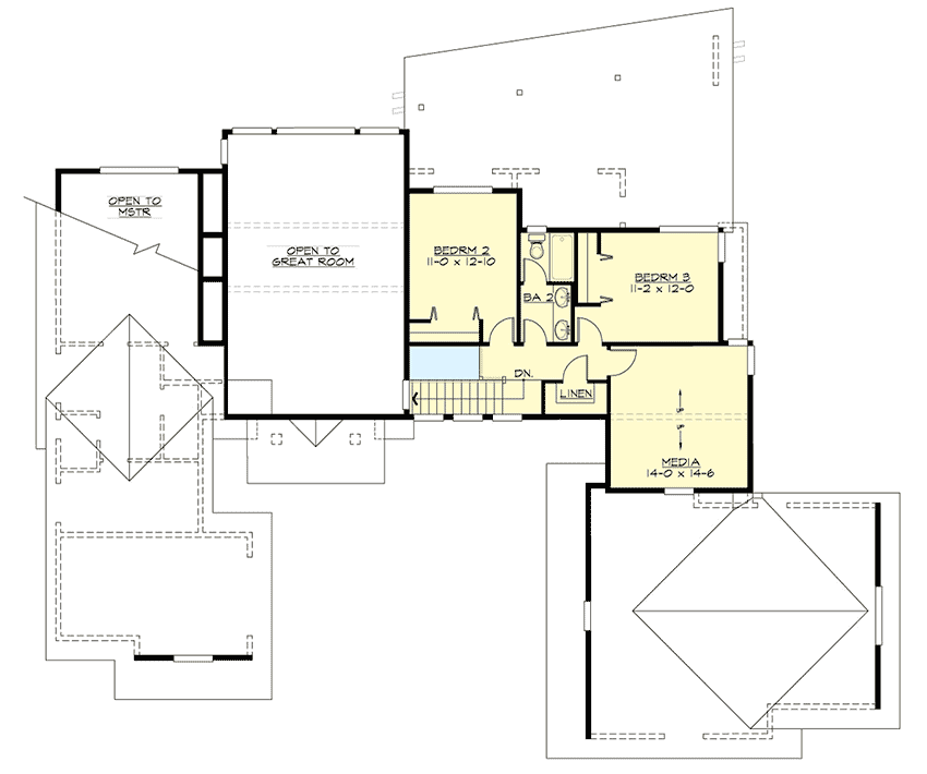
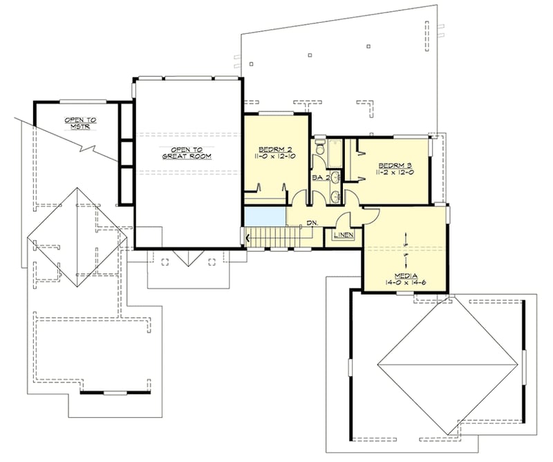
2nd Floor
2nd Floor

Plan 23532JD

M-F 9am-5pm EST |

1-203-761-8500

Main Level

Plan 23532JD: 3-Bed Modern House Plan with Main Level Master and Garage Workshop - 2829 Sq Ft - Floor Plan - Main Level - Contemporary, Modern, Northwest

2nd Floor

Plan 23532JD: 3-Bed Modern House Plan with Main Level Master and Garage Workshop - 2829 Sq Ft - Floor Plan - 2nd Floor - Contemporary, Modern, Northwest

Plan Details

  • Enjoy the convenience of master-down living in this modern home plan with split garages and a vaulted great room.
  • The covered entry takes you inside to the airy great room that is open to the dining room and kitchen beyond. A closet by the entry helps minimize clutter.
  • An angled covered patio in back extends your entertaining space and is accessible from the dining room through sliding doors.
  • The kitchen has a large island with seating for three and views to the great room and dining room and covered patio. A large pantry and easy access from garage are two plusses.
  • A study is tucked away and could be used as a guest room in a pinch with a full bath located nearby.
  • The master ceiling is vaulted and the suite has a large walk-in and great bathroom setup.
  • Upstairs gives you two bedrooms and a vaulted media room over the garage.
  • NOTE: Additional fees apply when building in the State of Washington. Contact us for more information.
Build Gallery
See and hear from existing customers with real photos, videos, and reviews.
build gallery item - House Plan 23532JD comes to life in North Carolina!

House Plan 23532JD comes to life in North Carolina!

9

Photos

What's Included

  • Cover Sheet - The cover sheet includes the general notes and building code information, design standards and structural materials specifications required to construct your home.
  • Schedule Sheet - The schedule sheet includes the roof and foundation ventilation schedules, insulation and vapor barrier specifications, and exhaust fan ventilation schedule.
  • Detail Sheet - The detail sheet shows building components at large scale as required to explain construction of footings, foundation walls, concrete slabs, framed floors and walls, posts, beams, insulation, eaves, roofs, vents, stairs, skylights, and connections.
  • Foundation Plan Sheet - The foundation plan sheet shows the layout of the crawl space, walk-out basement or slab foundation. The foundation plan includes all necessary notes, dimensions, concrete walls, footing pads, posts, beams, bearing walls, crawlspace vents, footing schedule, steel reinforcing, and structural information. If you require a different foundation type, please contact us for modifications to your plan.
  • Floor Plan Sheet - Floor plans are horizontal cuts through each floor level of the home, usually at 5' above the floor. The floor plan shows the location of interior and exterior walls, doors, windows, stairs, closets, cabinets, flooring, appliances, plumbing fixtures, fireplaces, posts and beams. Floor plans also indicate vaulted, coffered, or box beam ceilings, cased openings and areas with ceiling soffits.
  • Roof Framing Plan Sheet - The roof framing plan shows the geometry of the hips, ridges, valleys, dormers, roof pitches, wall and plate heights, and overhangs. The plan also shows all individual roof framing members, trusses, rafters, beams, skylights, roof vents, gutters, downspouts, skylights, bearing walls under framing members, and point loads.
  • Elevation Sheet - Exterior elevations show all four sides of the house, describing the roofing, siding, and trim materials, doors, windows, roof pitches, skylights, gutters, chimneys, wall heights, finish grade and overall building height. 
  • Building Section Sheet - Building sections are vertical cuts through the house from the roof to the foundation. The sections illustrate the construction sequence from bottom to top starting with excavation, proceeding up through the foundation, drainage, wall and floor framing, stair framing, roof framing, windows, doors, venting, and exterior and interior finishes. Wall plate heights for each floor are also delineated.
View Sample Plan

What's Not Included

  • Electrical Plan - handled by your subcontractor to match your individual needs
  • Architectural or Engineering Stamp - handled locally if required
  • Site Plan - handled locally when required
  • Mechanical Drawings (location of heating and air equipment and duct work) - your subcontractors handle this
  • Plumbing Drawings (drawings showing the actual plumbing pipe sizes and locations) - your subcontractors handle this
  • Energy calculations - handled locally when required
Starting at
Loading...
What's included?
Plan Set
Select...

Foundation
Select...

Options
Optional Add-Ons
+$0

Loading...
Price Match Guarantee
Cost to Build Report
Still deciding? Calculate the cost to build this house in your area.
Loading...
Customize This Plan
Need to make changes? We will get you a free price quote within 1 to 3 business days.
Cost to Furnish Report
Instant room-by-room estimates for your entire furniture & home decor plan, matched to your budget.
Loading...

Square Footage Breakdown

Total Heated Area

2,829 sq. ft.

1st Floor

2,094 sq. ft.

2nd Floor

735 sq. ft.

Beds/Baths

Bedrooms

3

Full bathrooms

3

Foundation Type

Standard Foundations

Crawl

Exterior Walls

Exterior Walls

2x6

Dimensions

Width

84' 0"

Depth

71' 6"

Max Ridge Height

26' 0"

Garage

Type

Attached

Area

939 sq. ft.

Count

3 Cars

Entry Location

Courtyard

Ceiling Heights

First Floor

9'

Second Floor

8'

Roof Details

Primary Pitch

3.5 on 12

Framing Type

Stick

Plan Collections

Square Footage Breakdown

Total Heated Area

2,829 sq. ft.

1st Floor

2,094 sq. ft.

2nd Floor

735 sq. ft.

Beds/Baths

Bedrooms

3

Full bathrooms

3

Foundation Type

Standard Foundations

Crawl

Exterior Walls

Exterior Walls

2x6

Dimensions

Width

84' 0"

Depth

71' 6"

Max Ridge Height

26' 0"

Garage

Type

Attached

Area

939 sq. ft.

Count

3 Cars

Entry Location

Courtyard

Ceiling Heights

First Floor

9'

Second Floor

8'

Roof Details

Primary Pitch

3.5 on 12

Framing Type

Stick

Architectural Style

Plan Collections

* Please note that all sale prices and promotions featured on our website are subject to change without prior notice. While we strive to provide accurate and up-to-date information, occasional discrepancies may occur due to factors beyond our control. We encourage you to verify all details, including pricing and availability, before making any purchase. Exclusions or restrictions may apply to specific promotions. We reserve the right to modify or cancel any sale at our discretion. Thank you for your understanding and happy shopping!Let's go back to the top.