

Total Heated Area
1,642 sq. ft.
1st Floor
1,642 sq. ft.
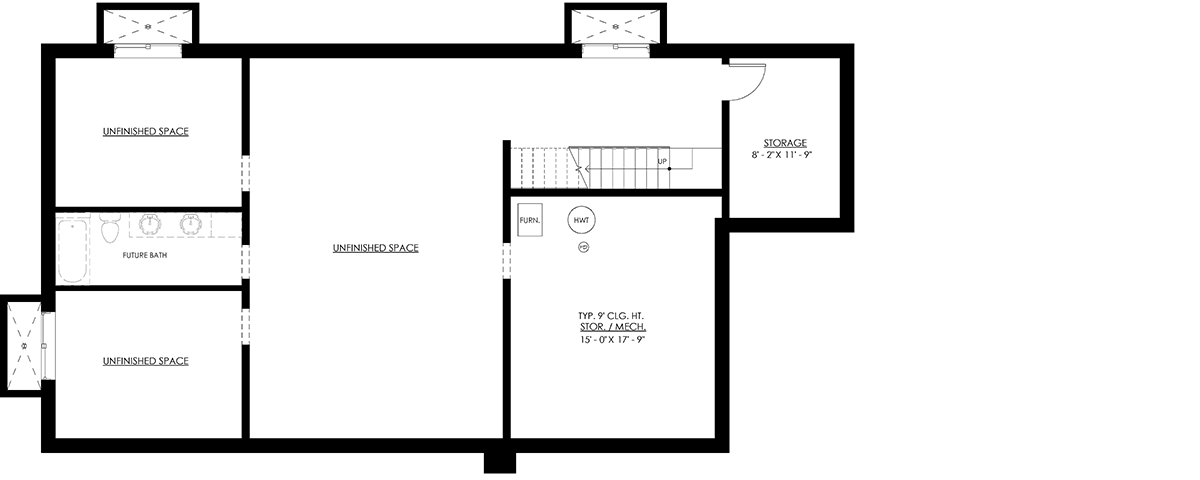
Basement Unfinished
1,642 sq. ft.
Optional Lower Level
1,642 sq. ft.
Porch, Front
404 sq. ft.
Porch, Rear
210 sq. ft.
Bedrooms
3
Full bathrooms
2
Standard Foundations
Basement
Exterior Walls
2x6
Width
84' 0"
Depth
48' 0"
Max Ridge Height
18' 2"
Type
Attached
Area
616 sq. ft.
Count
2 Cars
Entry Location
Front
Lower Level
9'
First Floor
9'
Primary Pitch
2 on 12
Framing Type
Stick
Total Heated Area
1,642 sq. ft.
1st Floor
1,642 sq. ft.
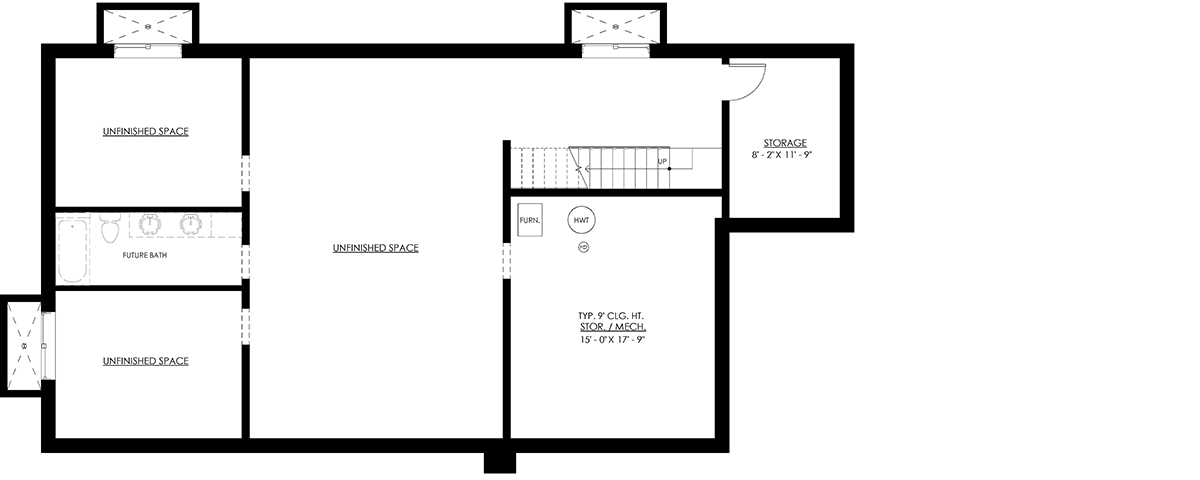
Basement Unfinished
1,642 sq. ft.
Optional Lower Level
1,642 sq. ft.
Porch, Front
404 sq. ft.
Porch, Rear
210 sq. ft.
Bedrooms
3
Full bathrooms
2
Standard Foundations
Basement
Exterior Walls
2x6
Width
84' 0"
Depth
48' 0"
Max Ridge Height
18' 2"
Type
Attached
Area
616 sq. ft.
Count
2 Cars
Entry Location
Front
Lower Level
9'
First Floor
9'
Primary Pitch
2 on 12
Framing Type
Stick