

Total Heated Area
1,320 sq. ft.
1st Floor
47 sq. ft.
2nd Floor
1,273 sq. ft.
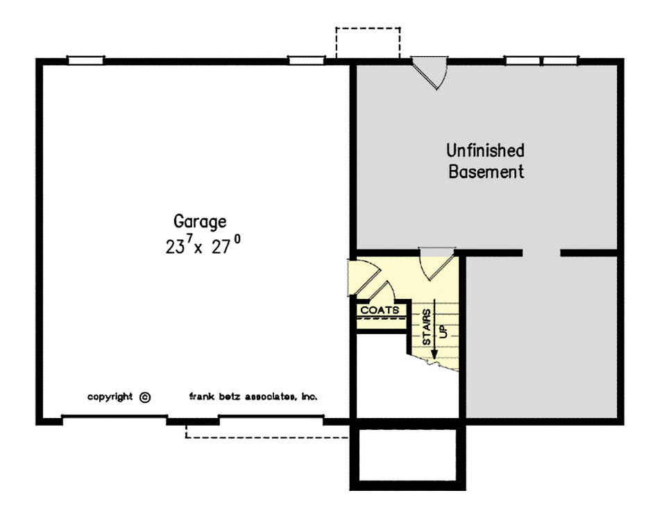
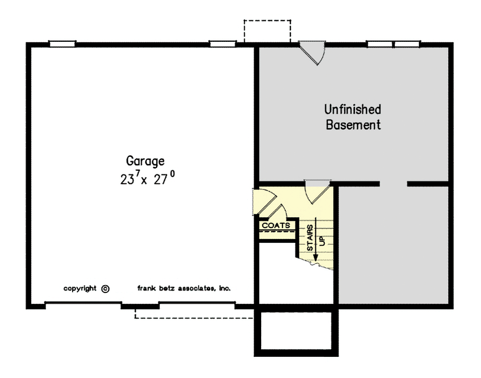
Basement Unfinished
540 sq. ft.
Bedrooms
3
Full bathrooms
2
Standard Foundations
Walkout
Exterior Walls
2x4
Width
48' 0"
Depth
35' 4"
Max Ridge Height
30' 3"
Type
Drive Under
Area
673 sq. ft.
Count
2 Cars
Entry Location
Front
Framing Type
Stick
Total Heated Area
1,320 sq. ft.
1st Floor
47 sq. ft.
2nd Floor
1,273 sq. ft.
Basement Unfinished
540 sq. ft.
Bedrooms
3
Full bathrooms
2
Standard Foundations
Walkout
Exterior Walls
2x4
Width
48' 0"
Depth
35' 4"
Max Ridge Height
30' 3"
Type
Drive Under
Area
673 sq. ft.
Count
2 Cars
Entry Location
Front
Framing Type
Stick