LogoLogo TaglineLogo Tagline
Loading...
Plan 51901HZ

3-Bed Texas Hill Country Craftsman House Plan with Rustic Curb Appeal

Heated S.F.
1,698
Beds
3
Baths
2.5
Stories
1
Cars
2
Tour

Floor Plan

Plan 51901HZ

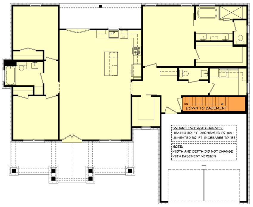
Main Level
Main Level
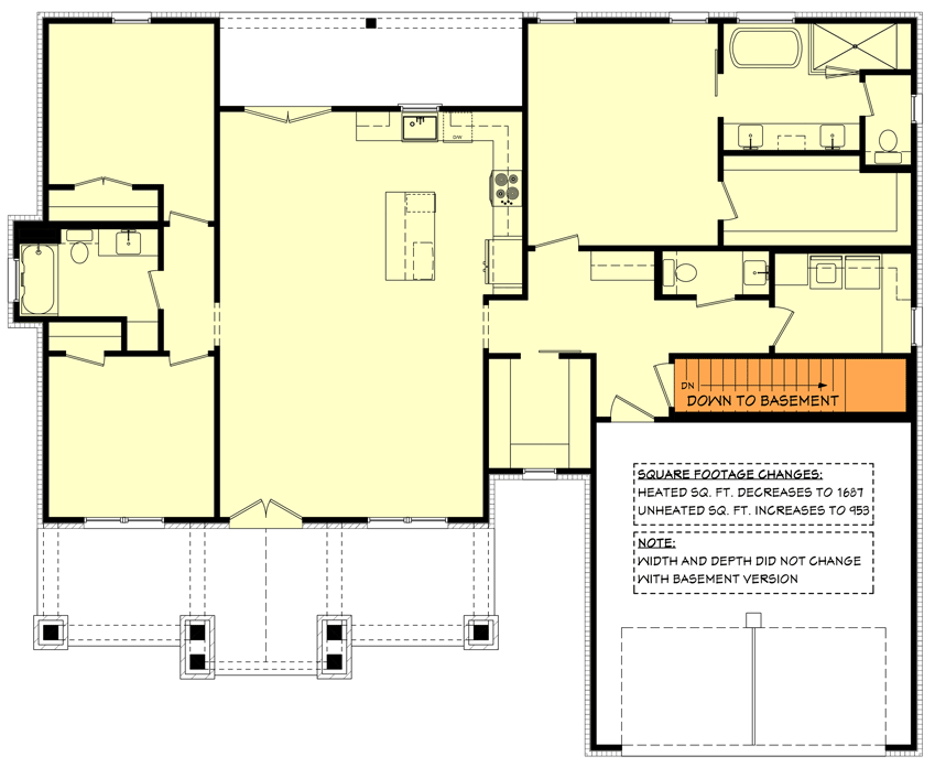
Basement Stair Location
Basement Stair Location

Plan 51901HZ

M-F 9am-5pm EST |

1-203-761-8500

Main Level

Plan 51901HZ: 3-Bed Texas Hill Country Craftsman House Plan with Rustic Curb Appeal - Floor Plan - Main Level - Cottage, Country, Hill Country, Rustic

Basement Stair Location

Plan 51901HZ: 3-Bed Texas Hill Country Craftsman House Plan with Rustic Curb Appeal - Floor Plan - Basement Stair Location - Cottage, Country, Hill Country, Rustic

Plan Details

  • This beautiful Texas Hill Country-style house plan's exterior has a combination of stone and board and batten siding. Wood timbers support the front porch and there are timber accents in the gable peaks and in the lintels. A metal roof, including a shed roof over the front porch, lends to the rustic curb appeal.
  • The home gives you three bedrooms, two-and-a-half baths in a split bedroom layout.
  • The kitchen has a large island (3'4" by 6') with casual seating and is open to the rest of the home for easy entertaining.  
  • Main bedroom suite offers a large bath along with an oversized closet. Across the home, guest bedrooms are adequately sized and offer a bath along with a linen closet for storage. 
  • The rear entry has lockers for organization and a powder room that is conveniently located. The utility room offers cabinets and much needed counterspace for all your laundry needs. 
  • Related Plans: Get alternate versions with house plan 51838HZ and 51855HZ

What's Included

Page 1  Cover Sheet with abbreviations, rendering, sheet index
Page 2  Foundation Plan and details
Page 3  Detailed floor plan (includes window sizes, ceiling joist directions, plumbing fixture locations, etc.) 
Page 4  Exterior views with additional notes and details
Page 5  Cross Section & kitchen cabinet views
Page 6  Roof plan and span charts with additional notes and details
Page 7  Electrical plan
Page N1 Code Information
Page N2 Code Information
Page N3 Code Information
Page N4 Energy Code Information
View Sample Plan

What's Not Included

  • Architectural or Engineering Stamp - handled locally if required
  • Site Plan - handled locally when required
  • Mechanical Drawings (location of heating and air equipment and duct work) - your subcontractors handle this
  • Plumbing Drawings (drawings showing the actual plumbing pipe sizes and locations) - your subcontractors handle this
  • REScheck or other energy related calculations are NOT included.
  • Wind load or seismic calculations are NOT included. 
  • Framing plans or beam sizes are NOT included.
  • Other specific drawings that your local permit office may require
Starting at
Loading...
What's included?
Plan Set
Select...

Foundation
Select...

Options
Optional Add-Ons
+$0

Loading...
Price Match Guarantee
Cost to Build Report
Still deciding? Calculate the cost to build this house in your area.
Loading...
Customize This Plan
Need to make changes? We will get you a free price quote within 1 to 3 business days.
Cost to Furnish Report
Instant room-by-room estimates for your entire furniture & home decor plan, matched to your budget.
Loading...

Square Footage Breakdown

Total Heated Area

1,698 sq. ft.

1st Floor

1,698 sq. ft.

Porch, Front

263 sq. ft.

Porch, Rear

124 sq. ft.

Storage

61 sq. ft.

Beds/Baths

Bedrooms

3

Full bathrooms

2

Half bathrooms

1

Foundation Type

Standard Foundations

Slab

Exterior Walls

Exterior Walls

2x4

Optional Type(s)

2x6

Dimensions

Width

61' 6"

Depth

49' 10"

Max Ridge Height

25' 0"

Garage

Type

Attached

Area

494 sq. ft.

Count

2 Cars

Entry Location

Front

Ceiling Heights

First Floor

9'

Room

Ceiling Type

Height

Great Room

Flat

10' 0''

Dining Room

Flat

10' 0''

Kitchen

Flat

10' 0''

Bedroom 3

Flat

10' 0''

Roof Details

Primary Pitch

10 on 12

Framing Type

Stick

Architectural Style

Cottage

Square Footage Breakdown

Total Heated Area

1,698 sq. ft.

1st Floor

1,698 sq. ft.

Porch, Front

263 sq. ft.

Porch, Rear

124 sq. ft.

Storage

61 sq. ft.

Beds/Baths

Bedrooms

3

Full bathrooms

2

Half bathrooms

1

Foundation Type

Standard Foundations

Slab

Exterior Walls

Exterior Walls

2x4

Optional Type(s)

2x6

Dimensions

Width

61' 6"

Depth

49' 10"

Max Ridge Height

25' 0"

Garage

Type

Attached

Area

494 sq. ft.

Count

2 Cars

Entry Location

Front

Ceiling Heights

First Floor

9'

Room

Ceiling Type

Height

Great Room

Flat

10' 0''

Dining Room

Flat

10' 0''

Kitchen

Flat

10' 0''

Bedroom 3

Flat

10' 0''

Roof Details

Primary Pitch

10 on 12

Framing Type

Stick

* Please note that all sale prices and promotions featured on our website are subject to change without prior notice. While we strive to provide accurate and up-to-date information, occasional discrepancies may occur due to factors beyond our control. We encourage you to verify all details, including pricing and availability, before making any purchase. Exclusions or restrictions may apply to specific promotions. We reserve the right to modify or cancel any sale at our discretion. Thank you for your understanding and happy shopping!Let's go back to the top.