

Total Heated Area
2,035 sq. ft.
1st Floor
2,035 sq. ft.
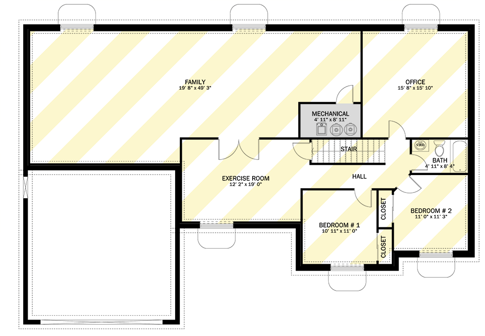
Optional Lower Level
2,014 sq. ft.
Porch, Front
30 sq. ft.
Bedrooms
3
Full bathrooms
2
Half bathrooms
1
Standard Foundations
Basement
Exterior Walls
2x4
Optional Type(s)
2x6
Width
67' 3"
Depth
44' 9"
Max Ridge Height
17' 9"
Type
Attached
Area
537 sq. ft.
Count
2 Cars
Entry Location
Front
Lower Level
8'
First Floor
8'
Primary Pitch
6 on 12
Framing Type
Truss
Total Heated Area
2,035 sq. ft.
1st Floor
2,035 sq. ft.
Optional Lower Level
2,014 sq. ft.
Porch, Front
30 sq. ft.
Bedrooms
3
Full bathrooms
2
Half bathrooms
1
Standard Foundations
Basement
Exterior Walls
2x4
Optional Type(s)
2x6
Width
67' 3"
Depth
44' 9"
Max Ridge Height
17' 9"
Type
Attached
Area
537 sq. ft.
Count
2 Cars
Entry Location
Front
Lower Level
8'
First Floor
8'
Primary Pitch
6 on 12
Framing Type
Truss