Exclusive

Total Heated Area
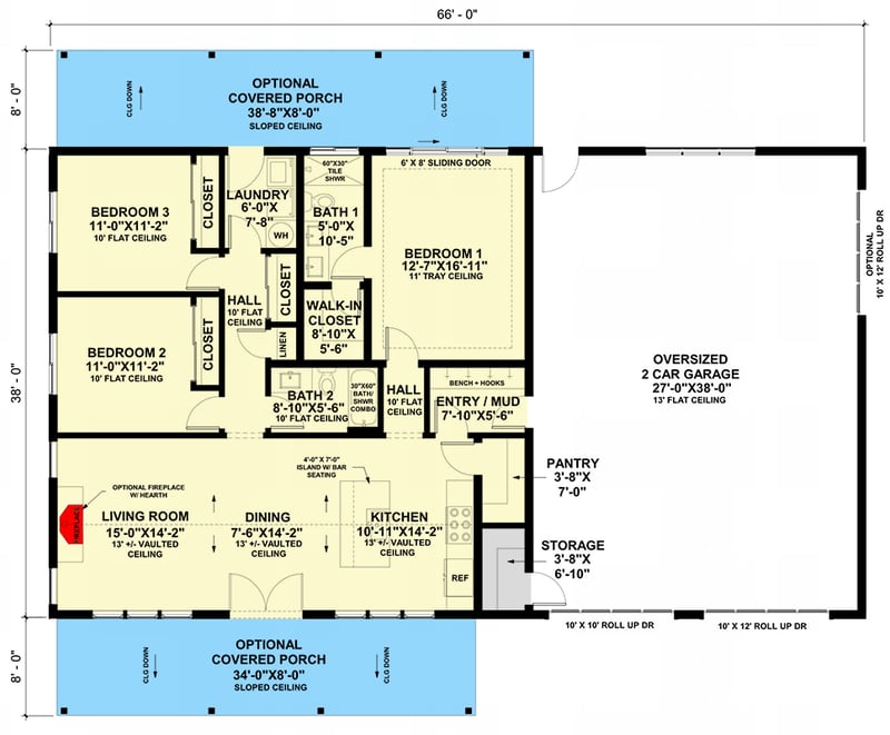
1,482 sq. ft.
1st Floor
1,482 sq. ft.
Bedrooms
3
Full bathrooms
2
Standard Foundations
Slab, Monolithic Slab
Exterior Walls
2x6
Width
66' 0"
Depth
38' 0"
Max Ridge Height
18' 4"
Type
Standard, RV Garage
Area
1026 sq. ft.
Count
2 Cars
Entry Location
Front, Side
First Floor
10'
Room
Ceiling Type
Height
Bedroom 1
Tray
11' 0''
Dining Room
Vaulted
13' 0''
Kitchen
Vaulted
13' 0''
Living Room
Vaulted
13' 0''
Primary Pitch
3 on 12
Secondary Pitch
2 on 12
Framing Type
Stick And Truss
Total Heated Area
1,482 sq. ft.
1st Floor
1,482 sq. ft.
Bedrooms
3
Full bathrooms
2
Standard Foundations
Slab, Monolithic Slab
Exterior Walls
2x6
Width
66' 0"
Depth
38' 0"
Max Ridge Height
18' 4"
Type
Standard, RV Garage
Area
1026 sq. ft.
Count
2 Cars
Entry Location
Front, Side
First Floor
10'
Room
Ceiling Type
Height
Bedroom 1
Tray
11' 0''
Dining Room
Vaulted
13' 0''
Kitchen
Vaulted
13' 0''
Living Room
Vaulted
13' 0''
Primary Pitch
3 on 12
Secondary Pitch
2 on 12
Framing Type
Stick And Truss