






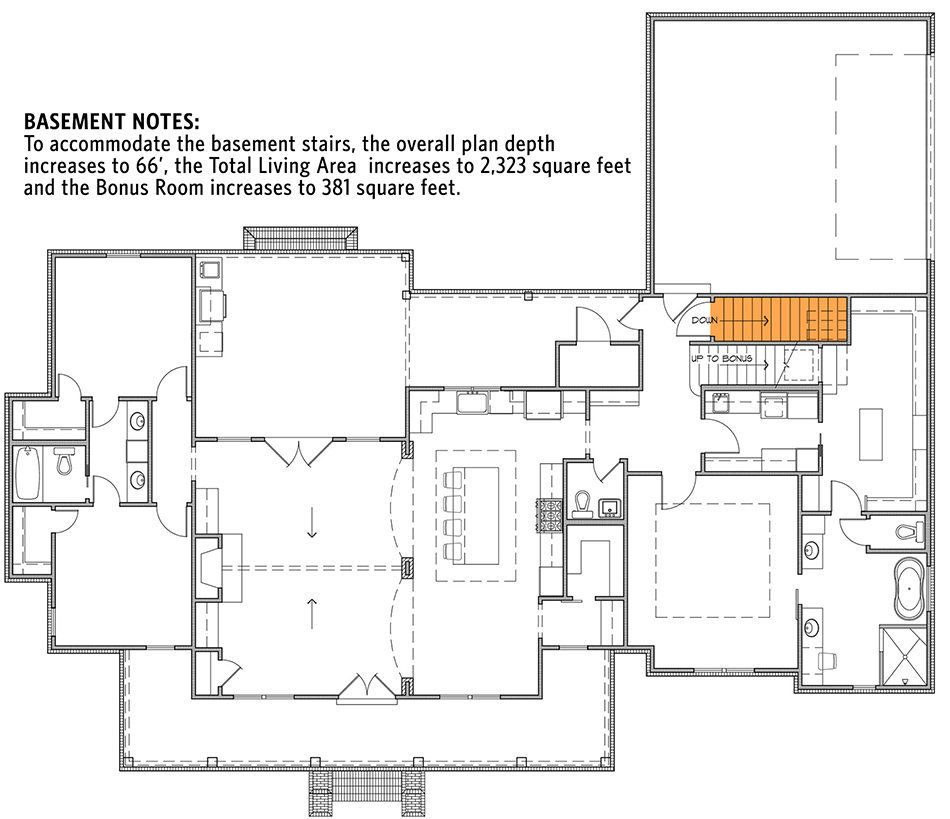
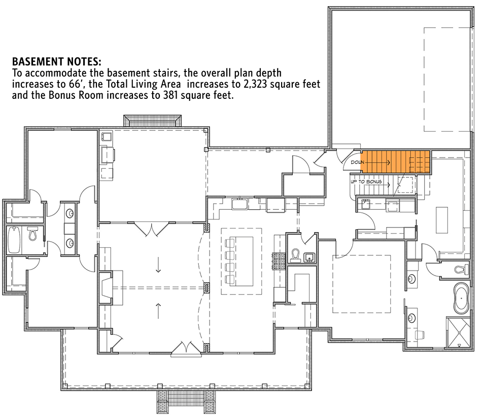
Total Heated Area
2,216 sq. ft.
1st Floor
2,216 sq. ft.
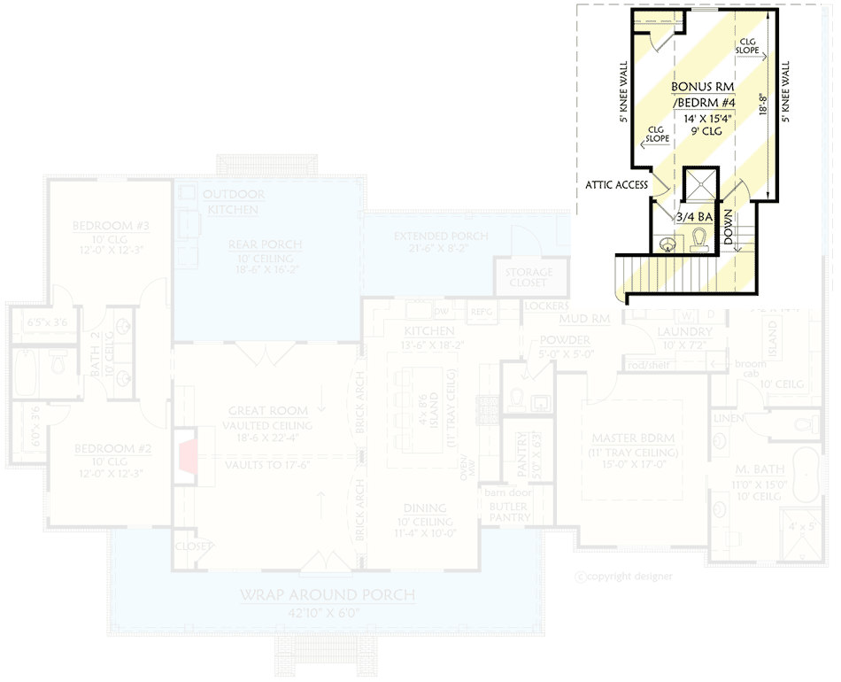
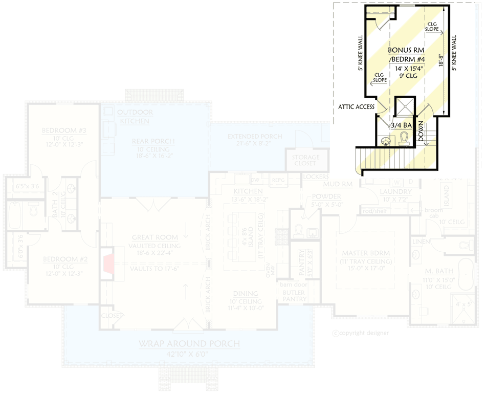
Bonus
319 sq. ft.
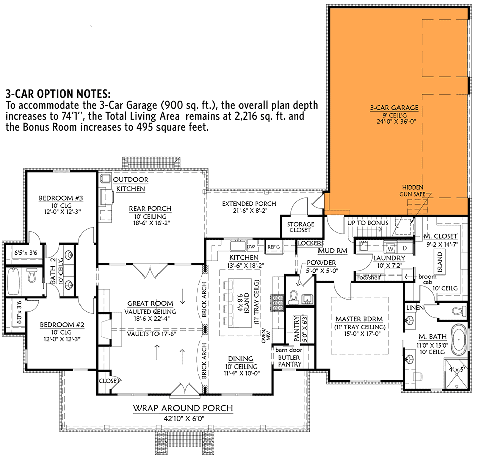
Carport
600 sq. ft.
Porch, Front
309 sq. ft.
Porch, Rear
473 sq. ft.
Bedrooms
3 or 4
Full bathrooms
2 or 3
Half bathrooms
1
Standard Foundations
Slab
Exterior Walls
2x4
Optional Type(s)
2x6
Width
81' 1"
Depth
62' 1"
Max Ridge Height
26' 3"
Type
Attached, Carport
Count
2 or 3 Cars
Entry Location
Side
First Floor
10'
Second Floor
9'
Primary Pitch
9 on 12
Secondary Pitch
12 on 12
Framing Type
Stick
Total Heated Area
2,216 sq. ft.
1st Floor
2,216 sq. ft.
Bonus
319 sq. ft.
Carport
600 sq. ft.
Porch, Front
309 sq. ft.
Porch, Rear
473 sq. ft.
Bedrooms
3 or 4
Full bathrooms
2 or 3
Half bathrooms
1
Standard Foundations
Slab
Exterior Walls
2x4
Optional Type(s)
2x6
Width
81' 1"
Depth
62' 1"
Max Ridge Height
26' 3"
Type
Attached, Carport
Count
2 or 3 Cars
Entry Location
Side
First Floor
10'
Second Floor
9'
Primary Pitch
9 on 12
Secondary Pitch
12 on 12
Framing Type
Stick