


Total Heated Area
3,865 sq. ft.
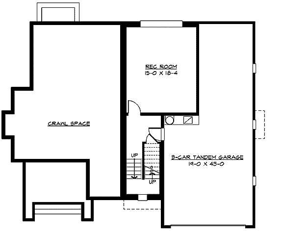
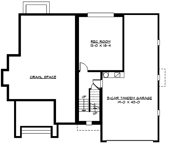
Lower Level
463 sq. ft.
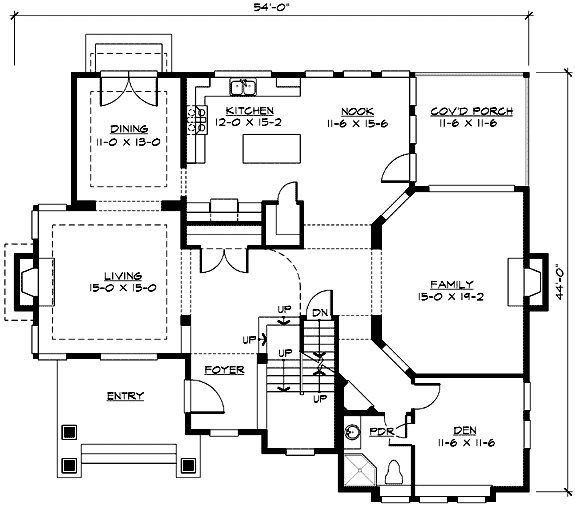
1st Floor
1,784 sq. ft.
2nd Floor
1,618 sq. ft.
Bedrooms
4
Full bathrooms
4
Standard Foundations
Crawl
Exterior Walls
2x6
Width
54' 0"
Depth
44' 0"
Max Ridge Height
26' 0"
Type
Drive Under
Area
720 sq. ft.
Count
3 Cars
Entry Location
Front
Lower Level
9'
First Floor
9'
Second Floor
8'
Primary Pitch
6 on 12
Framing Type
Truss
Total Heated Area
3,865 sq. ft.
Lower Level
463 sq. ft.
1st Floor
1,784 sq. ft.
2nd Floor
1,618 sq. ft.
Bedrooms
4
Full bathrooms
4
Standard Foundations
Crawl
Exterior Walls
2x6
Width
54' 0"
Depth
44' 0"
Max Ridge Height
26' 0"
Type
Drive Under
Area
720 sq. ft.
Count
3 Cars
Entry Location
Front
Lower Level
9'
First Floor
9'
Second Floor
8'
Primary Pitch
6 on 12
Framing Type
Truss