

Total Heated Area
3,447 sq. ft.
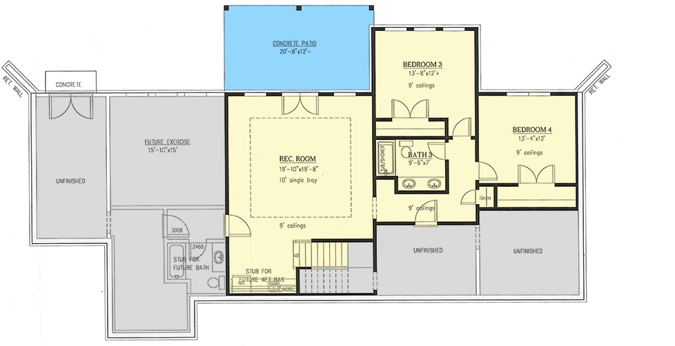
Lower Level
1,159 sq. ft.
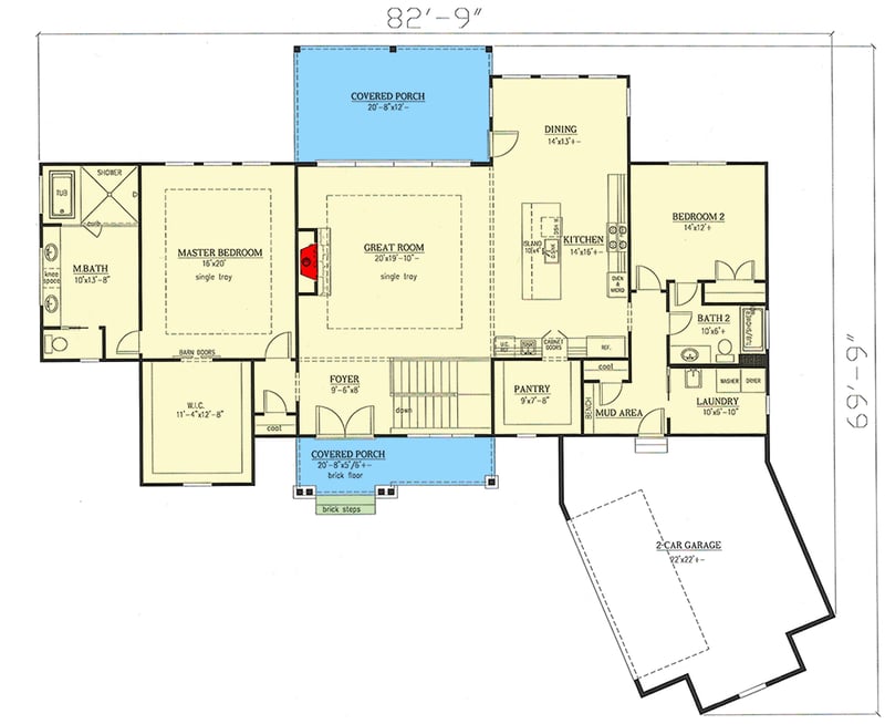
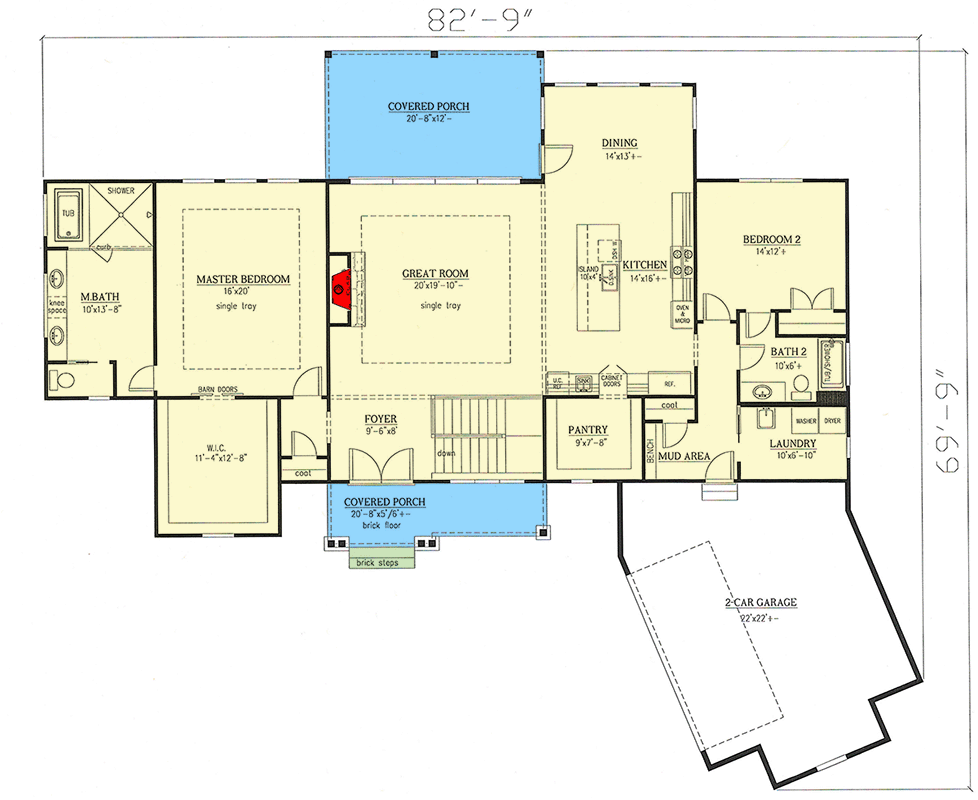
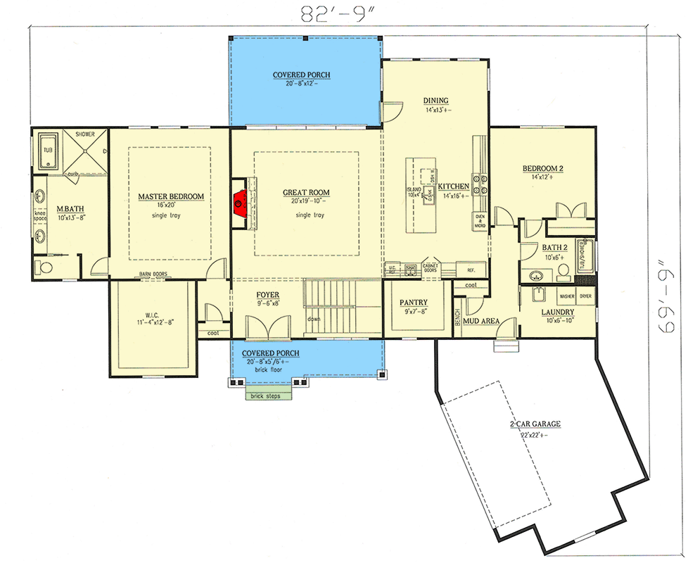
1st Floor
2,288 sq. ft.
Basement Unfinished
1,129 sq. ft.
Porch, Combined
359 sq. ft.
Bedrooms
4
Full bathrooms
3
Standard Foundations
Walkout
Exterior Walls
2x4
Width
82' 9"
Depth
69' 9"
Max Ridge Height
22' 8"
Type
Attached
Area
588 sq. ft.
Count
2 Cars
Entry Location
Courtyard
Lower Level
11'
First Floor
10'
Primary Pitch
10 on 12
Secondary Pitch
4 on 12
Framing Type
Stick And Truss
Total Heated Area
3,447 sq. ft.
Lower Level
1,159 sq. ft.
1st Floor
2,288 sq. ft.
Basement Unfinished
1,129 sq. ft.
Porch, Combined
359 sq. ft.
Bedrooms
4
Full bathrooms
3
Standard Foundations
Walkout
Exterior Walls
2x4
Width
82' 9"
Depth
69' 9"
Max Ridge Height
22' 8"
Type
Attached
Area
588 sq. ft.
Count
2 Cars
Entry Location
Courtyard
Lower Level
11'
First Floor
10'
Primary Pitch
10 on 12
Secondary Pitch
4 on 12
Framing Type
Stick And Truss