


Total Heated Area
2,460 sq. ft.
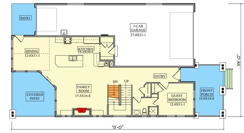
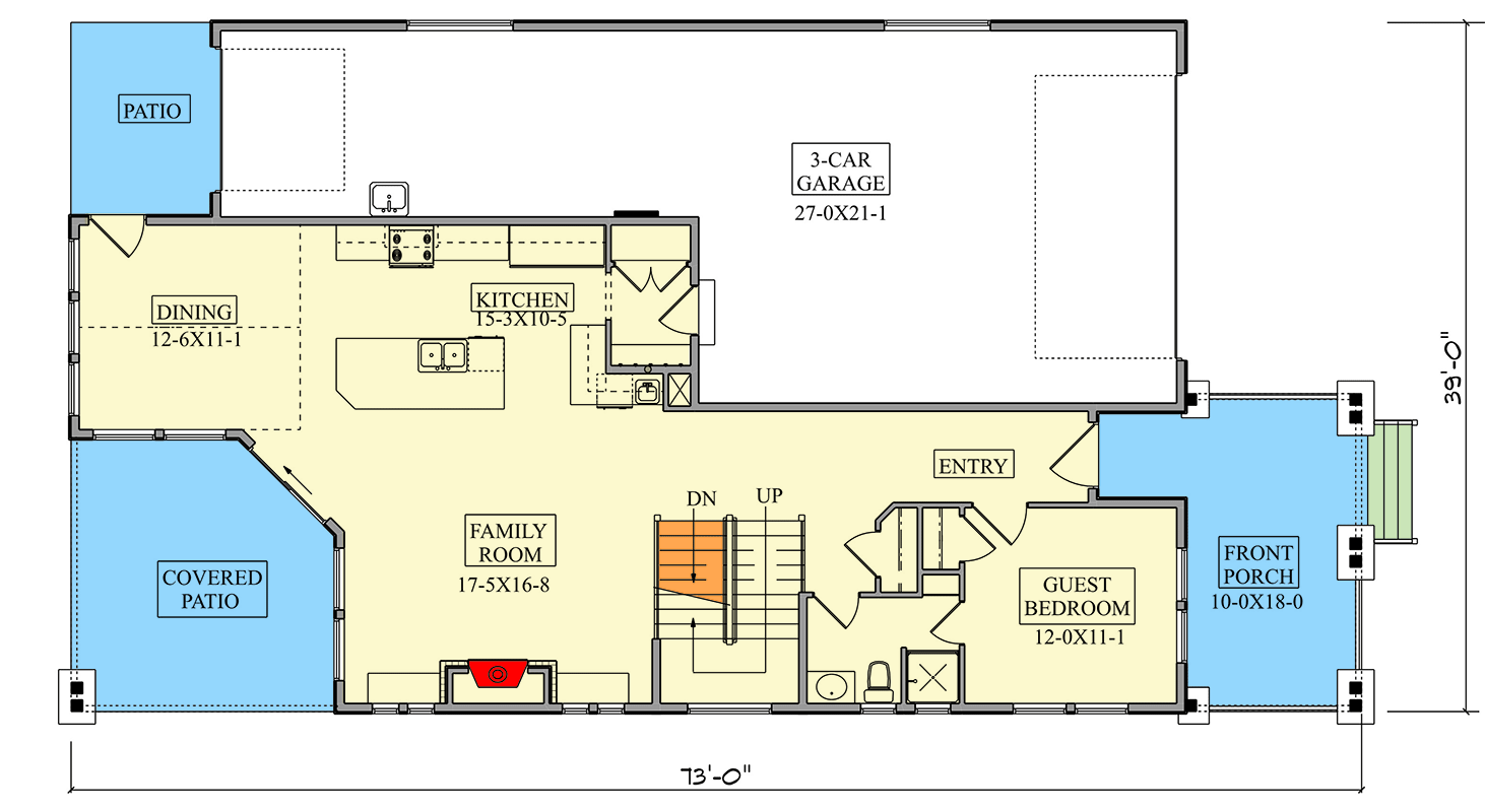
1st Floor
1,224 sq. ft.
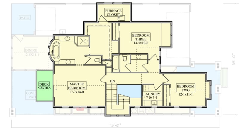
2nd Floor
1,236 sq. ft.
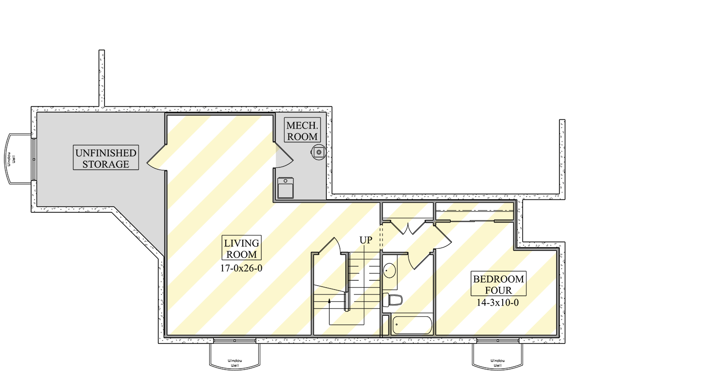
Basement Unfinished
373 sq. ft.
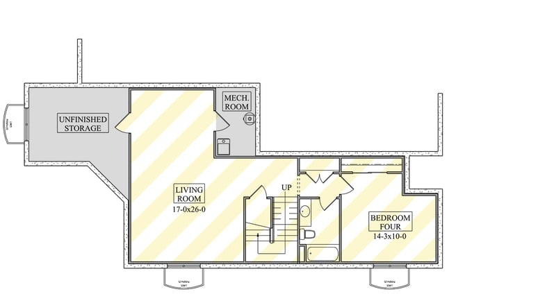
Optional Lower Level
858 sq. ft.
Deck & Porch
549 sq. ft.
Bedrooms
4 or 5
Full bathrooms
3 or 4
Standard Foundations
Basement
Exterior Walls
2x6
Width
39' 0"
Depth
73' 0"
Max Ridge Height
28' 2"
Type
Attached
Area
896 sq. ft.
Count
3 Cars
Entry Location
Front
Lower Level
9'
First Floor
10'
Second Floor
9'
Primary Pitch
7 on 12
Total Heated Area
2,460 sq. ft.
1st Floor
1,224 sq. ft.
2nd Floor
1,236 sq. ft.
Basement Unfinished
373 sq. ft.
Optional Lower Level
858 sq. ft.
Deck & Porch
549 sq. ft.
Bedrooms
4 or 5
Full bathrooms
3 or 4
Standard Foundations
Basement
Exterior Walls
2x6
Width
39' 0"
Depth
73' 0"
Max Ridge Height
28' 2"
Type
Attached
Area
896 sq. ft.
Count
3 Cars
Entry Location
Front
Lower Level
9'
First Floor
10'
Second Floor
9'
Primary Pitch
7 on 12