

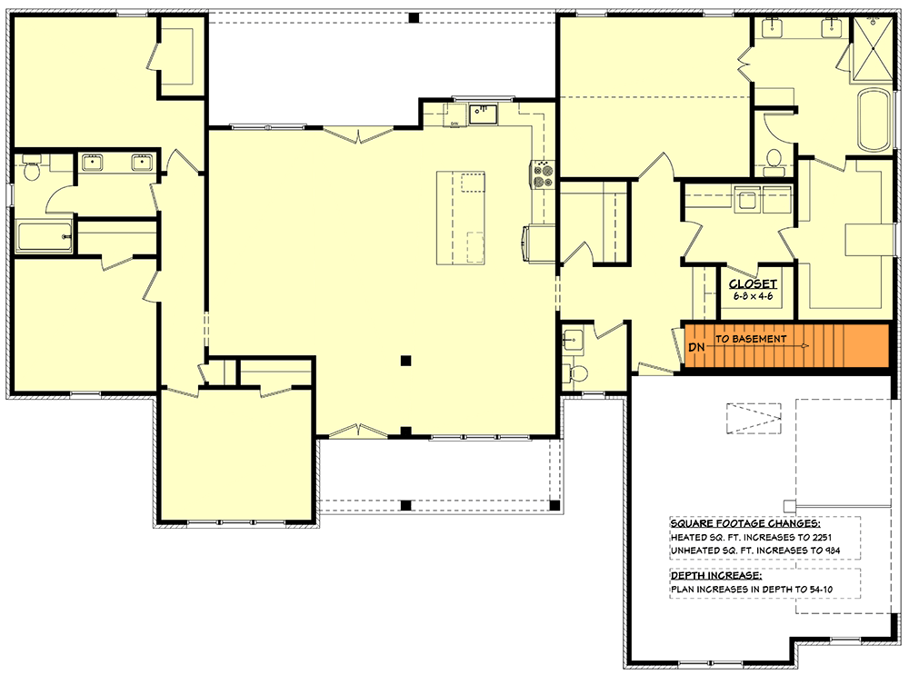
Total Heated Area
2,200 sq. ft.
1st Floor
2,200 sq. ft.
Porch, Front
123 sq. ft.
Porch, Rear
250 sq. ft.
Storage
32 sq. ft.
Bedrooms
4
Full bathrooms
2
Half bathrooms
1
Standard Foundations
Slab
Exterior Walls
2x4
Optional Type(s)
2x6
Width
74' 6"
Depth
50' 6"
Max Ridge Height
25' 0"
Type
Attached
Area
532 sq. ft.
Count
2 Cars
Entry Location
Side
First Floor
9'
Primary Pitch
9 on 12
Secondary Pitch
4 on 12
Framing Type
Stick
Total Heated Area
2,200 sq. ft.
1st Floor
2,200 sq. ft.
Porch, Front
123 sq. ft.
Porch, Rear
250 sq. ft.
Storage
32 sq. ft.
Bedrooms
4
Full bathrooms
2
Half bathrooms
1
Standard Foundations
Slab
Exterior Walls
2x4
Optional Type(s)
2x6
Width
74' 6"
Depth
50' 6"
Max Ridge Height
25' 0"
Type
Attached
Area
532 sq. ft.
Count
2 Cars
Entry Location
Side
First Floor
9'
Primary Pitch
9 on 12
Secondary Pitch
4 on 12
Framing Type
Stick