Exclusive


Total Heated Area
2,586 sq. ft.
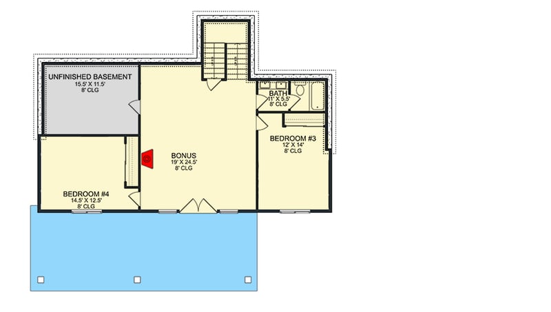
Lower Level
922 sq. ft.
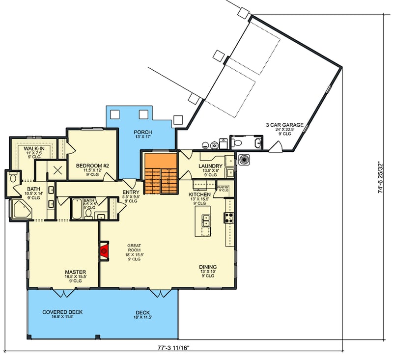
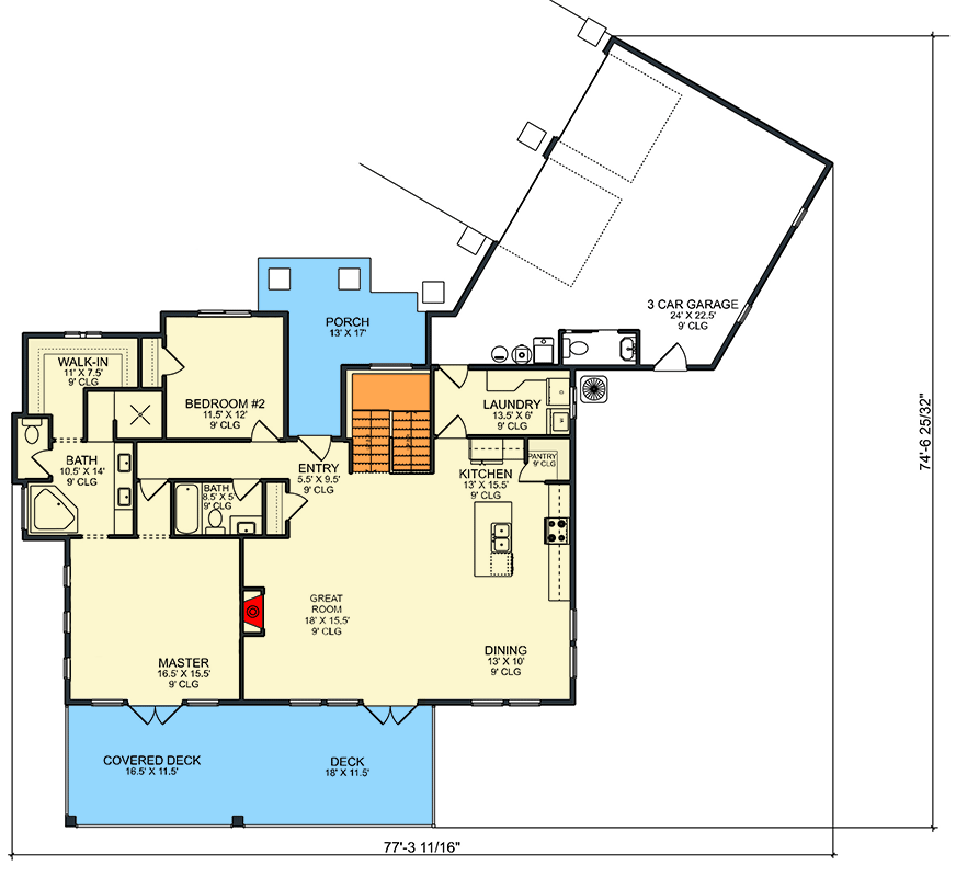
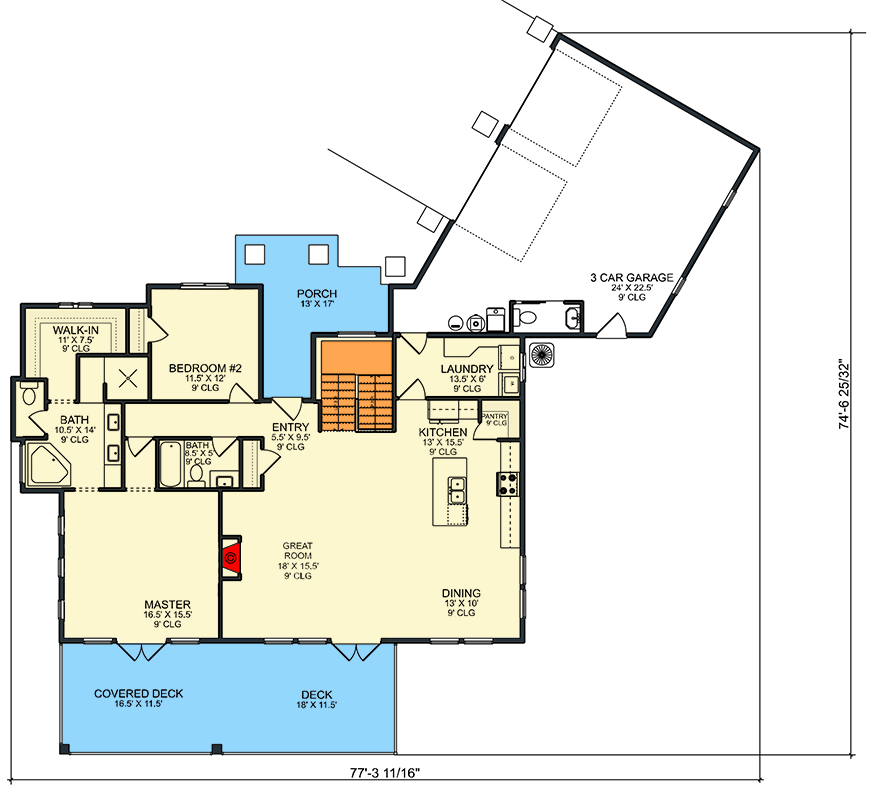
1st Floor
1,667 sq. ft.
Porch, Front
150 sq. ft.
Covered Patio
802 sq. ft.
Bedrooms
4
Full bathrooms
3
Half bathrooms
1
Standard Foundations
Crawl, Slab
Exterior Walls
2x6
Width
77' 3"
Depth
74' 7"
Type
Attached
Area
710 sq. ft.
Count
2 Cars
Entry Location
Front
Lower Level
8'
First Floor
9'
Primary Pitch
6 on 12
Framing Type
Stick And Truss
Total Heated Area
2,586 sq. ft.
Lower Level
922 sq. ft.
1st Floor
1,667 sq. ft.
Porch, Front
150 sq. ft.
Covered Patio
802 sq. ft.
Bedrooms
4
Full bathrooms
3
Half bathrooms
1
Standard Foundations
Crawl, Slab
Exterior Walls
2x6
Width
77' 3"
Depth
74' 7"
Type
Attached
Area
710 sq. ft.
Count
2 Cars
Entry Location
Front
Lower Level
8'
First Floor
9'
Primary Pitch
6 on 12
Framing Type
Stick And Truss