LogoLogo TaglineLogo Tagline
Loading...
Plan 405079FDC

4-Bedroom Barndominium House Plan with Vaulted Great Room and Wrap-Around Porch

Heated S.F.
2,946
Beds
4
Baths
3.5
Stories
2

Floor Plan

Plan 405079FDC

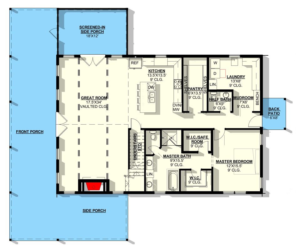
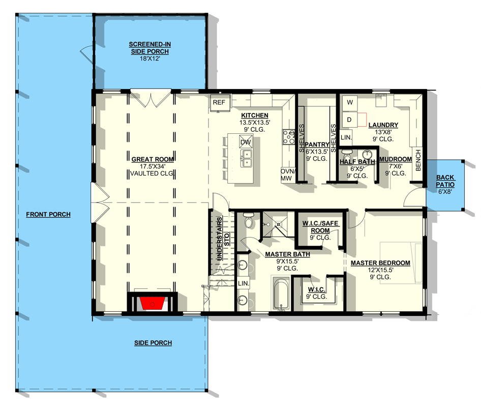
Main Level
Main Level
2nd Floor
2nd Floor

Plan 405079FDC

M-F 9am-5pm EST |

1-203-761-8500

Main Level

Plan 405079FDC: 4-Bedroom Barndominium House Plan with Vaulted Great Room and Wrap-Around Porch - Floor Plan - Main Level - Barndominium, Farmhouse

2nd Floor

Plan 405079FDC: 4-Bedroom Barndominium House Plan with Vaulted Great Room and Wrap-Around Porch - Floor Plan - 2nd Floor - Barndominium, Farmhouse

Plan Details

  • This inviting 2,946 sq. ft. Barndominium Farmhouse House Plan features 4 bedrooms, 3 full bathrooms, and 1 half bathroom, showcasing a distinctive red siding exterior and an expansive wrap-around porch.
  • Step inside through elegant French doors into a welcoming foyer that immediately opens to a dramatic two-story, vaulted great room, creating an immediate sense of grandeur and light. The layout promotes an open-concept flow, ideal for both daily living and gatherings.
  • The heart of the home features a seamless connection between the great room, a spacious dining area, and a gourmet kitchen designed for culinary exploration. A practical breakfast nook offers a casual dining spot, while a dedicated butler's walk-in pantry provides ample storage and prep space, enhancing organization and efficiency.
  • The first floor hosts a luxurious master suite, thoughtfully separated from common areas for ultimate privacy, creating a serene retreat. Upstairs, three additional bedrooms, including one with a Jack and Jill bath, offer comfortable accommodations for family or guests, alongside a versatile loft space.
  • Beyond the main living areas, a dedicated mudroom keeps entryways tidy, and a secure safe room provides peace of mind, adding practical and essential features to this thoughtfully designed home.
  • Embrace outdoor living on the extensive 1,158 sq. ft. wrap-around porch, perfect for morning coffee, evening relaxation, or hosting gatherings, offering picturesque views and a seamless connection to nature. An additional 48 sq. ft. covered patio provides a more intimate outdoor escape.

What's Included

  • Cover Sheet - General Notes
  • Foundation 
  • Floor Plan (s)
  • Electrical 
  • Roof
  • Exterior Elevation
  • Building Section

What's Not Included

  • Architectural or Engineering Stamp - handled locally if required
  • Site Plan - handled locally when required
  • Mechanical Drawings (location of heating and air equipment and duct work) - your subcontractors handle this
  • Plumbing Drawings (drawings showing the actual plumbing pipe sizes and locations) - your subcontractors handle this
  • Energy calculations - handled locally when required

Starting at

Loading...
Price Match Guarantee
What's included?

FORMAT & LICENSE

Choose an option

$0

Not sure what to choose?

Pointer link icon

FOUNDATION

Choose an option

+$0

OPTIONS

Choose Additional Options

+$0

Loading...

Modify this Plan

Receive a free modification quote within 3 business days.

Loading...

Start with a Cost Report

Calculate the cost to build & furnish your home.

Loading...
Loading...

Square Footage Breakdown

Total Heated Area

2,946 sq. ft.

1st Floor

1,820 sq. ft.

2nd Floor

1,126 sq. ft.

Porch, Front

1,158 sq. ft.

Covered Patio

48 sq. ft.

Beds/Baths

Bedrooms

4

Full bathrooms

3

Half bathrooms

1

Foundation Type

Standard Foundations

Monolithic Slab, Post/Beam, Post Frame, Slab

Exterior Walls

Exterior Walls

2x6

Dimensions

Width

52' 0"

Depth

35' 0"

Ceiling Heights

First Floor

9'

Second Floor

8'

Room

Ceiling Type

Height

Great Room

Vaulted

0' 0''

Architectural Style

Barndominium

Square Footage Breakdown

Total Heated Area

2,946 sq. ft.

1st Floor

1,820 sq. ft.

2nd Floor

1,126 sq. ft.

Porch, Front

1,158 sq. ft.

Covered Patio

48 sq. ft.

Beds/Baths

Bedrooms

4

Full bathrooms

3

Half bathrooms

1

Foundation Type

Standard Foundations

Monolithic Slab, Post/Beam, Post Frame, Slab

Exterior Walls

Exterior Walls

2x6

Dimensions

Width

52' 0"

Depth

35' 0"

Ceiling Heights

First Floor

9'

Second Floor

8'

Room

Ceiling Type

Height

Great Room

Vaulted

0' 0''

Architectural Style

* Please note that all sale prices and promotions featured on our website are subject to change without prior notice. While we strive to provide accurate and up-to-date information, occasional discrepancies may occur due to factors beyond our control. We encourage you to verify all details, including pricing and availability, before making any purchase. Exclusions or restrictions may apply to specific promotions. We reserve the right to modify or cancel any sale at our discretion. Thank you for your understanding and happy shopping!Let's go back to the top.