Exclusive


Total Heated Area
2,660 sq. ft.
1st Floor
1,814 sq. ft.
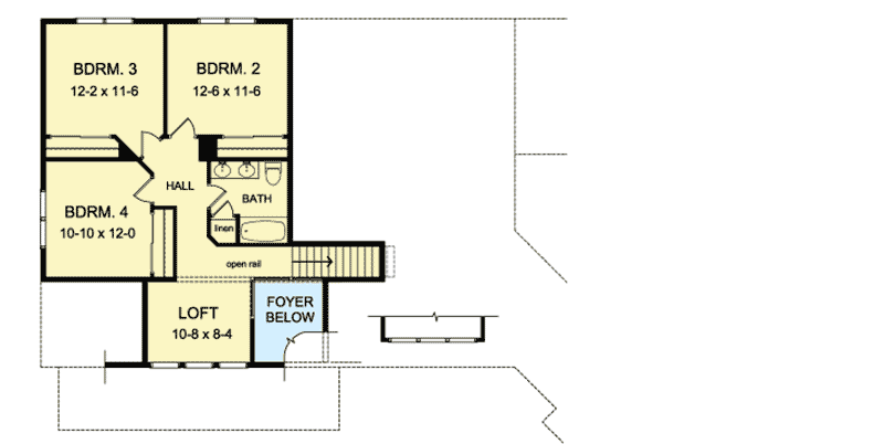
2nd Floor
846 sq. ft.
Optional Lower Level
1,814 sq. ft.
Porch, Front
210 sq. ft.
Deck
198 sq. ft.
Bedrooms
4
Full bathrooms
2
Half bathrooms
1
Standard Foundations
Basement
Exterior Walls
2x6
Width
84' 4"
Depth
51' 3"
Max Ridge Height
28' 0"
Type
Attached
Area
528 sq. ft.
Count
2 Cars
Entry Location
Courtyard
First Floor
9'
Second Floor
8'
Primary Pitch
12 on 12
Framing Type
Stick And Truss
Total Heated Area
2,660 sq. ft.
1st Floor
1,814 sq. ft.
2nd Floor
846 sq. ft.
Optional Lower Level
1,814 sq. ft.
Porch, Front
210 sq. ft.
Deck
198 sq. ft.
Bedrooms
4
Full bathrooms
2
Half bathrooms
1
Standard Foundations
Basement
Exterior Walls
2x6
Width
84' 4"
Depth
51' 3"
Max Ridge Height
28' 0"
Type
Attached
Area
528 sq. ft.
Count
2 Cars
Entry Location
Courtyard
First Floor
9'
Second Floor
8'
Primary Pitch
12 on 12
Framing Type
Stick And Truss