

Total Heated Area
2,430 sq. ft.
1st Floor
2,430 sq. ft.
Bonus
526 sq. ft.
Porch, Front
64 sq. ft.
Porch, Rear
168 sq. ft.
Bedrooms
4
Full bathrooms
3
Half bathrooms
1
Standard Foundations
Slab
Exterior Walls
2x4
Width
58' 0"
Depth
68' 0"
Max Ridge Height
32' 0"
Type
Attached
Area
768 sq. ft.
Count
3 Cars
Entry Location
Front
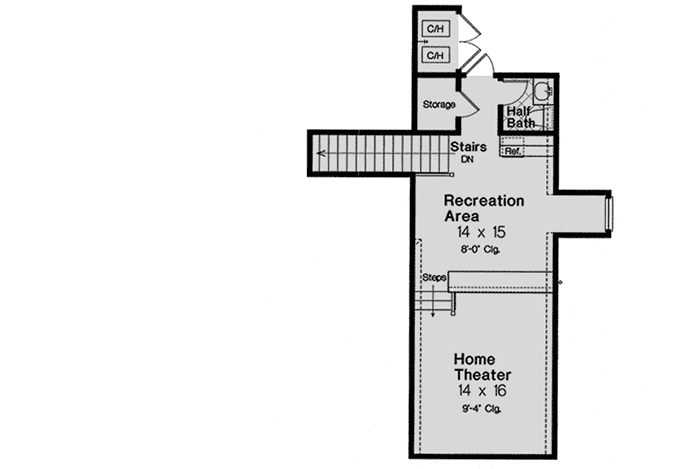
Lower Level
10'
First Floor
8'
Primary Pitch
12 on 12
Secondary Pitch
16 on 12
Total Heated Area
2,430 sq. ft.
1st Floor
2,430 sq. ft.
Bonus
526 sq. ft.
Porch, Front
64 sq. ft.
Porch, Rear
168 sq. ft.
Bedrooms
4
Full bathrooms
3
Half bathrooms
1
Standard Foundations
Slab
Exterior Walls
2x4
Width
58' 0"
Depth
68' 0"
Max Ridge Height
32' 0"
Type
Attached
Area
768 sq. ft.
Count
3 Cars
Entry Location
Front
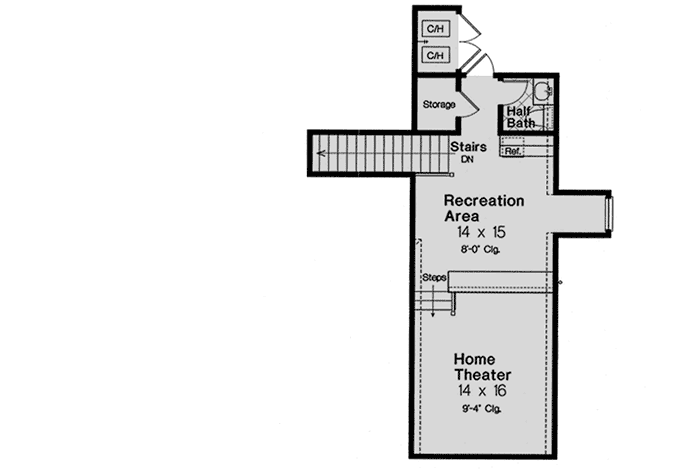
Lower Level
10'
First Floor
8'
Primary Pitch
12 on 12
Secondary Pitch
16 on 12