


Total Heated Area
2,898 sq. ft.
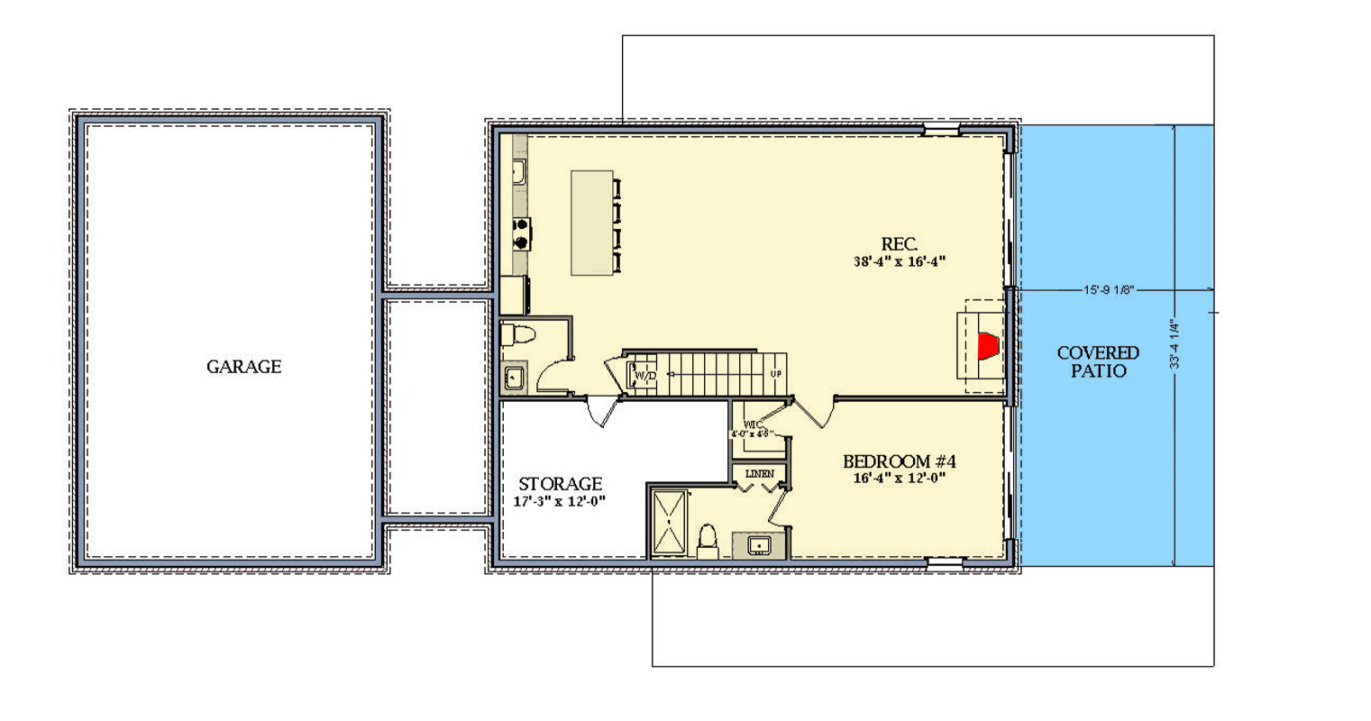
Lower Level
1,118 sq. ft.
1st Floor
1,464 sq. ft.
2nd Floor
316 sq. ft.
Porch, Rear
627 sq. ft.
Deck
321 sq. ft.
Covered Patio
520 sq. ft.
Storage
189 sq. ft.
Bedrooms
4
Full bathrooms
4
Half bathrooms
2
Standard Foundations
Walkout
Exterior Walls
2x6
Width
86' 5"
Depth
47' 8"
Max Ridge Height
30' 0"
Type
Attached
Area
777 sq. ft.
Count
3 Cars
Entry Location
Side
Lower Level
10'
First Floor
10'
Second Floor
9'
Primary Pitch
12 on 12
Framing Type
Stick
Total Heated Area
2,898 sq. ft.
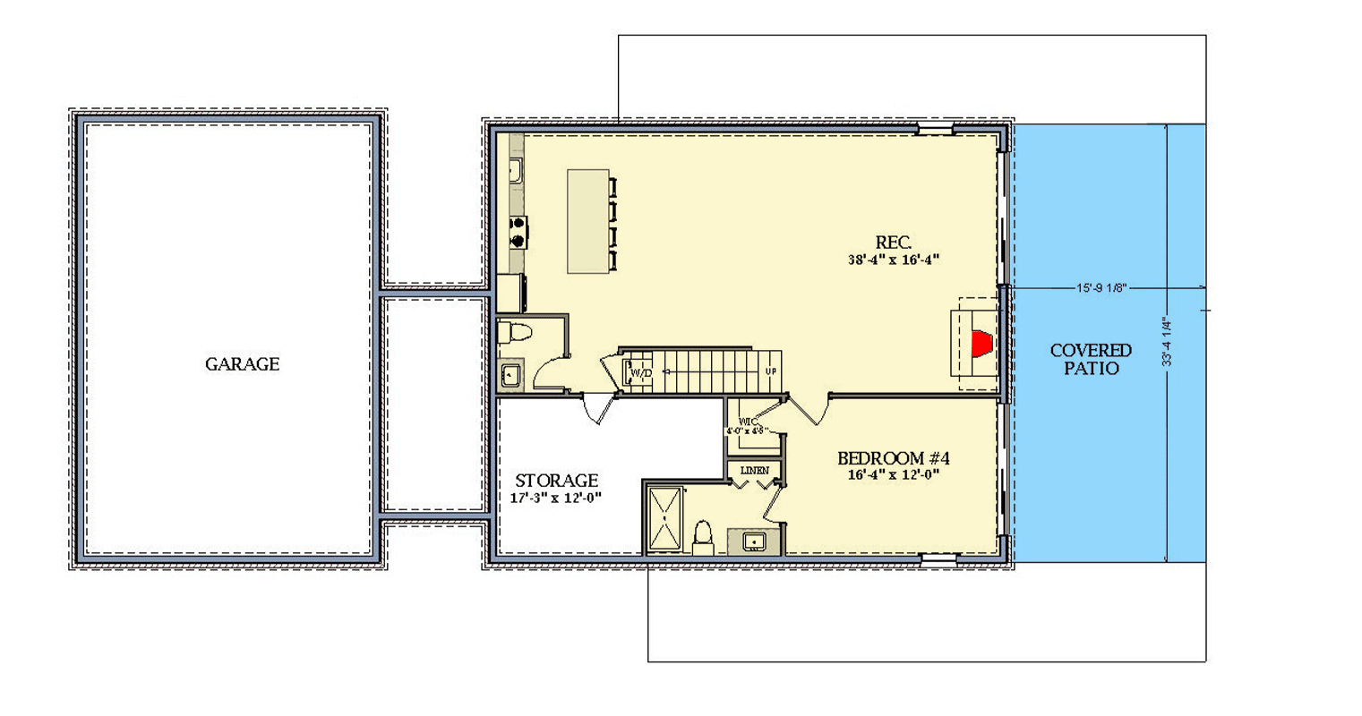
Lower Level
1,118 sq. ft.
1st Floor
1,464 sq. ft.
2nd Floor
316 sq. ft.
Porch, Rear
627 sq. ft.
Deck
321 sq. ft.
Covered Patio
520 sq. ft.
Storage
189 sq. ft.
Bedrooms
4
Full bathrooms
4
Half bathrooms
2
Standard Foundations
Walkout
Exterior Walls
2x6
Width
86' 5"
Depth
47' 8"
Max Ridge Height
30' 0"
Type
Attached
Area
777 sq. ft.
Count
3 Cars
Entry Location
Side
Lower Level
10'
First Floor
10'
Second Floor
9'
Primary Pitch
12 on 12
Framing Type
Stick