

Total Heated Area
1,552 sq. ft.
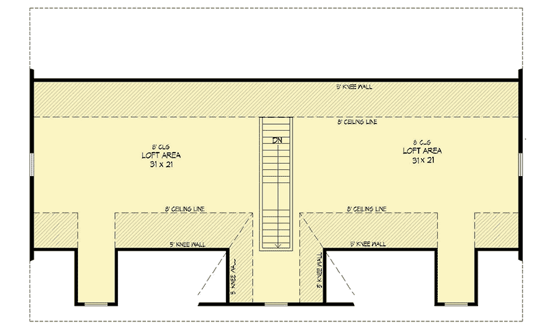
2nd Floor
1,552 sq. ft.
Bedrooms
0
Standard Foundations
Slab
Exterior Walls
2x6
Width
63' 0"
Depth
40' 0"
Max Ridge Height
28' 1"
Type
Detached
Area
2520 sq. ft.
Count
4 Cars
Entry Location
Front
First Floor
14'
Second Floor
8'
Primary Pitch
8 on 12
Framing Type
Truss
Total Heated Area
1,552 sq. ft.
2nd Floor
1,552 sq. ft.
Bedrooms
0
Standard Foundations
Slab
Exterior Walls
2x6
Width
63' 0"
Depth
40' 0"
Max Ridge Height
28' 1"
Type
Detached
Area
2520 sq. ft.
Count
4 Cars
Entry Location
Front
First Floor
14'
Second Floor
8'
Primary Pitch
8 on 12
Framing Type
Truss