


Total Heated Area
3,793 sq. ft.
1st Floor
1,973 sq. ft.
2nd Floor
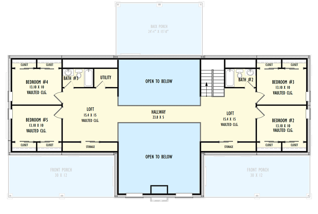
1,820 sq. ft.
Loft
460 sq. ft.
Porch, Front
720 sq. ft.
Porch, Rear
730 sq. ft.
Porch, Combined
1,450 sq. ft.
Bedrooms
5
Full bathrooms
3
Half bathrooms
1
Standard Foundations
Slab
Exterior Walls
Metal
Optional Type(s)
2x6
Width
85' 0"
Depth
55' 0"
Max Ridge Height
26' 2"
Type
Attached
Area
707 sq. ft.
Count
2 Cars
Entry Location
Side
First Floor
9'
Primary Pitch
6 on 12
Framing Type
PEMB & Stick
Total Heated Area
3,793 sq. ft.
1st Floor
1,973 sq. ft.
2nd Floor
1,820 sq. ft.
Loft
460 sq. ft.
Porch, Front
720 sq. ft.
Porch, Rear
730 sq. ft.
Porch, Combined
1,450 sq. ft.
Bedrooms
5
Full bathrooms
3
Half bathrooms
1
Standard Foundations
Slab
Exterior Walls
Metal
Optional Type(s)
2x6
Width
85' 0"
Depth
55' 0"
Max Ridge Height
26' 2"
Type
Attached
Area
707 sq. ft.
Count
2 Cars
Entry Location
Side
First Floor
9'
Primary Pitch
6 on 12
Framing Type
PEMB & Stick