

Total Heated Area
2,743 sq. ft.
1st Floor
1,725 sq. ft.
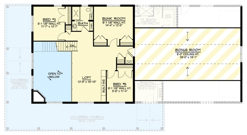
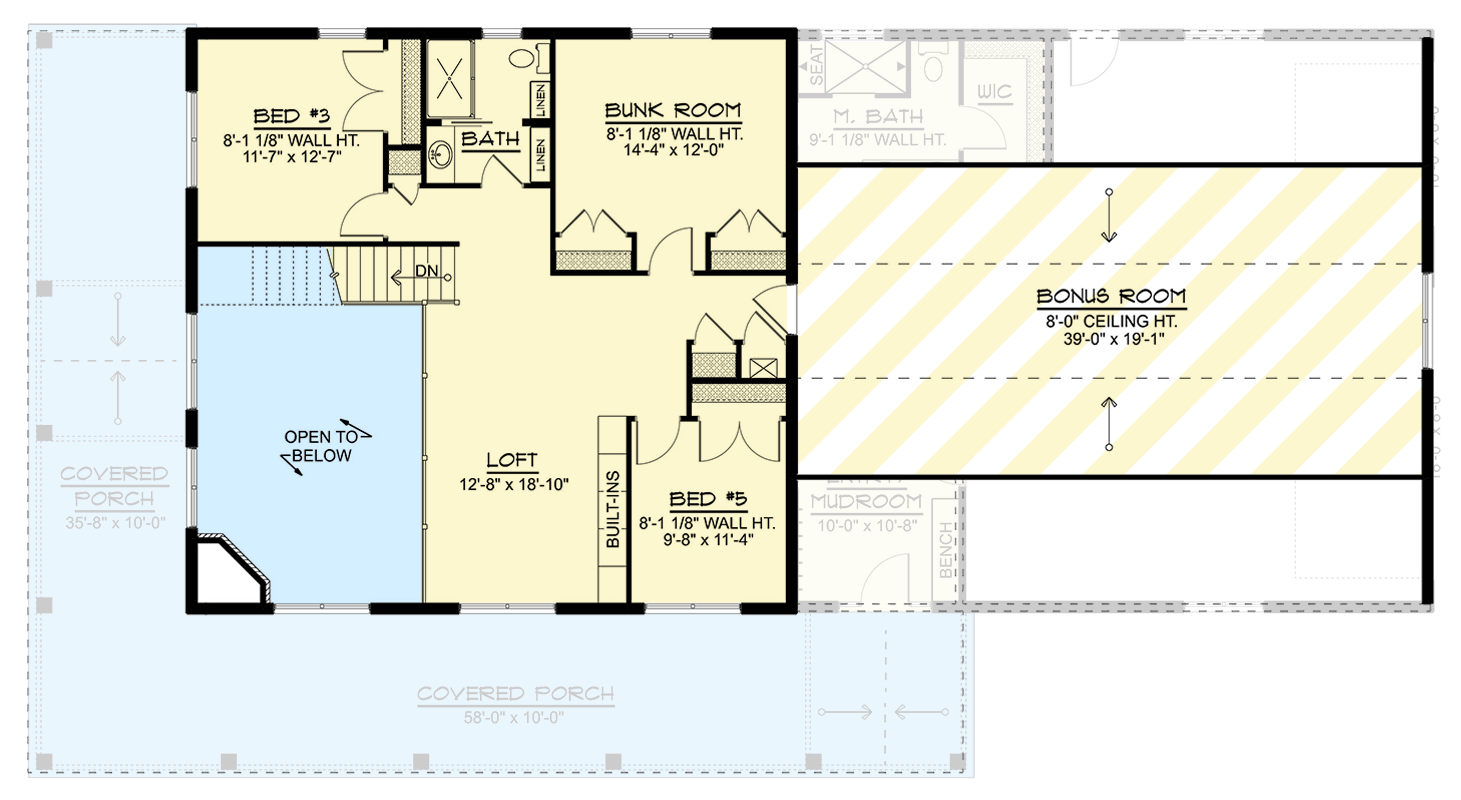
2nd Floor
1,018 sq. ft.
Bonus
776 sq. ft.
Bedrooms
5
Full bathrooms
3
Standard Foundations
Slab
Exterior Walls
2x6
Width
87' 0"
Depth
46' 0"
Max Ridge Height
27' 9"
Type
Attached
Area
1047 sq. ft.
Count
3 Cars
Entry Location
Side
First Floor
9'
Second Floor
8'
Primary Pitch
6 on 12
Secondary Pitch
8 on 12
Framing Type
Truss
Total Heated Area
2,743 sq. ft.
1st Floor
1,725 sq. ft.
2nd Floor
1,018 sq. ft.
Bonus
776 sq. ft.
Bedrooms
5
Full bathrooms
3
Standard Foundations
Slab
Exterior Walls
2x6
Width
87' 0"
Depth
46' 0"
Max Ridge Height
27' 9"
Type
Attached
Area
1047 sq. ft.
Count
3 Cars
Entry Location
Side
First Floor
9'
Second Floor
8'
Primary Pitch
6 on 12
Secondary Pitch
8 on 12
Framing Type
Truss