

Total Heated Area
4,676 sq. ft.
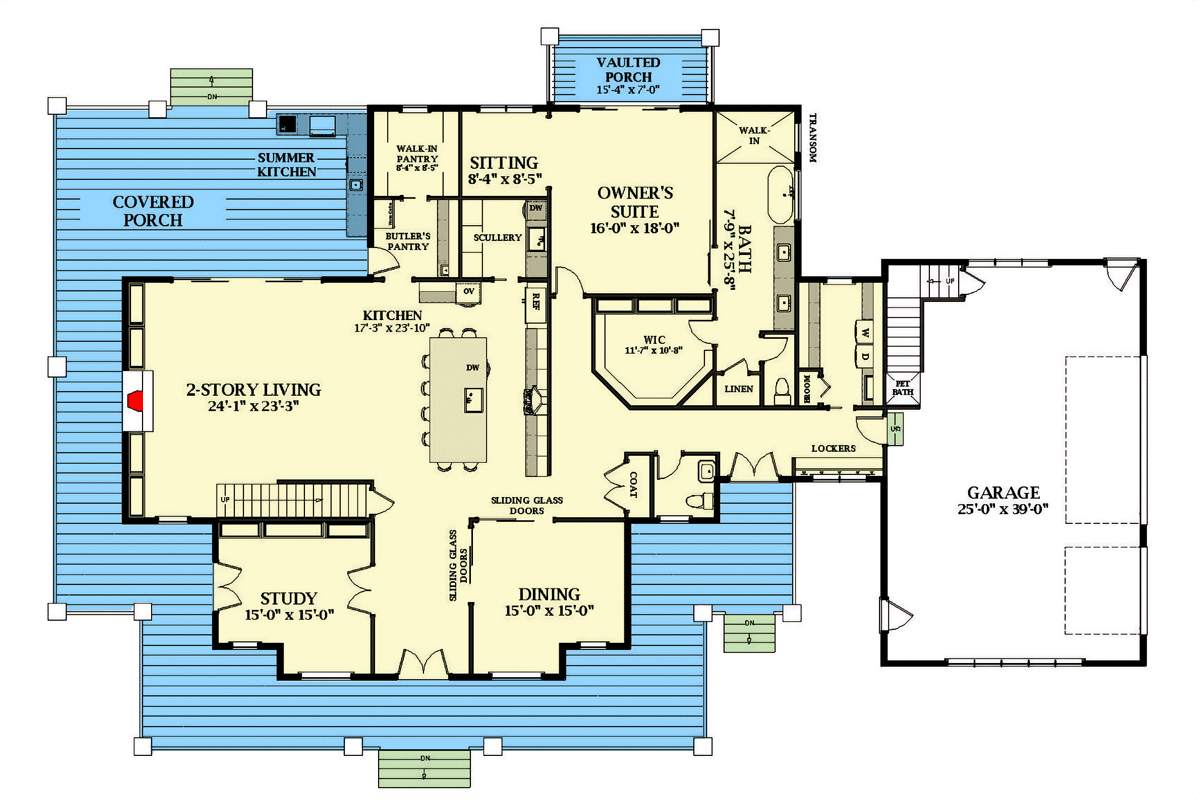
1st Floor
3,067 sq. ft.
2nd Floor
1,609 sq. ft.
Bonus
786 sq. ft.
Loft
165 sq. ft.
Porch, Front
181 sq. ft.
Porch, Rear
267 sq. ft.
Porch, Combined
1,995 sq. ft.
Storage
74 sq. ft.
Bedrooms
5
Full bathrooms
4
Half bathrooms
2
Standard Foundations
Crawl
Exterior Walls
2x6
Width
108' 0"
Depth
71' 0"
Max Ridge Height
38' 0"
Type
Attached
Area
1034 sq. ft.
Count
3 Cars
Entry Location
Side
First Floor
10'
Second Floor
9'
Primary Pitch
12 on 12
Framing Type
Stick
Total Heated Area
4,676 sq. ft.
1st Floor
3,067 sq. ft.
2nd Floor
1,609 sq. ft.
Bonus
786 sq. ft.
Loft
165 sq. ft.
Porch, Front
181 sq. ft.
Porch, Rear
267 sq. ft.
Porch, Combined
1,995 sq. ft.
Storage
74 sq. ft.
Bedrooms
5
Full bathrooms
4
Half bathrooms
2
Standard Foundations
Crawl
Exterior Walls
2x6
Width
108' 0"
Depth
71' 0"
Max Ridge Height
38' 0"
Type
Attached
Area
1034 sq. ft.
Count
3 Cars
Entry Location
Side
First Floor
10'
Second Floor
9'
Primary Pitch
12 on 12
Framing Type
Stick