

Total Heated Area
4,838 sq. ft.
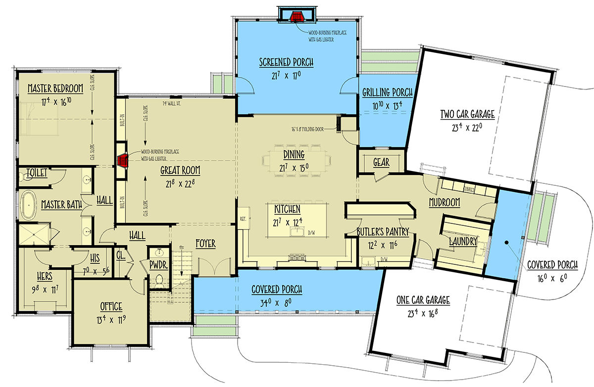
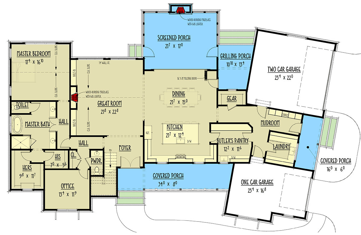
1st Floor
2,766 sq. ft.
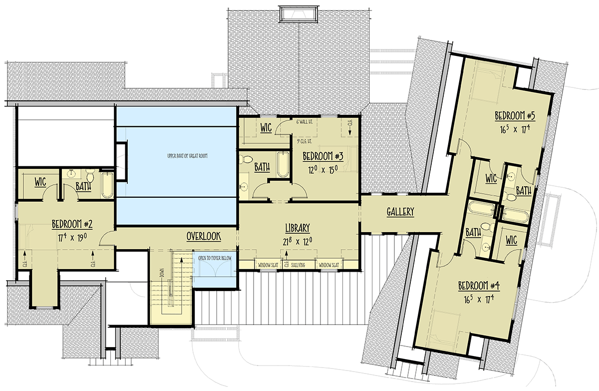
2nd Floor
2,072 sq. ft.
Porch, Front
257 sq. ft.
Screened Porch
364 sq. ft.
Bedrooms
5
Full bathrooms
5
Half bathrooms
1
Standard Foundations
Crawl
Exterior Walls
2x4
Width
98' 3"
Depth
65' 0"
Max Ridge Height
32' 0"
Type
Attached
Area
920 sq. ft.
Count
3 Cars
Entry Location
Side
First Floor
10' 1"
Second Floor
9' 1"
Primary Pitch
10 on 12
Secondary Pitch
12 on 12
Total Heated Area
4,838 sq. ft.
1st Floor
2,766 sq. ft.
2nd Floor
2,072 sq. ft.
Porch, Front
257 sq. ft.
Screened Porch
364 sq. ft.
Bedrooms
5
Full bathrooms
5
Half bathrooms
1
Standard Foundations
Crawl
Exterior Walls
2x4
Width
98' 3"
Depth
65' 0"
Max Ridge Height
32' 0"
Type
Attached
Area
920 sq. ft.
Count
3 Cars
Entry Location
Side
First Floor
10' 1"
Second Floor
9' 1"
Primary Pitch
10 on 12
Secondary Pitch
12 on 12