

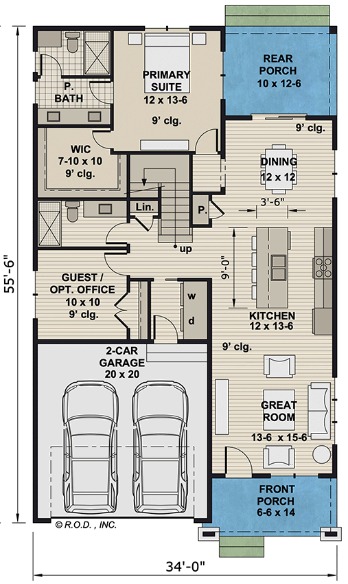
Total Heated Area
2,291 sq. ft.
1st Floor
1,296 sq. ft.
2nd Floor
995 sq. ft.
Porch, Combined
216 sq. ft.
Bedrooms
4 or 5
Full bathrooms
4
Standard Foundations
Crawl
Exterior Walls
2x6
Width
34' 0"
Depth
55' 6"
Type
Attached
Area
420 sq. ft.
Count
2 Cars
Entry Location
Front
First Floor
9'
Second Floor
8'
Framing Type
Truss
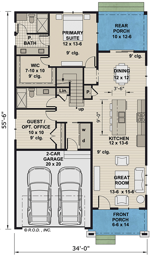
Total Heated Area
2,291 sq. ft.
1st Floor
1,296 sq. ft.
2nd Floor
995 sq. ft.
Porch, Combined
216 sq. ft.
Bedrooms
4 or 5
Full bathrooms
4
Standard Foundations
Crawl
Exterior Walls
2x6
Width
34' 0"
Depth
55' 6"
Type
Attached
Area
420 sq. ft.
Count
2 Cars
Entry Location
Front
First Floor
9'
Second Floor
8'
Framing Type
Truss