LogoLogo TaglineLogo Tagline
Loading...
Plan 493017GNT

Exclusive

5 or 6-Bedroom Contemporary Single-Story House Plan with Vaulted Great Room - 6790 Sq Ft

Heated S.F.
6,790
Beds
5 - 6
Baths
5.5
Stories
1
Cars
3

Floor Plan

Plan 493017GNT

Main Level
Main Level
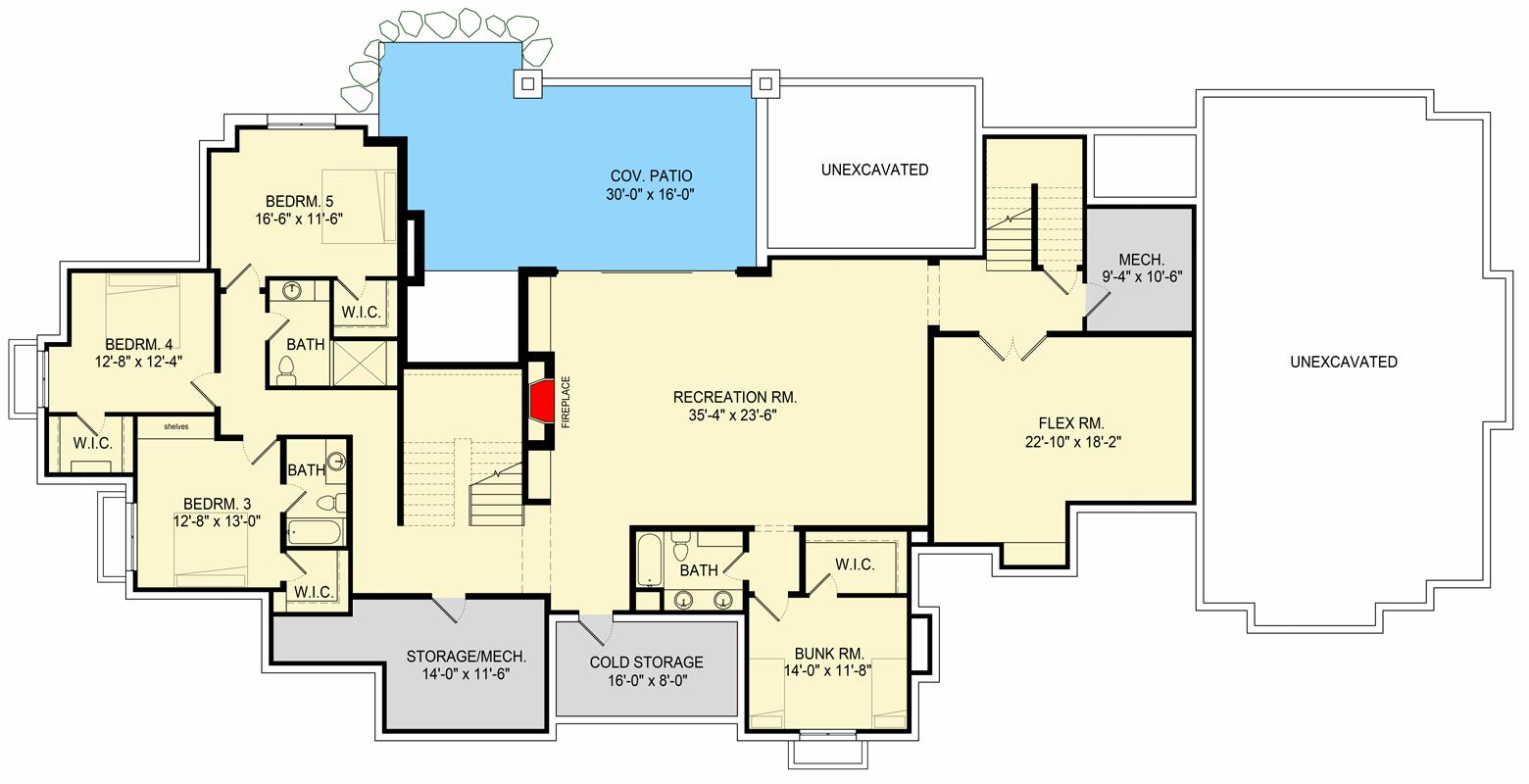
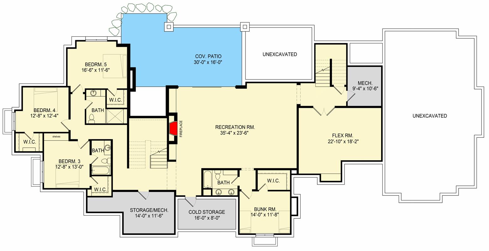
Lower Level - Walkout Basement
Lower Level - Walkout Basement

Plan 493017GNT

M-F 9am-5pm EST |

1-203-761-8500

Main Level

Plan 493017GNT: 5 or 6-Bedroom Contemporary Single-Story House Plan with Vaulted Great Room - 6790 Sq Ft - Floor Plan - Main Level - Contemporary, New American, Transitional

Lower Level - Walkout Basement

Plan 493017GNT: 5 or 6-Bedroom Contemporary Single-Story House Plan with Vaulted Great Room - 6790 Sq Ft - Floor Plan - Lower Level - Walkout Basement - Contemporary, New American, Transitional

Plan Details

  • This modern house plan offers 6,790 square feet of heated living space, featuring 5 to 6 bedrooms, 5.5 bathrooms, and a 1,214 square foot, three-car garage with a side-entry.
  • Architectural Designs' primary focus is to make the process of finding and buying house plans more convenient for those interested in constructing new homes - single family and multi-family ones - as well as garages, pool houses and even sheds and backyard offices.
  • Our website offers a vast collection of home designs, encompassing various architectural styles, sizes, and features, which can be customized to meet specific needs and preferences
  • We curate and add to our design portfolio every day as we work with hundreds of residential building designers and architects to bring you the most diverse and best house plans available.
  • We can modify any house plan you see on our site. Learn more about modifications.

What's Included

  • Cover Sheet
  • General Notes
  • Foundation Plan
  • Main Level/Second Level (if applicable) door and window schedules
  • Fully Dimensioned Floor Plans
  • Elevations
  • Exterior Perspective Views
  • Building Section
  • Typical Construction Details
  • Bird's Eye Roof Plan
  • Suggested Electrical Layout (Outlets, Fixtures, Switches)

What's Not Included

  • Architectural or Engineering Stamp - handled locally if required 
  • Site Plan - handled locally when required 
  • Mechanical Drawings (location of heating and air equipment and duct work) - your subcontractors handle this 
  • Plumbing Drawings (drawings showing the actual plumbing pipe sizes and locations) - your subcontractors handle this 
  • Energy calculations - handled locally when required 

Starting at
Loading...
What's included?
Plan Set
Select...

Foundation
Select...

Options
Optional Add-Ons
+$0

Loading...
Price Match Guarantee
Cost to Build Report
Still deciding? Calculate the cost to build this house in your area.
Loading...
Customize This Plan
Need to make changes? We will get you a free price quote within 1 to 3 business days.
Cost to Furnish Report
Instant room-by-room estimates for your entire furniture & home decor plan, matched to your budget.
Loading...

Square Footage Breakdown

Total Heated Area

6,790 sq. ft.

Lower Level

3,199 sq. ft.

1st Floor

3,591 sq. ft.

Porch, Rear

540 sq. ft.

Beds/Baths

Bedrooms

5 or 6

Full bathrooms

5

Half bathrooms

1

Foundation Type

Standard Foundations

Walkout

Exterior Walls

Exterior Walls

2x6

Dimensions

Width

131' 0"

Depth

57' 6"

Max Ridge Height

34' 0"

Garage

Type

Attached

Area

1214 sq. ft.

Count

3 Cars

Entry Location

Side

Ceiling Heights

Lower Level

10'

First Floor

12'

Roof Details

Primary Pitch

12 on 14

Secondary Pitch

12 on 12

Framing Type

Stick And Truss

Architectural Style

Contemporary

Plan Collections

Square Footage Breakdown

Total Heated Area

6,790 sq. ft.

Lower Level

3,199 sq. ft.

1st Floor

3,591 sq. ft.

Porch, Rear

540 sq. ft.

Beds/Baths

Bedrooms

5 or 6

Full bathrooms

5

Half bathrooms

1

Foundation Type

Standard Foundations

Walkout

Exterior Walls

Exterior Walls

2x6

Dimensions

Width

131' 0"

Depth

57' 6"

Max Ridge Height

34' 0"

Garage

Type

Attached

Area

1214 sq. ft.

Count

3 Cars

Entry Location

Side

Ceiling Heights

Lower Level

10'

First Floor

12'

Roof Details

Primary Pitch

12 on 14

Secondary Pitch

12 on 12

Framing Type

Stick And Truss

Plan Collections

* Please note that all sale prices and promotions featured on our website are subject to change without prior notice. While we strive to provide accurate and up-to-date information, occasional discrepancies may occur due to factors beyond our control. We encourage you to verify all details, including pricing and availability, before making any purchase. Exclusions or restrictions may apply to specific promotions. We reserve the right to modify or cancel any sale at our discretion. Thank you for your understanding and happy shopping!Let's go back to the top.