

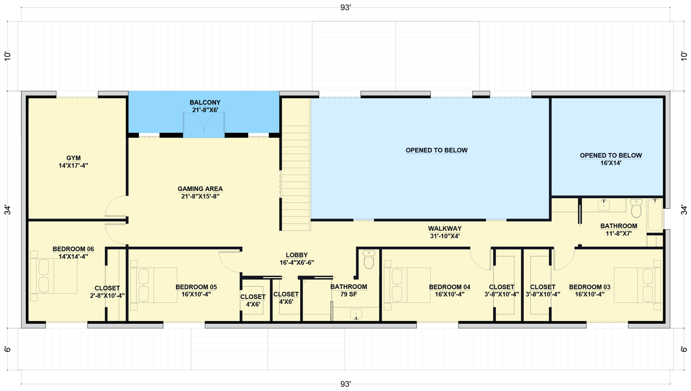
Total Heated Area
4,360 sq. ft.
1st Floor
2,305 sq. ft.
2nd Floor
2,055 sq. ft.
Porch, Combined
1,488 sq. ft.
Balcony / Veranda
130 sq. ft.
Bedrooms
6
Full bathrooms
4
Standard Foundations
Slab
Exterior Walls
Metal or PEMB
Optional Type(s)
2x6
Width
93' 0"
Depth
34' 0"
Max Ridge Height
28' 6"
Type
Attached
Area
856 sq. ft.
Count
3 Cars
Entry Location
Side
Primary Pitch
6 on 12
Framing Type
Steel
Total Heated Area
4,360 sq. ft.
1st Floor
2,305 sq. ft.
2nd Floor
2,055 sq. ft.
Porch, Combined
1,488 sq. ft.
Balcony / Veranda
130 sq. ft.
Bedrooms
6
Full bathrooms
4
Standard Foundations
Slab
Exterior Walls
Metal or PEMB
Optional Type(s)
2x6
Width
93' 0"
Depth
34' 0"
Max Ridge Height
28' 6"
Type
Attached
Area
856 sq. ft.
Count
3 Cars
Entry Location
Side
Primary Pitch
6 on 12
Framing Type
Steel