

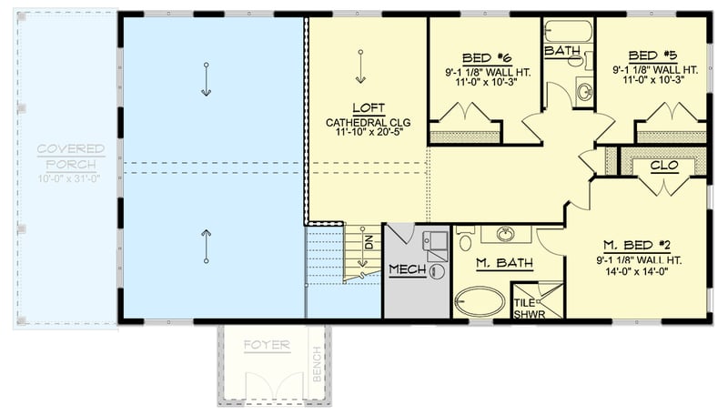
Total Heated Area
2,545 sq. ft.
1st Floor
1,373 sq. ft.
2nd Floor
1,172 sq. ft.
Porch, Rear
298 sq. ft.
Bedrooms
6
Full bathrooms
4
Half bathrooms
1
Standard Foundations
Slab
Exterior Walls
2x6
Width
69' 0"
Depth
39' 0"
Max Ridge Height
30' 0"
First Floor
9'
Second Floor
9'
Primary Pitch
7 on 12
Secondary Pitch
4 on 12
Framing Type
Truss
Total Heated Area
2,545 sq. ft.
1st Floor
1,373 sq. ft.
2nd Floor
1,172 sq. ft.
Porch, Rear
298 sq. ft.
Bedrooms
6
Full bathrooms
4
Half bathrooms
1
Standard Foundations
Slab
Exterior Walls
2x6
Width
69' 0"
Depth
39' 0"
Max Ridge Height
30' 0"
First Floor
9'
Second Floor
9'
Primary Pitch
7 on 12
Secondary Pitch
4 on 12
Framing Type
Truss