LogoLogo TaglineLogo Tagline
Loading...
Plan 90352PD

720 Square Foot Rustic Split Level House Plan with Option to Finish Ground Level

Heated S.F.
720
Beds
1 - 3
Baths
1 - 2
Stories
1
Cars
1

Floor Plan

Plan 90352PD

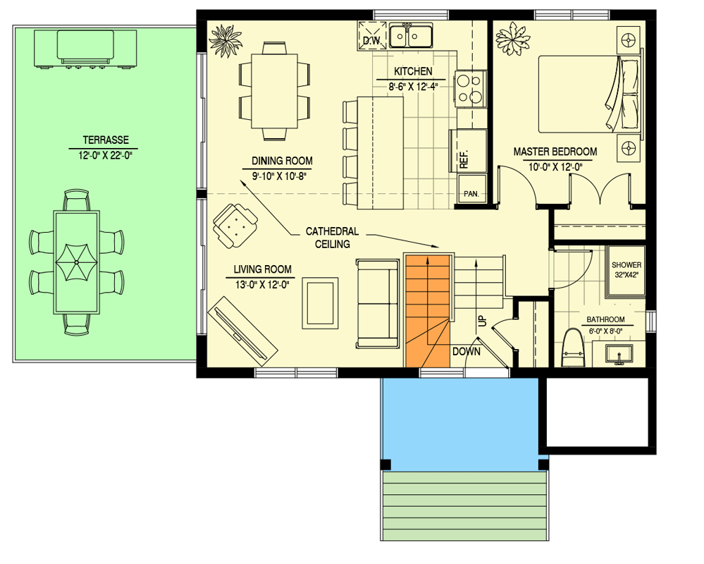
Main Level
Main Level
Optional Lower Level
Optional Lower Level

Plan 90352PD

M-F 9am-5pm EST |

1-203-761-8500

Main Level

Plan 90352PD: 720 Square Foot Rustic Split Level House Plan with Option to Finish Ground Level - Floor Plan - Main Level - Country, Craftsman, Mountain, Northwest

Optional Lower Level

Plan 90352PD: 720 Square Foot Rustic Split Level House Plan with Option to Finish Ground Level - Floor Plan - Optional Lower Level - Country, Craftsman, Mountain, Northwest

Plan Details

  • This streamlined design presents a Mountain Craftsman aesthetic with a rectangular footprint that keeps budget in mind.
  • An open gable front porch guides you inside, where you'll find a split-level foyer.
  • A few steps up and an open living space is revealed, anchored by a kitchen island, and supported by a terrace for outdoor enjoyment.
  • The master bedroom can be found on this level, along with a 3/4 bathroom.
  • Finish the lower level to gain two bedrooms, another bath, laundry room, and family room. A carport and attached shed complete the design.

What's Included

Please note this plan is designed to the National Building Code of Canada.  
  • Elevations
  • Lower level plan -- including floor above structure, concrete level and thickness, electrical layout
  • Main floor plan w/ structure for the roof above, electrical layout
  • Building section
  • Construction details
  • Suggested lighting plan

What's Not Included

  • Architectural or Engineering Stamp - handled locally if required
  • Site Plan - handled locally when required
  • Mechanical Drawings (location of heating and air equipment and duct work) - your subcontractors handle this
  • Plumbing Drawings (drawings showing the actual plumbing pipe sizes and locations) - your subcontractors handle this
  • Framing - layouts with beam sizes and locations
  • Energy calculations - handled locally when required
Starting at
Loading...
What's included?
Plan Set
Select...

Foundation
Select...

Options
Optional Add-Ons
+$0

Loading...
Price Match Guarantee
Cost to Build Report
Still deciding? Calculate the cost to build this house in your area.
Loading...
Customize This Plan
Need to make changes? We will get you a free price quote within 1 to 3 business days.
Cost to Furnish Report
Instant room-by-room estimates for your entire furniture & home decor plan, matched to your budget.
Loading...

Square Footage Breakdown

Total Heated Area

720 sq. ft.

1st Floor

720 sq. ft.

Basement Unfinished

720 sq. ft.

Porch, Front

63 sq. ft.

Porch, Rear

264 sq. ft.

Entry

16 sq. ft.

Beds/Baths

Bedrooms

1, 2, or 3

Full bathrooms

1 or 2

Foundation Type

Standard Foundations

Basement

Exterior Walls

Exterior Walls

2x6

Dimensions

Width

30' 0"

Depth

24' 0"

Max Ridge Height

25' 10"

Garage

Type

Carport, Attached

Count

1 Cars

Entry Location

Side

Ceiling Heights

Lower Level

8'

First Floor

8'

Room

Ceiling Type

Height

Dining Room

Cathedral

13' 10''

Living Room

Cathedral

13' 10''

Roof Details

Primary Pitch

12 on 10

Secondary Pitch

12 on 8

Framing Type

Truss

Architectural Style

Country

Plan Collections

Square Footage Breakdown

Total Heated Area

720 sq. ft.

1st Floor

720 sq. ft.

Basement Unfinished

720 sq. ft.

Porch, Front

63 sq. ft.

Porch, Rear

264 sq. ft.

Entry

16 sq. ft.

Beds/Baths

Bedrooms

1, 2, or 3

Full bathrooms

1 or 2

Foundation Type

Standard Foundations

Basement

Exterior Walls

Exterior Walls

2x6

Dimensions

Width

30' 0"

Depth

24' 0"

Max Ridge Height

25' 10"

Garage

Type

Carport, Attached

Count

1 Cars

Entry Location

Side

Ceiling Heights

Lower Level

8'

First Floor

8'

Room

Ceiling Type

Height

Dining Room

Cathedral

13' 10''

Living Room

Cathedral

13' 10''

Roof Details

Primary Pitch

12 on 10

Secondary Pitch

12 on 8

Framing Type

Truss

Plan Collections

* Please note that all sale prices and promotions featured on our website are subject to change without prior notice. While we strive to provide accurate and up-to-date information, occasional discrepancies may occur due to factors beyond our control. We encourage you to verify all details, including pricing and availability, before making any purchase. Exclusions or restrictions may apply to specific promotions. We reserve the right to modify or cancel any sale at our discretion. Thank you for your understanding and happy shopping!Let's go back to the top.