

Total Heated Area
2,696 sq. ft.
1st Floor
2,696 sq. ft.
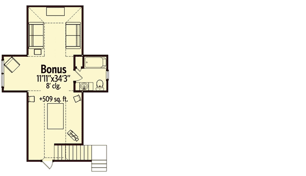
Bonus
509 sq. ft.
Porch, Combined
499 sq. ft.
Bedrooms
4
Full bathrooms
2 or 3
Half bathrooms
1
Standard Foundations
Slab
Exterior Walls
2x4
Width
68' 1"
Depth
82' 0"
Max Ridge Height
25' 3"
Type
Attached
Area
902 sq. ft.
Count
3 Cars
Entry Location
Side
First Floor
9'
Primary Pitch
10 on 12
Framing Type
Stick
Total Heated Area
2,696 sq. ft.
1st Floor
2,696 sq. ft.
Bonus
509 sq. ft.
Porch, Combined
499 sq. ft.
Bedrooms
4
Full bathrooms
2 or 3
Half bathrooms
1
Standard Foundations
Slab
Exterior Walls
2x4
Width
68' 1"
Depth
82' 0"
Max Ridge Height
25' 3"
Type
Attached
Area
902 sq. ft.
Count
3 Cars
Entry Location
Side
First Floor
9'
Primary Pitch
10 on 12
Framing Type
Stick