LogoLogo TaglineLogo Tagline
Loading...
Plan 25632GE

Affordable Gable Roofed Ranch Home Plan With Basement

Heated S.F.
2,139
Beds
3 - 5
Baths
2.5
Stories
1
Cars
2

Floor Plan

Plan 25632GE

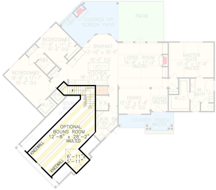
Main Level
Main Level
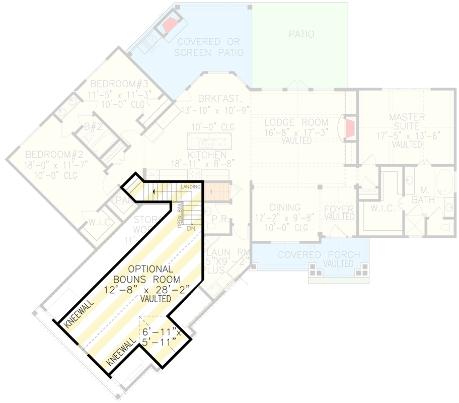
Bonus
Bonus

Plan 25632GE

M-F 9am-5pm EST |

1-203-761-8500

Main Level

Plan 25632GE: Affordable Gable Roofed Ranch Home Plan With Basement - Floor Plan - Main Level - Craftsman, Northwest, Rustic

Bonus

Plan 25632GE: Affordable Gable Roofed Ranch Home Plan With Basement - Floor Plan - Bonus - Craftsman, Northwest, Rustic

Plan Details

  • This rustic gable roofed house plan promotes open spaces and spectacular outdoor views. Vaulted ceilings in the foyer and lodge room allow for ample amounts of natural light. This was inspired by our best-selling Craftsman Mountain Home Plan with the intention of bringing it to a broader budget range and we think we've succeeded.
  • The open kitchen/breakfast area in this rustic home plan is perfect for casual dining or entertaining. From the breakfast area, walk out onto the patio which can be covered or screened.
  • The beautiful master suite includes a luxurious master bath and walk-in closet. Two additional bedrooms with a shared bath finish out this ranch floor plan.
  • The bonus room option over the garage gives you expansion space. The knee walls in the bonus room are 5' and the vaulted ceiling peaks at 11'.
  • A large two car garage comes equip with an area perfect for a workshop or storage.
  • Related Plans: Get a slab with house plan 15885GE. Eliminate the garage workshop with house plans 25631GE (basement) and 15884GE (slab). Downsize with house plan 15883GE (1,729 sq. ft. in reverse). See what started it all, and photos and links to even more versions, with house plan 15651GE (2,611 sq. ft.).

What's Included

  • Exterior elevations: Included are front, rear, left and right side views of the exterior of the house. Exterior materials, construction details and measurements are also noted.
  • Foundation Plan: Includes layout of foundation support walls, plus excavated and unexcavated areas, if applicable.
  • Detailed Floor Plans: These plans show the layout of each floor of the house, including room dimensions, window and doors sizes and keys for cross section details provided later in the plans. Engineered floor joist, ceiling joist and roof plans are not included in some plans. Local engineers or manufacturing engineers are widely available to supply the services that apply to local geographic conditions.
  • Interior Details: These drawings show the specific details and design of special interior features.
  • Roof Plan: Includes the overall layout for roof construction. If trusses are used, we recommend using a local truss manufacturer to ensure compliance with local codes and regulations.
  • Cross Section Detail: Important changes in floor, ceiling and roof heights or the relationship of one level to another are called out. Exterior details such as railing and banding may also be shown.
  • Electrical: Electrical floor plan schematics for 1st and 2nd floors.
  • Plans include wall and cornice sections, general foundation sections and details. 

What's Not Included

  • Architectural or Engineering Stamp - handled locally if required
  • Framing plans
  • Site Plan - handled locally when required
  • Mechanical Drawings (location of heating and air equipment and duct work) - your subcontractors handle this
  • Plumbing Drawings (drawings showing the actual plumbing pipe sizes and locations) - your subcontractors handle this
  • Energy calculations - handled locally when required

Starting at

Loading...
Price Match Guarantee
What's included?

FORMAT & LICENSE

Choose an option

$0

Not sure what to choose?

Pointer link icon

FOUNDATION

Choose an option

+$0

OPTIONS

Choose Additional Options

+$0

Loading...

Modify this Plan

Receive a free modification quote within 3 business days.

Loading...

Start with a Cost Report

Calculate the cost to build & furnish your home.

Loading...
Loading...

Square Footage Breakdown

Total Heated Area

2,139 sq. ft.

1st Floor

2,139 sq. ft.

Basement Unfinished

2,035 sq. ft.

Bonus

426 sq. ft.

Porch, Rear

274 sq. ft.

Deck

271 sq. ft.

Beds/Baths

Bedrooms

3, 4, or 5

Full bathrooms

2

Half bathrooms

1

Foundation Type

Standard Foundations

Walkout

Exterior Walls

Exterior Walls

2x4

Optional Type(s)

2x6

Dimensions

Width

82' 7"

Depth

70' 4"

Garage

Type

Attached

Area

602 sq. ft.

Count

2 Cars

Entry Location

Side

Ceiling Heights

Lower Level

9'

First Floor

10'

Room

Ceiling Type

Height

Bonus

Vaulted

0' 0''

Great Room

Vaulted

20' 0''

Roof Details

Primary Pitch

10 on 12

Architectural Style

Craftsman

Square Footage Breakdown

Total Heated Area

2,139 sq. ft.

1st Floor

2,139 sq. ft.

Basement Unfinished

2,035 sq. ft.

Bonus

426 sq. ft.

Porch, Rear

274 sq. ft.

Deck

271 sq. ft.

Beds/Baths

Bedrooms

3, 4, or 5

Full bathrooms

2

Half bathrooms

1

Foundation Type

Standard Foundations

Walkout

Exterior Walls

Exterior Walls

2x4

Optional Type(s)

2x6

Dimensions

Width

82' 7"

Depth

70' 4"

Garage

Type

Attached

Area

602 sq. ft.

Count

2 Cars

Entry Location

Side

Ceiling Heights

Lower Level

9'

First Floor

10'

Room

Ceiling Type

Height

Bonus

Vaulted

0' 0''

Great Room

Vaulted

20' 0''

Roof Details

Primary Pitch

10 on 12

Architectural Style

* Please note that all sale prices and promotions featured on our website are subject to change without prior notice. While we strive to provide accurate and up-to-date information, occasional discrepancies may occur due to factors beyond our control. We encourage you to verify all details, including pricing and availability, before making any purchase. Exclusions or restrictions may apply to specific promotions. We reserve the right to modify or cancel any sale at our discretion. Thank you for your understanding and happy shopping!Let's go back to the top.