Exclusive


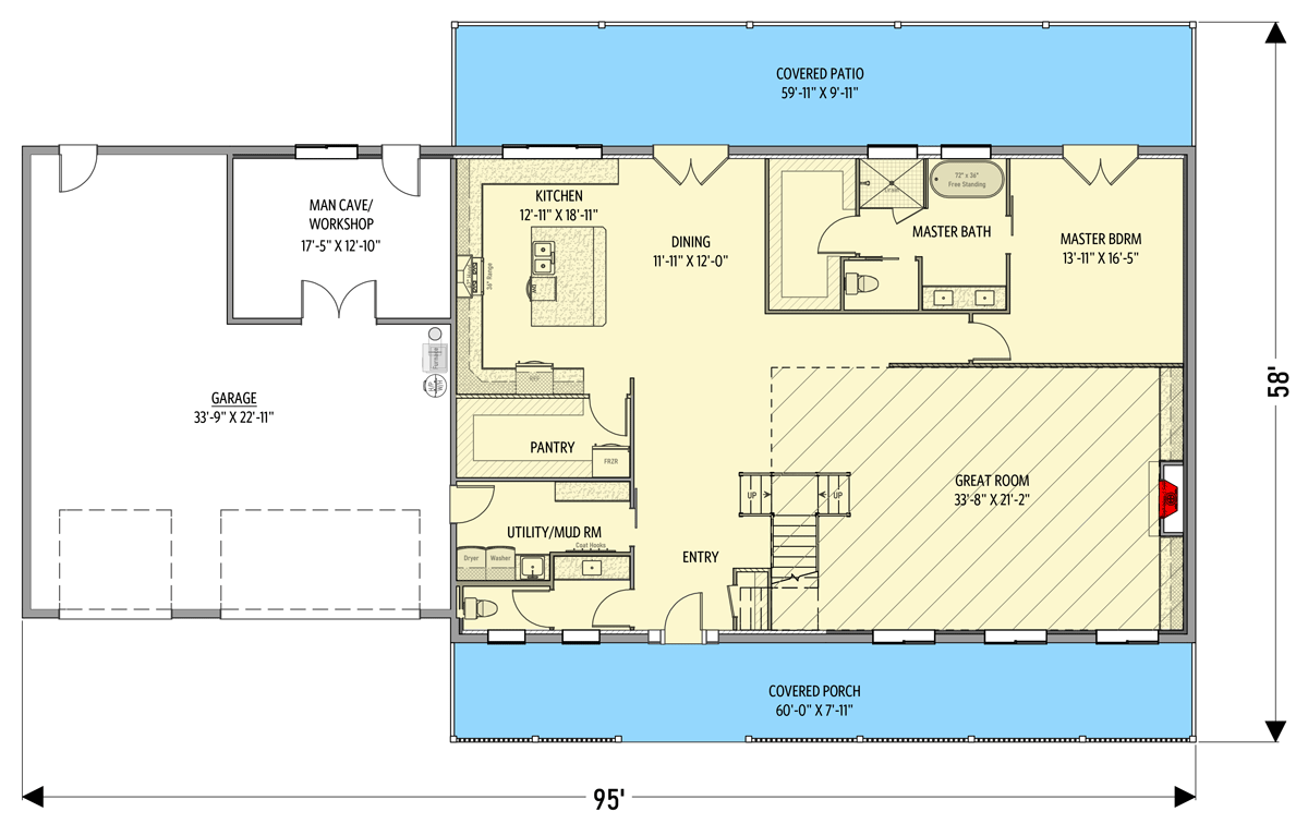
Total Heated Area
4,272 sq. ft.
1st Floor
2,658 sq. ft.
2nd Floor
1,614 sq. ft.
Porch, Combined
1,079 sq. ft.
Bedrooms
5
Full bathrooms
3
Half bathrooms
1
Standard Foundations
Slab
Exterior Walls
2x6
Width
94' 6"
Depth
58' 0"
Max Ridge Height
26' 6"
Type
Attached
Area
1053 sq. ft.
Count
3 Cars
Entry Location
Front
First Floor
9'
Second Floor
9'
Primary Pitch
4 on 12
Secondary Pitch
3 on 12
Framing Type
Stick And Truss
Total Heated Area
4,272 sq. ft.
1st Floor
2,658 sq. ft.
2nd Floor
1,614 sq. ft.
Porch, Combined
1,079 sq. ft.
Bedrooms
5
Full bathrooms
3
Half bathrooms
1
Standard Foundations
Slab
Exterior Walls
2x6
Width
94' 6"
Depth
58' 0"
Max Ridge Height
26' 6"
Type
Attached
Area
1053 sq. ft.
Count
3 Cars
Entry Location
Front
First Floor
9'
Second Floor
9'
Primary Pitch
4 on 12
Secondary Pitch
3 on 12
Framing Type
Stick And Truss