

Total Heated Area
2,631 sq. ft.
1st Floor
2,631 sq. ft.
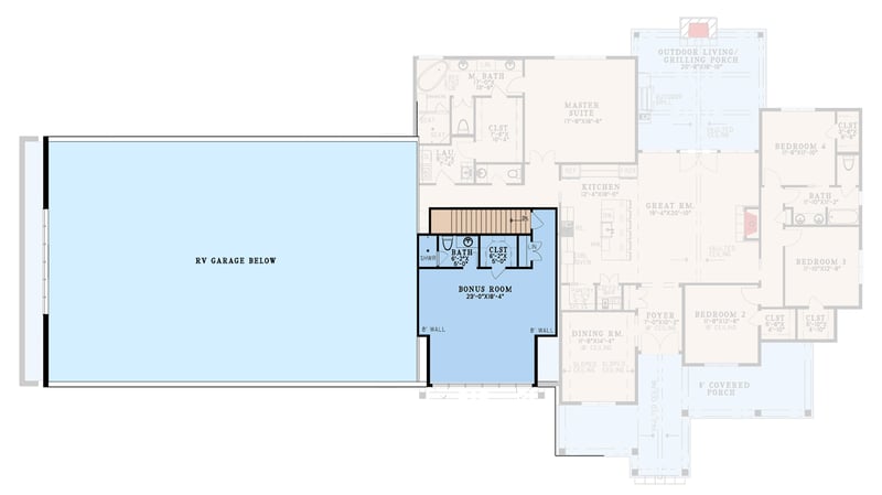
Bonus
562 sq. ft.
Porch, Front
820 sq. ft.
Bedrooms
4 or 5
Full bathrooms
3 or 4
Half bathrooms
1
Standard Foundations
Crawl, Slab
Exterior Walls
2x6
Width
134' 10"
Depth
73' 2"
Max Ridge Height
23' 4"
Type
Standard, Attached, RV Garage
Area
3084 sq. ft.
Count
5 Cars
Entry Location
Front
First Floor
9'
Second Floor
8'
Primary Pitch
10 on 12
Secondary Pitch
4 on 12
Framing Type
Stick
Total Heated Area
2,631 sq. ft.
1st Floor
2,631 sq. ft.
Bonus
562 sq. ft.
Porch, Front
820 sq. ft.
Bedrooms
4 or 5
Full bathrooms
3 or 4
Half bathrooms
1
Standard Foundations
Crawl, Slab
Exterior Walls
2x6
Width
134' 10"
Depth
73' 2"
Max Ridge Height
23' 4"
Type
Standard, Attached, RV Garage
Area
3084 sq. ft.
Count
5 Cars
Entry Location
Front
First Floor
9'
Second Floor
8'
Primary Pitch
10 on 12
Secondary Pitch
4 on 12
Framing Type
Stick