

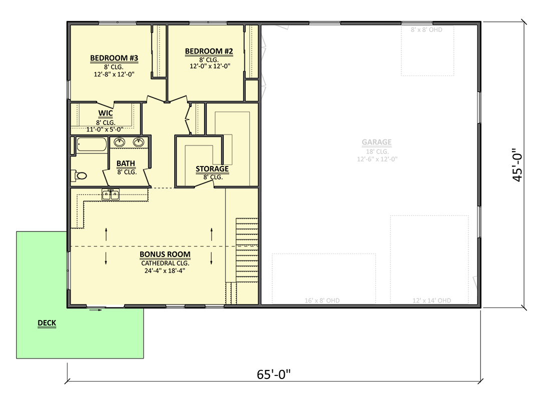
Total Heated Area
2,639 sq. ft.
1st Floor
1,372 sq. ft.
2nd Floor
1,267 sq. ft.
Porch, Front
256 sq. ft.
Deck
256 sq. ft.
Bedrooms
3
Full bathrooms
2
Half bathrooms
1
Standard Foundations
Slab, Stem Wall
Exterior Walls
2x6
Width
73' 0"
Depth
53' 0"
Max Ridge Height
30' 8"
Type
Attached, RV Garage, Standard
Area
1552 sq. ft.
Count
4 Cars
Entry Location
Front
First Floor
9'
Second Floor
8'
Primary Pitch
6 on 12
Secondary Pitch
4 on 12
Framing Type
Stick And Truss
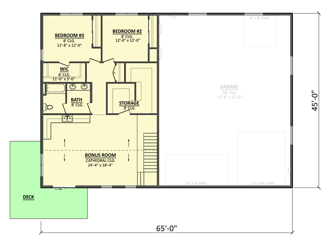
Total Heated Area
2,639 sq. ft.
1st Floor
1,372 sq. ft.
2nd Floor
1,267 sq. ft.
Porch, Front
256 sq. ft.
Deck
256 sq. ft.
Bedrooms
3
Full bathrooms
2
Half bathrooms
1
Standard Foundations
Slab, Stem Wall
Exterior Walls
2x6
Width
73' 0"
Depth
53' 0"
Max Ridge Height
30' 8"
Type
Attached, RV Garage, Standard
Area
1552 sq. ft.
Count
4 Cars
Entry Location
Front
First Floor
9'
Second Floor
8'
Primary Pitch
6 on 12
Secondary Pitch
4 on 12
Framing Type
Stick And Truss