LogoLogo TaglineLogo Tagline
Loading...
Plan 66209WE

Caribbean Charmer

Heated S.F.
4,109
Beds
3
Baths
4.5
Stories
2
Cars
3

Floor Plan

Plan 66209WE

Basement
Basement
Main Level
Main Level
2nd Floor
2nd Floor

Plan 66209WE

M-F 9am-5pm EST |

1-203-761-8500

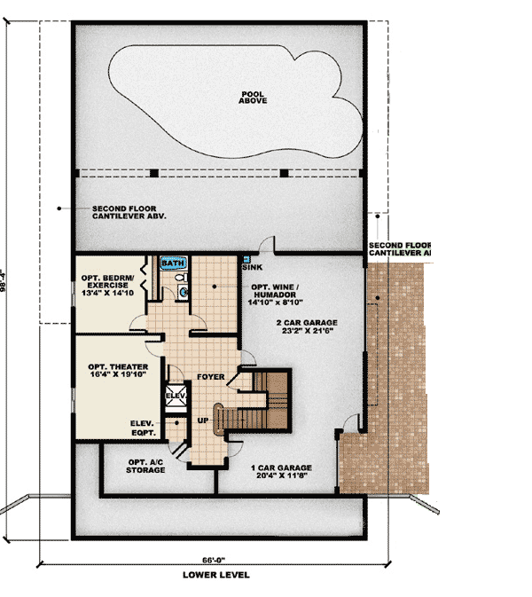
Basement

Plan 66209WE: Caribbean Charmer - Floor Plan - Basement - Florida-Style, Southern

Main Level

Plan 66209WE: Caribbean Charmer - Floor Plan - Main Level - Florida-Style, Southern

2nd Floor

Plan 66209WE: Caribbean Charmer - Floor Plan - 2nd Floor - Florida-Style, Southern

Plan Details

  • A steep metal roof and shutters speak softly of an early Caribbean style which adds character to this island home.
  • A magnificently open plan the foyer features 22' ceilings leading into a barrel ceiling. Opening up to the great room with a corner fireplace, and it brings in spectacular views through the walls of glass. If you so desire, build the optional downstairs out and enjoy a wine room, exercise room & theater room!

What's Included

Elevations - Drawn at 1/8″ to 1/4″ = 1′-0″ Scale, and Includes:
  • Material Labels
  • Floor-to-Floor Heights
  • Roof Slope Indicators
Floor Plans - Drawn at 1/8″ to 1/4″ = 1′-0″ Scale, and Includes:
  • Door and Window Sizes
  • Completely Dimensioned Floor Plan
  • Room Labels and Interior Room Sizes
Electrical Layouts 
  • Building Section Markers
  • All Electrical Outlets, Fixtures, and Switching
Foundation Plan - Drawn at 1/8″ to 1/4″ = 1′-0″ Scale, and Includes:
  • Floor and Deck Joist Size and Spacing
  • Electrical Locations (if applicable)

Roof Design Plan - Drawn at 1/8″ to 1/4″ = 1′-0″scale, and Includes:
  • All Beam and Header Heights and Locations
  • All Hips, Gables, Ridges, and Valleys
  • Building Section Markers
Building Sections - Drawn at 1/8″ to 1/4″ = 1′-0″ Scale, and Includes:
  • Floor Joist Size and Spacing
  • Floor-to-Floor Heights
  • Non-Typical Plate Heights Indicated
Typical Wall Sections - Drawn at 1/8″ to 1/2″ = 1′-0″ Scale, and Includes:
  • All Labels Indicating Wall Construction
  • Foundation Wall Thickness and Reinforcing
  • Insulation Type and Thickness
Miscellaneous Notes and Details
  • Miscellaneous General Notes
  • Stairway details (if applicable)
We do provide a slab plan, however, the structural foundation plan is to be provided by the structural engineer selected by your builder or yourself. This is done because our slab plan cannot anticipate the variations in soil, footings and other conditions per your specific site. We provide the design of the roof as well, however, the truss layouts need to be provided by a truss engineer or your lumber company. Your builder can provide these contacts for you.  Please keep in mind that these are additional expenses outside of the cost of the original plan that you purchase from us.

What's Not Included

  • Architectural or Engineering Stamp - handled locally if required
  • Site Plan - handled locally when required
  • Mechanical Drawings (location of heating and air equipment and duct work) - your subcontractors handle this
  • Plumbing Drawings (drawings showing the actual plumbing pipe sizes and locations) - your subcontractors handle this
  • Energy calculations - handled locally when required

Starting at

Loading...
Price Match Guarantee
What's included?

FORMAT & LICENSE

Choose an option

$0

Not sure what to choose?

Pointer link icon

FOUNDATION

Choose an option

+$0

OPTIONS

Choose Additional Options

+$0

Loading...

Modify this Plan

Receive a free modification quote within 3 business days.

Loading...

Start with a Cost Report

Calculate the cost to build & furnish your home.

Loading...
Loading...

Square Footage Breakdown

Total Heated Area

4,109 sq. ft.

Lower Level

310 sq. ft.

1st Floor

2,962 sq. ft.

2nd Floor

837 sq. ft.

Entry

558 sq. ft.

Lanai

566 sq. ft.

Beds/Baths

Bedrooms

3

Full bathrooms

4

Half bathrooms

1

Foundation Type

Standard Foundations

Basement

Exterior Walls

Exterior Walls

Block / CMU (main floor)

Optional Type(s)

2x6

Dimensions

Width

66' 0"

Depth

98' 4"

Max Ridge Height

39' 2"

Garage

Type

Drive Under

Area

2056 sq. ft.

Count

3 Cars

Entry Location

Side

Roof Details

Primary Pitch

8 on 12

Framing Type

Truss

Architectural Style

Florida-Style

Plan Collections

Square Footage Breakdown

Total Heated Area

4,109 sq. ft.

Lower Level

310 sq. ft.

1st Floor

2,962 sq. ft.

2nd Floor

837 sq. ft.

Entry

558 sq. ft.

Lanai

566 sq. ft.

Beds/Baths

Bedrooms

3

Full bathrooms

4

Half bathrooms

1

Foundation Type

Standard Foundations

Basement

Exterior Walls

Exterior Walls

Block / CMU (main floor)

Optional Type(s)

2x6

Dimensions

Width

66' 0"

Depth

98' 4"

Max Ridge Height

39' 2"

Garage

Type

Drive Under

Area

2056 sq. ft.

Count

3 Cars

Entry Location

Side

Roof Details

Primary Pitch

8 on 12

Framing Type

Truss

Architectural Style

Plan Collections

* Please note that all sale prices and promotions featured on our website are subject to change without prior notice. While we strive to provide accurate and up-to-date information, occasional discrepancies may occur due to factors beyond our control. We encourage you to verify all details, including pricing and availability, before making any purchase. Exclusions or restrictions may apply to specific promotions. We reserve the right to modify or cancel any sale at our discretion. Thank you for your understanding and happy shopping!Let's go back to the top.