Exclusive




Total Heated Area
2,829 sq. ft.
1st Floor
2,134 sq. ft.
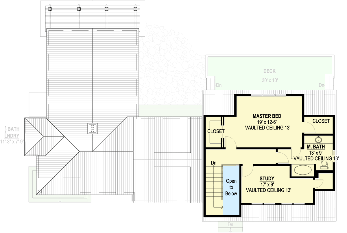
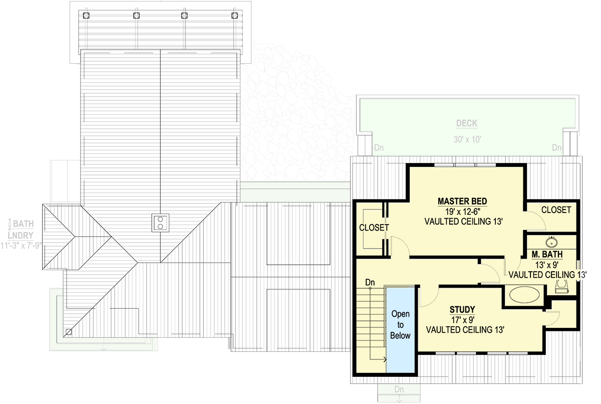
2nd Floor
695 sq. ft.
Basement Unfinished
2,120 sq. ft.
Porch, Combined
620 sq. ft.
Bedrooms
3 or 4
Full bathrooms
2
Half bathrooms
1
Standard Foundations
Basement
Exterior Walls
2x6
Width
75' 3"
Depth
50' 4"
Max Ridge Height
24' 0"
Type
Detached
Area
800 sq. ft.
Count
2 Cars
Entry Location
Side
Lower Level
8'
First Floor
9'
Second Floor
8'
Primary Pitch
12 on 10
Secondary Pitch
12 on 10
Framing Type
Stick
Total Heated Area
2,829 sq. ft.
1st Floor
2,134 sq. ft.
2nd Floor
695 sq. ft.
Basement Unfinished
2,120 sq. ft.
Porch, Combined
620 sq. ft.
Bedrooms
3 or 4
Full bathrooms
2
Half bathrooms
1
Standard Foundations
Basement
Exterior Walls
2x6
Width
75' 3"
Depth
50' 4"
Max Ridge Height
24' 0"
Type
Detached
Area
800 sq. ft.
Count
2 Cars
Entry Location
Side
Lower Level
8'
First Floor
9'
Second Floor
8'
Primary Pitch
12 on 10
Secondary Pitch
12 on 10
Framing Type
Stick