


Total Heated Area
2,603 sq. ft.
1st Floor
1,295 sq. ft.
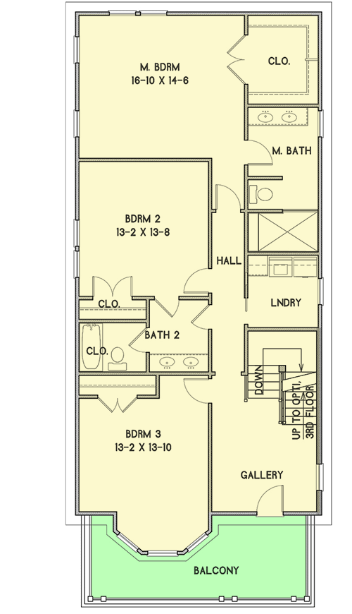
2nd Floor
1,308 sq. ft.
3rd Floor
253 sq. ft.
Porch, Front
180 sq. ft.
Porch, Combined
359 sq. ft.
Balcony / Veranda
180 sq. ft.
Bedrooms
3
Full bathrooms
2
Half bathrooms
1
Standard Foundations
Crawl
Exterior Walls
2x6
Width
25' 0"
Depth
55' 0"
Max Ridge Height
35' 7"
First Floor
10'
Second Floor
8'
Primary Pitch
10 on 12
Secondary Pitch
4 on 12
Framing Type
Stick
Total Heated Area
2,603 sq. ft.
1st Floor
1,295 sq. ft.
2nd Floor
1,308 sq. ft.
3rd Floor
253 sq. ft.
Porch, Front
180 sq. ft.
Porch, Combined
359 sq. ft.
Balcony / Veranda
180 sq. ft.
Bedrooms
3
Full bathrooms
2
Half bathrooms
1
Standard Foundations
Crawl
Exterior Walls
2x6
Width
25' 0"
Depth
55' 0"
Max Ridge Height
35' 7"
First Floor
10'
Second Floor
8'
Primary Pitch
10 on 12
Secondary Pitch
4 on 12
Framing Type
Stick