


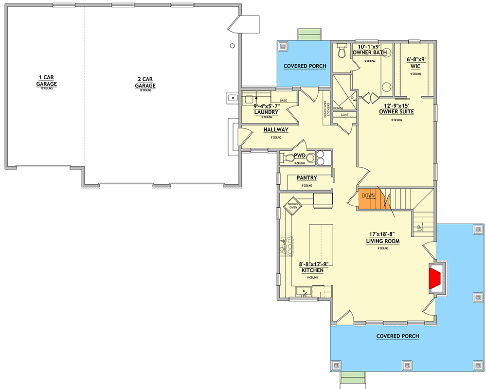
Total Heated Area
1,961 sq. ft.
1st Floor
1,267 sq. ft.
2nd Floor
694 sq. ft.
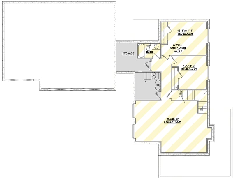
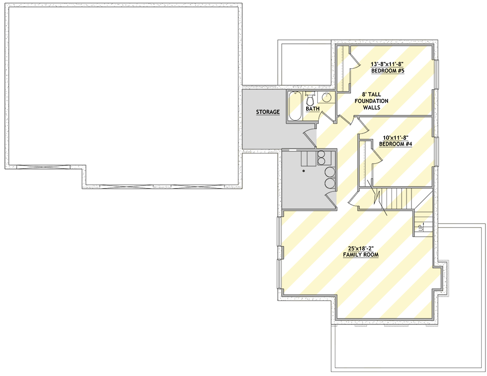
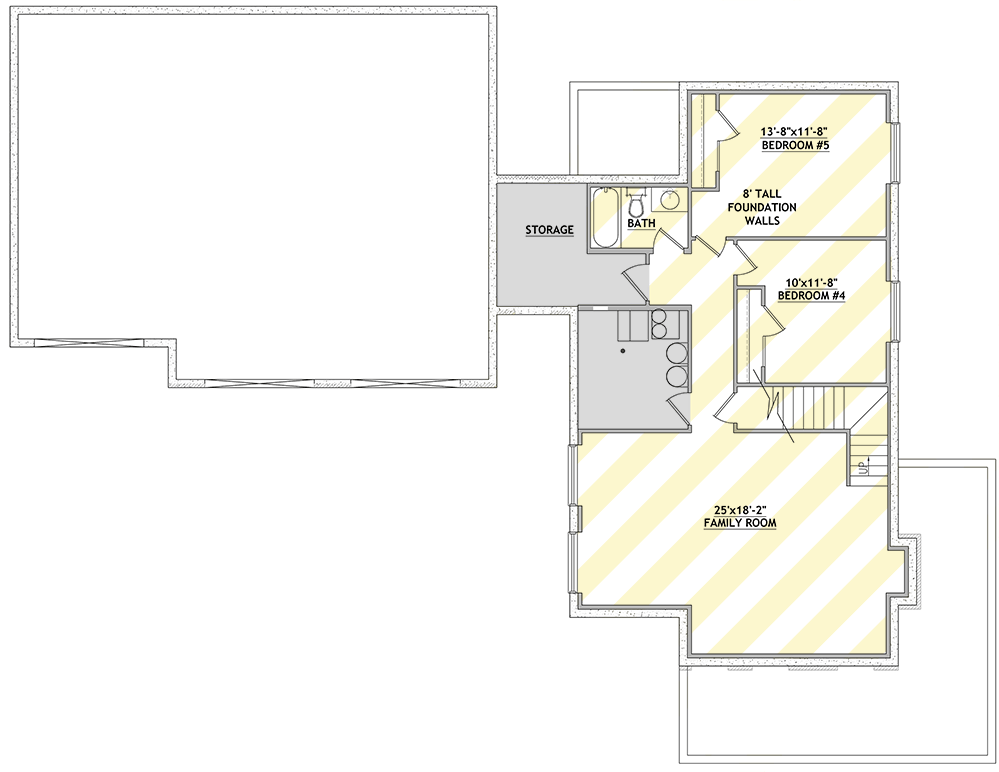
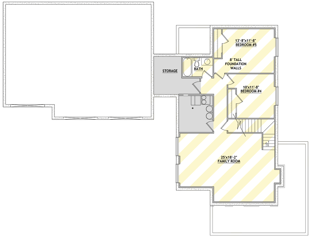
Optional Lower Level
1,167 sq. ft.
Bedrooms
3
Full bathrooms
2
Half bathrooms
1
Standard Foundations
Basement
Exterior Walls
2x6
Width
81' 0"
Depth
62' 3"
Max Ridge Height
28' 4"
Type
Standard
Area
1137 sq. ft.
Count
3 Cars
Entry Location
Front
Lower Level
8'
First Floor
9'
Second Floor
9'
Primary Pitch
12 on 12
Secondary Pitch
8 on 12
Framing Type
Truss
Total Heated Area
1,961 sq. ft.
1st Floor
1,267 sq. ft.
2nd Floor
694 sq. ft.
Optional Lower Level
1,167 sq. ft.
Bedrooms
3
Full bathrooms
2
Half bathrooms
1
Standard Foundations
Basement
Exterior Walls
2x6
Width
81' 0"
Depth
62' 3"
Max Ridge Height
28' 4"
Type
Standard
Area
1137 sq. ft.
Count
3 Cars
Entry Location
Front
Lower Level
8'
First Floor
9'
Second Floor
9'
Primary Pitch
12 on 12
Secondary Pitch
8 on 12
Framing Type
Truss