

Total Heated Area
2,373 sq. ft.
1st Floor
2,373 sq. ft.
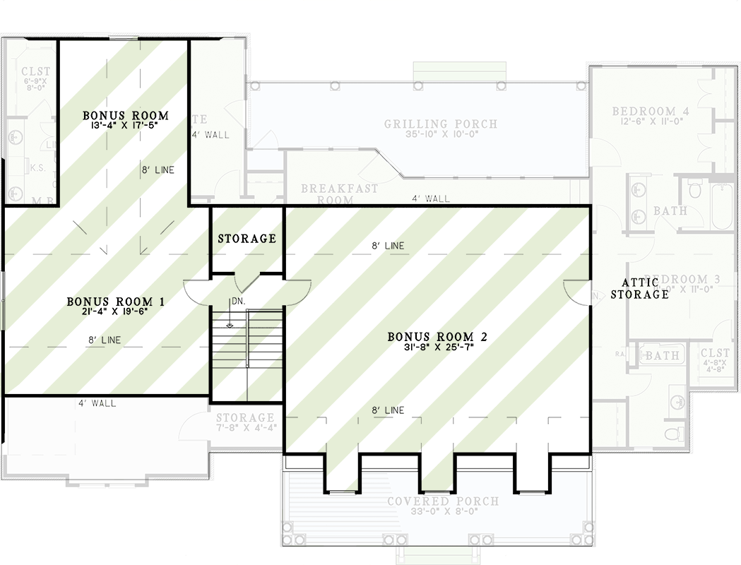
Bonus
1,583 sq. ft.
Porch, Combined
580 sq. ft.
Bedrooms
4
Full bathrooms
3
Standard Foundations
Crawl, Slab
Exterior Walls
2x4
Optional Type(s)
2x6
Width
76' 10"
Depth
53' 4"
Type
Standard, Attached
Area
523 sq. ft.
Count
2 Cars
Entry Location
Side
First Floor
9'
Second Floor
8'
Primary Pitch
10 on 12
Framing Type
Stick
Total Heated Area
2,373 sq. ft.
1st Floor
2,373 sq. ft.
Bonus
1,583 sq. ft.
Porch, Combined
580 sq. ft.
Bedrooms
4
Full bathrooms
3
Standard Foundations
Crawl, Slab
Exterior Walls
2x4
Optional Type(s)
2x6
Width
76' 10"
Depth
53' 4"
Type
Standard, Attached
Area
523 sq. ft.
Count
2 Cars
Entry Location
Side
First Floor
9'
Second Floor
8'
Primary Pitch
10 on 12
Framing Type
Stick