LogoLogo TaglineLogo Tagline
Loading...
Plan 500043VV

Exclusive

Classic and Stylish Farmhouse Plan with Large Rear Porch - 3439 Sq Ft

Heated S.F.
3,439
Beds
4
Baths
3.5
Stories
2
Cars
2
Client Photos

Floor Plan

Plan 500043VV

Main Level
Main Level
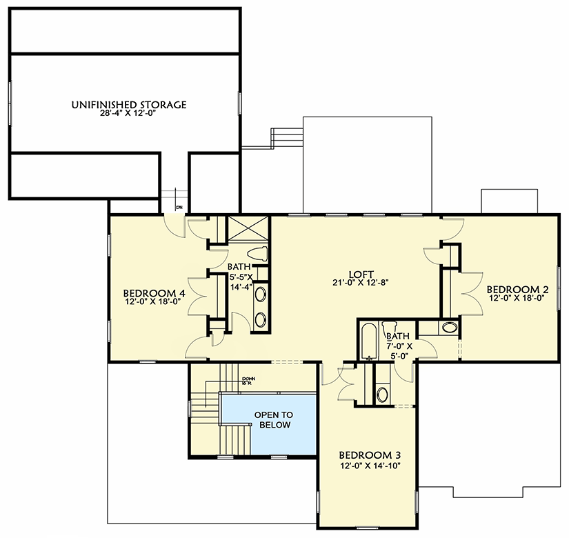
2nd Floor
2nd Floor

Plan 500043VV

M-F 9am-5pm EST |

1-203-761-8500

Main Level

Plan 500043VV: Classic and Stylish Farmhouse Plan with Large Rear Porch - 3439 Sq Ft - Floor Plan - Main Level - Cottage, Country, Farmhouse, Modern Farmhouse, New American, Traditional

2nd Floor

Plan 500043VV: Classic and Stylish Farmhouse Plan with Large Rear Porch - 3439 Sq Ft - Floor Plan - 2nd Floor - Cottage, Country, Farmhouse, Modern Farmhouse, New American, Traditional

Plan Details

  • A sunroom and large, open floor plan enhance this classic Farmhouse style house plan that is exclusive to Architectural Designs.
  • With its great big country kitchen, cooking is a pleasure, with a trendy sliding barn door at the walk-in pantry. Head out to the big screened porch and dine outside.
  • Two interior columns are all that separate the family room from the kitchen and dining area.
  • You can use the study for your home business as it has a separate outside door for clients.
  • The spacious first floor master suite offers twin walk-in closets and a large private bathroom with two sinks and a stand alone soaking tub.
  • Every bedroom on the second floor is super-sized and there's a loft for the kids to hang out in plus unfinished storage over the garage.
  • Related Plan: Get a 3-car garage with house plan 500085VV (3,474 sq. ft.).
Build Gallery
See and hear from existing customers with real photos, videos, and reviews.
build gallery item - Exclusive House Plan 500043VV comes to life in Tennessee

Exclusive House Plan 500043VV comes to life in Tennessee

21

Photos

What's Included

  • Cover sheet with notes
  • Foundation
  • Floor plans 
  • Elevations
  • Sections
  • Framing plans
  • Electrical plans 

What's Not Included

  • Architectural or Engineering Stamp - handled locally if required
  • Site Plan - handled locally when required
  • Mechanical Drawings (location of heating and air equipment and duct work) - your subcontractors handle this
  • Plumbing Drawings (drawings showing the actual plumbing pipe sizes and locations) - your subcontractors handle this
  • Energy calculations - handled locally when required

Starting at

Loading...
Price Match Guarantee
What's included?

FORMAT & LICENSE

Choose an option

$0

Not sure what to choose?

Pointer link icon

FOUNDATION

Choose an option

+$0

OPTIONS

Choose Additional Options

+$0

Loading...

Modify this Plan

Receive a free modification quote within 3 business days.

Loading...

Start with a Cost Report

Calculate the cost to build & furnish your home.

Loading...
Loading...

Square Footage Breakdown

Total Heated Area

3,439 sq. ft.

1st Floor

2,088 sq. ft.

2nd Floor

1,351 sq. ft.

Porch, Front

208 sq. ft.

Screened Porch

192 sq. ft.

Deck

64 sq. ft.

Storage

397 sq. ft.

Beds/Baths

Bedrooms

4

Full bathrooms

3

Half bathrooms

1

Foundation Type

Standard Foundations

Crawl

Exterior Walls

Exterior Walls

2x4

Optional Type(s)

2x6

Dimensions

Width

68' 8"

Depth

65' 0"

Max Ridge Height

28' 4"

Garage

Type

Attached

Area

563 sq. ft.

Count

2 Cars

Entry Location

Side

Ceiling Heights

First Floor

9'

Second Floor

8'

Garage

8' 0''

Room

Ceiling Type

Height

Foyer

Second Story

0' 0''

Roof Details

Primary Pitch

12 on 12

Secondary Pitch

6 on 12

Framing Type

Stick And Truss

Square Footage Breakdown

Total Heated Area

3,439 sq. ft.

1st Floor

2,088 sq. ft.

2nd Floor

1,351 sq. ft.

Porch, Front

208 sq. ft.

Screened Porch

192 sq. ft.

Deck

64 sq. ft.

Storage

397 sq. ft.

Beds/Baths

Bedrooms

4

Full bathrooms

3

Half bathrooms

1

Foundation Type

Standard Foundations

Crawl

Exterior Walls

Exterior Walls

2x4

Optional Type(s)

2x6

Dimensions

Width

68' 8"

Depth

65' 0"

Max Ridge Height

28' 4"

Garage

Type

Attached

Area

563 sq. ft.

Count

2 Cars

Entry Location

Side

Ceiling Heights

First Floor

9'

Second Floor

8'

Garage

8' 0''

Room

Ceiling Type

Height

Foyer

Second Story

0' 0''

Roof Details

Primary Pitch

12 on 12

Secondary Pitch

6 on 12

Framing Type

Stick And Truss

* Please note that all sale prices and promotions featured on our website are subject to change without prior notice. While we strive to provide accurate and up-to-date information, occasional discrepancies may occur due to factors beyond our control. We encourage you to verify all details, including pricing and availability, before making any purchase. Exclusions or restrictions may apply to specific promotions. We reserve the right to modify or cancel any sale at our discretion. Thank you for your understanding and happy shopping!Let's go back to the top.