
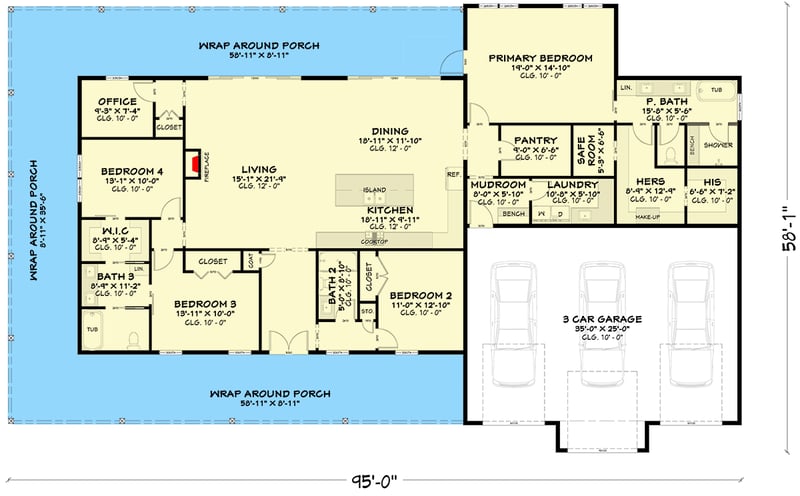
Total Heated Area
2,748 sq. ft.
1st Floor
2,748 sq. ft.
Porch, Combined
1,375 sq. ft.
Bedrooms
4
Full bathrooms
3
Standard Foundations
Monolithic Slab
Exterior Walls
2x6
Width
95' 0"
Depth
58' 1"
Max Ridge Height
20' 8"
Type
Standard
Area
875 sq. ft.
Count
3 Cars
Entry Location
Front
Primary Pitch
2 on 12
Framing Type
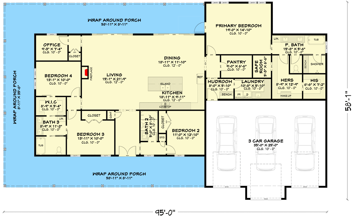
Total Heated Area
2,748 sq. ft.
1st Floor
2,748 sq. ft.
Porch, Combined
1,375 sq. ft.
Bedrooms
4
Full bathrooms
3
Standard Foundations
Monolithic Slab
Exterior Walls
2x6
Width
95' 0"
Depth
58' 1"
Max Ridge Height
20' 8"
Type
Standard
Area
875 sq. ft.
Count
3 Cars
Entry Location
Front
Primary Pitch
2 on 12
Framing Type