

Total Heated Area
911 sq. ft.
1st Floor
239 sq. ft.
2nd Floor
732 sq. ft.
Porch, Combined
543 sq. ft.
Bedrooms
0
Standard Foundations
Slab
Exterior Walls
2x6
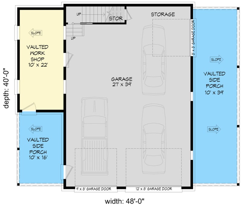
Width
48' 0"
Depth
40' 0"
Max Ridge Height
24' 7"
Type
Detached
Area
1108 sq. ft.
Count
2 Cars
Entry Location
Front
First Floor
9'
Second Floor
9'
Primary Pitch
12 on 12
Secondary Pitch
4 on 12
Framing Type
Truss
Total Heated Area
911 sq. ft.
1st Floor
239 sq. ft.
2nd Floor
732 sq. ft.
Porch, Combined
543 sq. ft.
Bedrooms
0
Standard Foundations
Slab
Exterior Walls
2x6
Width
48' 0"
Depth
40' 0"
Max Ridge Height
24' 7"
Type
Detached
Area
1108 sq. ft.
Count
2 Cars
Entry Location
Front
First Floor
9'
Second Floor
9'
Primary Pitch
12 on 12
Secondary Pitch
4 on 12
Framing Type
Truss