







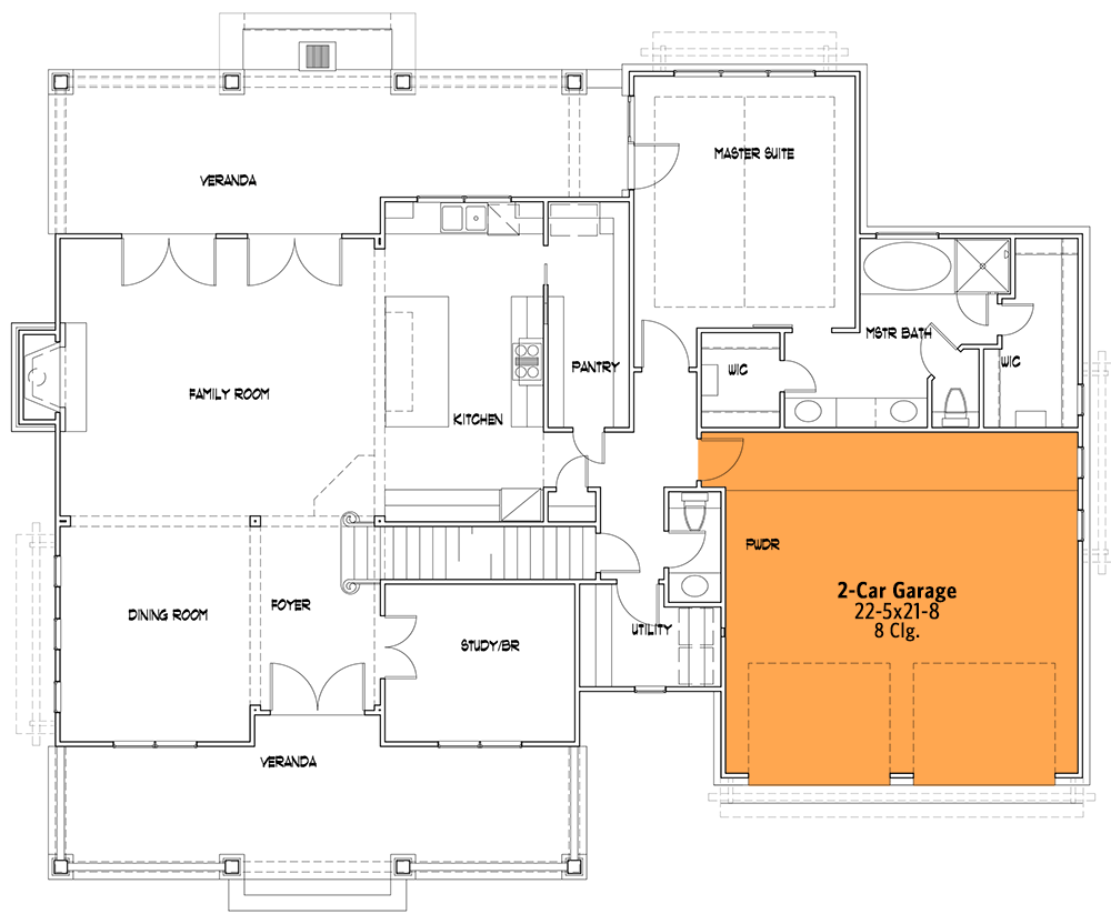
Total Heated Area
2,526 sq. ft.
1st Floor
1,766 sq. ft.
2nd Floor
760 sq. ft.
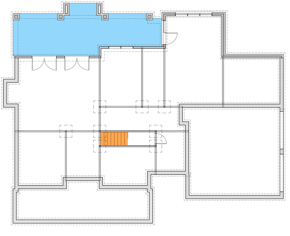
Bonus
374 sq. ft.
Porch, Rear
304 sq. ft.
Balcony / Veranda
283 sq. ft.
Bedrooms
3, 4, or 5
Full bathrooms
2, 3, or 4
Half bathrooms
1
Standard Foundations
Slab
Exterior Walls
2x4
Optional Type(s)
2x6
Width
68' 7"
Depth
51' 7"
Max Ridge Height
33' 6"
Type
Attached
Area
507 sq. ft.
Count
2 or 3 Cars
Entry Location
Side, Front
First Floor
10'
Second Floor
9'
Primary Pitch
12 on 12
Secondary Pitch
2 on 12
Framing Type
Stick
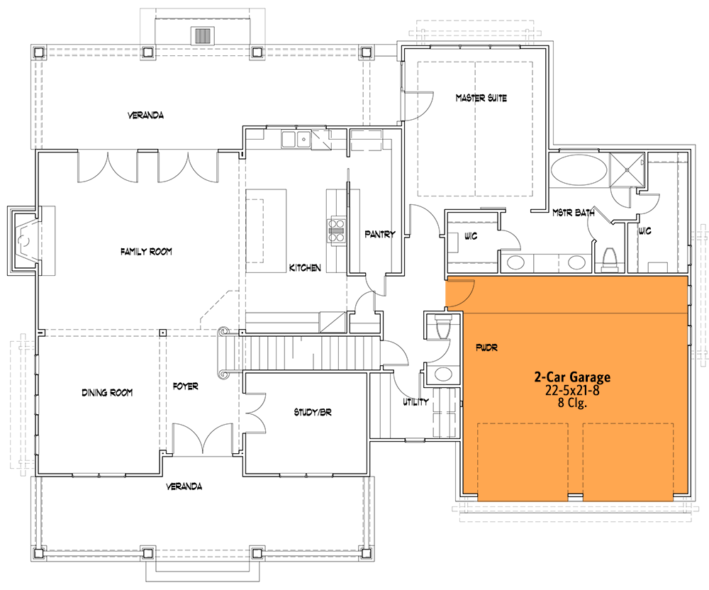
Total Heated Area
2,526 sq. ft.
1st Floor
1,766 sq. ft.
2nd Floor
760 sq. ft.
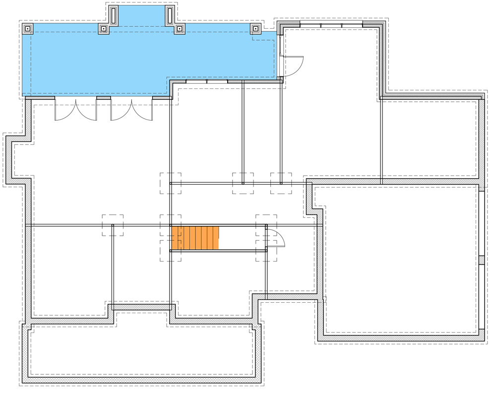
Bonus
374 sq. ft.
Porch, Rear
304 sq. ft.
Balcony / Veranda
283 sq. ft.
Bedrooms
3, 4, or 5
Full bathrooms
2, 3, or 4
Half bathrooms
1
Standard Foundations
Slab
Exterior Walls
2x4
Optional Type(s)
2x6
Width
68' 7"
Depth
51' 7"
Max Ridge Height
33' 6"
Type
Attached
Area
507 sq. ft.
Count
2 or 3 Cars
Entry Location
Side, Front
First Floor
10'
Second Floor
9'
Primary Pitch
12 on 12
Secondary Pitch
2 on 12
Framing Type
Stick