

Total Heated Area
4,228 sq. ft.
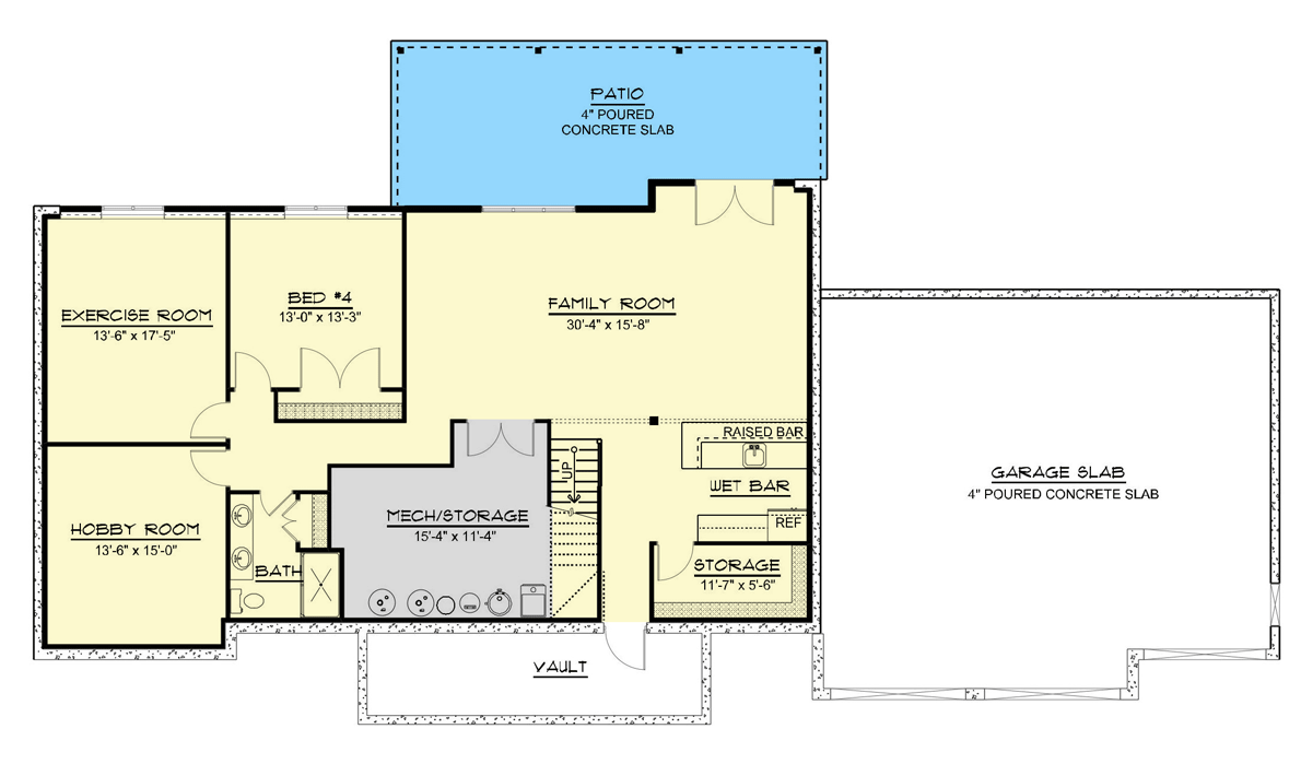
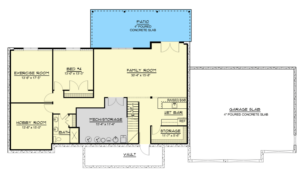
Lower Level
2,150 sq. ft.
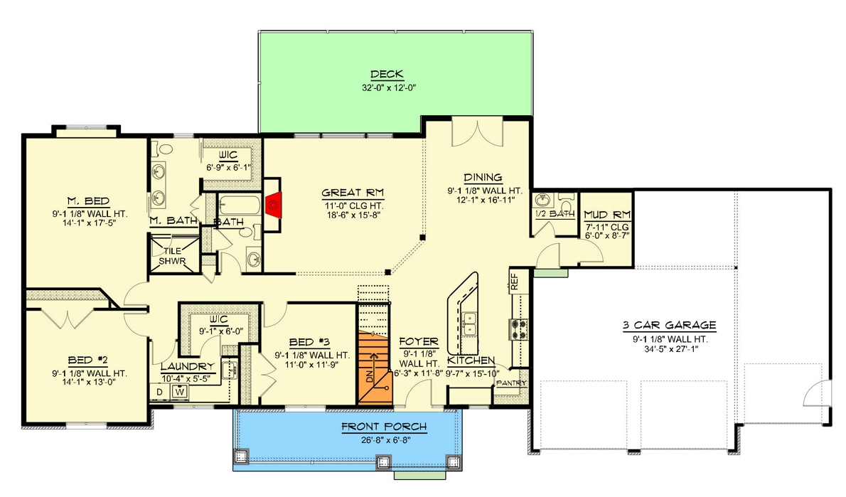
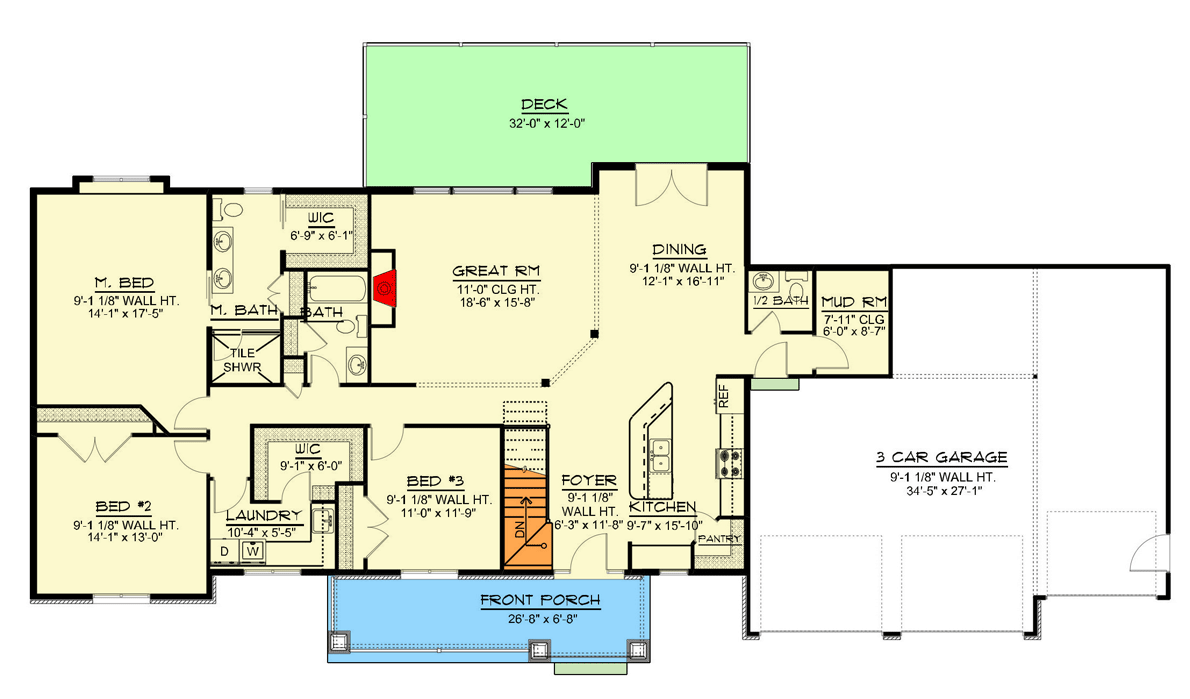
1st Floor
2,078 sq. ft.
Porch, Front
192 sq. ft.
Deck
358 sq. ft.
Covered Patio
387 sq. ft.
Bedrooms
4
Full bathrooms
2
Half bathrooms
1
Standard Foundations
Walkout
Exterior Walls
2x6
Width
94' 2"
Depth
49' 0"
Max Ridge Height
19' 1"
Type
Attached
Area
923 sq. ft.
Count
3 Cars
Entry Location
Front
Lower Level
9'
First Floor
9'
Primary Pitch
8 on 12
Secondary Pitch
7 on 12
Framing Type
Truss
Total Heated Area
4,228 sq. ft.
Lower Level
2,150 sq. ft.
1st Floor
2,078 sq. ft.
Porch, Front
192 sq. ft.
Deck
358 sq. ft.
Covered Patio
387 sq. ft.
Bedrooms
4
Full bathrooms
2
Half bathrooms
1
Standard Foundations
Walkout
Exterior Walls
2x6
Width
94' 2"
Depth
49' 0"
Max Ridge Height
19' 1"
Type
Attached
Area
923 sq. ft.
Count
3 Cars
Entry Location
Front
Lower Level
9'
First Floor
9'
Primary Pitch
8 on 12
Secondary Pitch
7 on 12
Framing Type
Truss