LogoLogo TaglineLogo Tagline
Loading...
Plan 35475GH

Custom Northwest Home with Airplane Hanger

Heated S.F.
4,100
Beds
3
Baths
4
Stories
1-2
Cars
3

Floor Plan

Plan 35475GH

Basement
Basement
Main Level
Main Level
2nd Floor
2nd Floor

Plan 35475GH

M-F 9am-5pm EST |

1-203-761-8500

Basement

Plan 35475GH: Custom Northwest Home with Airplane Hanger - Floor Plan - Basement - Mountain, Northwest

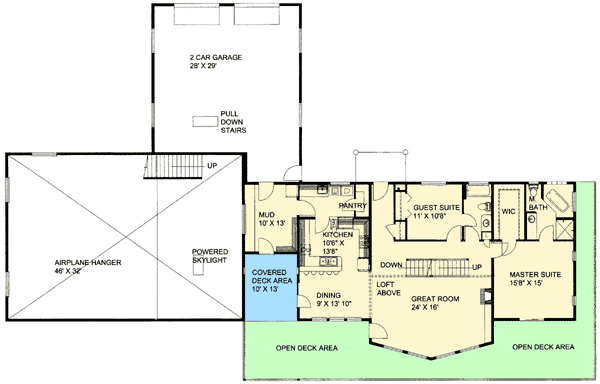
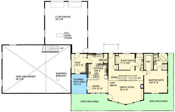
Main Level

Plan 35475GH: Custom Northwest Home with Airplane Hanger - Floor Plan - Main Level - Mountain, Northwest

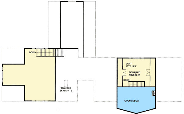
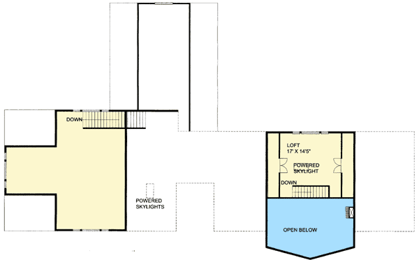
2nd Floor

Plan 35475GH: Custom Northwest Home with Airplane Hanger - Floor Plan - 2nd Floor - Mountain, Northwest

Plan Details

  • This amazing Northwest home plan has a very unusual feature - your very own airplane hanger!
  • The main floor has a spacious interior with a huge two-story great room that enhances views of the great outdoors.
  • Step out onto the huge wrap-around deck when you want a breath of fresh air.
  • A separate mud room gives you plenty of room to move around and stow your gear.
  • You have seating for five at the peninsula eating bar in the kitchen that faces the dining room.
  • Two bedrooms on this floor include the large ' suite with its big corner soaking tub.
  • Upstairs, the loft area has a powered skylight to give you ventilation as well as sunshine.
  • On the lower level, a third bedroom and two more bathrooms join the library and huge family room with fireplace.
  • The large wet bar has seating for five and is open to the spacious sitting area.

What's Included

  • Exterior Elevations:  The exterior elevations provide exterior views of the house and call out the exterior finish materials, such as siding, stucco, brick, stone, etc. This page also shows roof pitches and materials, and decorative elements, such as columns and window shutters. Sometimes window and door sizes are also shown here.
  • Floor Plans:  The floor plan shows how each room is laid out on each floor of the house. In most cases, the floor plan will include wall sizes, room dimensions, notes about ceiling design, window and door locations and sizes, and other structural layout notes and details.
  • Foundation Plan: This page provides a detailed foundation drawing, including the thickness of the foundation walls, how the foundation is built, footing and wall placement, Rebar schedule, as well as other construction notes and details. This page may also include a floor framing plan.
  • Cross Sections: Cross sections are views from the top to the bottom of the house plan showing structural details related to the construction of the home. They will show the composition of the foundation, interior and exterior walls, roof, floor and stair details. They also show rooflines, ceiling heights, and the relationships between floors. Cross sections may be on a separate page or on various pages throughout the home plan.
  • Basic Electric: This page shows the locations of outlets, switches, and fixtures. It may be on a separate page, or located on the floor plan page.
  • Simple Plumbing: This page shows the locations of the bathtubs, showers, toilets, and sinks. This may be found on the floor plan, or it might be on a separate page.
  • Details: This page includes the structural details for the construction of the house.

What's Not Included

  • Architectural or Engineering Stamp - handled locally if required
  • Site Plan - handled locally when required
  • Mechanical Drawings (location of heating and air equipment and duct work) - your subcontractors handle this
  • Plumbing Drawings (drawings showing the actual plumbing pipe sizes and locations) - your subcontractors handle this
  • Energy calculations - handled locally when required
Starting at
Loading...
What's included?
Plan Set
Select...

Foundation
Select...

Options
Optional Add-Ons
+$0

Loading...
Price Match Guarantee
Cost to Build Report
Still deciding? Calculate the cost to build this house in your area.
Loading...
Customize This Plan
Need to make changes? We will get you a free price quote within 1 to 3 business days.
Cost to Furnish Report
Instant room-by-room estimates for your entire furniture & home decor plan, matched to your budget.
Loading...

Square Footage Breakdown

Total Heated Area

4,100 sq. ft.

Lower Level

1,885 sq. ft.

1st Floor

1,885 sq. ft.

2nd Floor

330 sq. ft.

Beds/Baths

Bedrooms

3

Full bathrooms

4

Foundation Type

Standard Foundations

Walkout

Exterior Walls

Exterior Walls

2x6

Dimensions

Width

114' 0"

Depth

72' 0"

Max Ridge Height

35' 5"

Garage

Type

Attached

Area

966 sq. ft.

Count

3 Cars

Entry Location

Front

Ceiling Heights

Lower Level

9'

First Floor

9'

Second Floor

10' 3"

Room

Ceiling Type

Height

Great Room

Cathedral

13' 2''

Loft

Vaulted

10' 3''

Roof Details

Primary Pitch

10 on 12

Secondary Pitch

N on N

Architectural Style

Mountain

Plan Collections

Square Footage Breakdown

Total Heated Area

4,100 sq. ft.

Lower Level

1,885 sq. ft.

1st Floor

1,885 sq. ft.

2nd Floor

330 sq. ft.

Beds/Baths

Bedrooms

3

Full bathrooms

4

Foundation Type

Standard Foundations

Walkout

Exterior Walls

Exterior Walls

2x6

Dimensions

Width

114' 0"

Depth

72' 0"

Max Ridge Height

35' 5"

Garage

Type

Attached

Area

966 sq. ft.

Count

3 Cars

Entry Location

Front

Ceiling Heights

Lower Level

9'

First Floor

9'

Second Floor

10' 3"

Room

Ceiling Type

Height

Great Room

Cathedral

13' 2''

Loft

Vaulted

10' 3''

Roof Details

Primary Pitch

10 on 12

Secondary Pitch

N on N

Architectural Style

Plan Collections

* Please note that all sale prices and promotions featured on our website are subject to change without prior notice. While we strive to provide accurate and up-to-date information, occasional discrepancies may occur due to factors beyond our control. We encourage you to verify all details, including pricing and availability, before making any purchase. Exclusions or restrictions may apply to specific promotions. We reserve the right to modify or cancel any sale at our discretion. Thank you for your understanding and happy shopping!Let's go back to the top.