

Total Heated Area
2,805 sq. ft.
1st Floor
1,959 sq. ft.
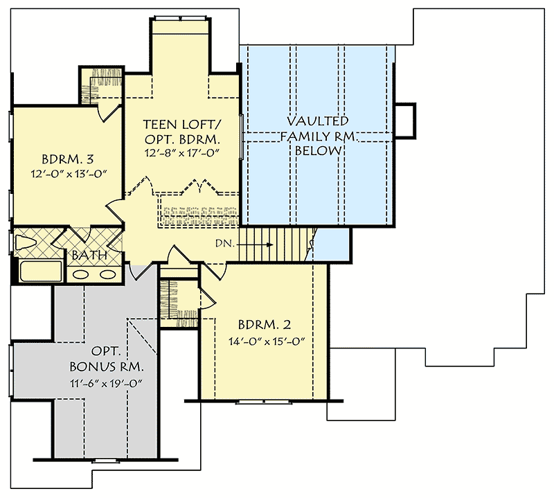
2nd Floor
846 sq. ft.
Basement Unfinished
1,959 sq. ft.
Bonus
271 sq. ft.
Bedrooms
4 or 5
Full bathrooms
3
Standard Foundations
Crawl, Slab, Walkout
Exterior Walls
2x4
Width
59' 0"
Depth
53' 0"
Max Ridge Height
29' 6"
Type
Attached
Area
538 sq. ft.
Count
2 Cars
Entry Location
Side
First Floor
10'
Second Floor
9'
Primary Pitch
10 on 12
Framing Type
Stick
Total Heated Area
2,805 sq. ft.
1st Floor
1,959 sq. ft.
2nd Floor
846 sq. ft.
Basement Unfinished
1,959 sq. ft.
Bonus
271 sq. ft.
Bedrooms
4 or 5
Full bathrooms
3
Standard Foundations
Crawl, Slab, Walkout
Exterior Walls
2x4
Width
59' 0"
Depth
53' 0"
Max Ridge Height
29' 6"
Type
Attached
Area
538 sq. ft.
Count
2 Cars
Entry Location
Side
First Floor
10'
Second Floor
9'
Primary Pitch
10 on 12
Framing Type
Stick