


Total Heated Area
3,385 sq. ft.
1st Floor
1,900 sq. ft.
2nd Floor
1,385 sq. ft.
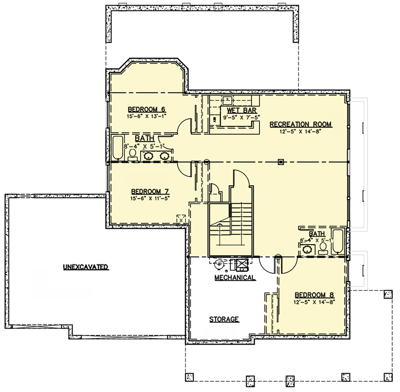
Optional Lower Level
1,830 sq. ft.
Porch, Front
492 sq. ft.
Porch, Combined
492 sq. ft.
Deck & Porch
354 sq. ft.
Bedrooms
5, 6, 7, or 8
Full bathrooms
3, 4, or 5
Half bathrooms
1
Standard Foundations
Basement
Exterior Walls
2x6
Width
73' 0"
Depth
62' 0"
Max Ridge Height
28' 1"
Type
Attached
Area
1616 sq. ft.
Count
3 Cars
Entry Location
Front
First Floor
9' 1"
Second Floor
9' 1"
Room
Ceiling Type
Height
Great Room
Cathedral
0' 0''
Primary Pitch
6 on 12
Secondary Pitch
4 on 12
Framing Type
Truss
Total Heated Area
3,385 sq. ft.
1st Floor
1,900 sq. ft.
2nd Floor
1,385 sq. ft.
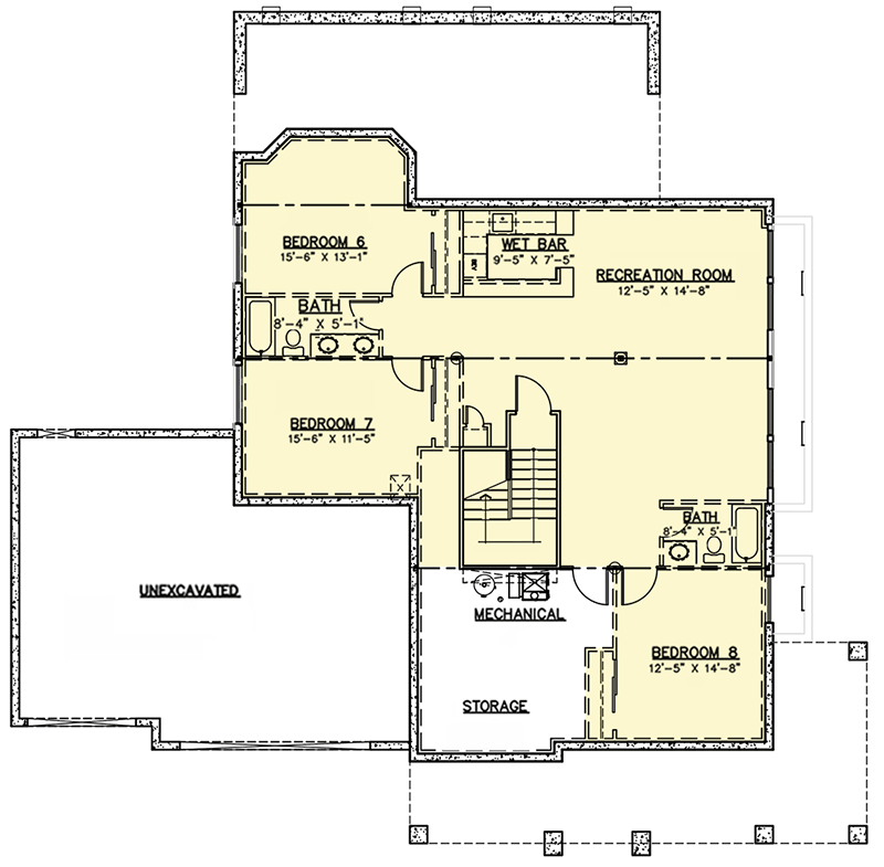
Optional Lower Level
1,830 sq. ft.
Porch, Front
492 sq. ft.
Porch, Combined
492 sq. ft.
Deck & Porch
354 sq. ft.
Bedrooms
5, 6, 7, or 8
Full bathrooms
3, 4, or 5
Half bathrooms
1
Standard Foundations
Basement
Exterior Walls
2x6
Width
73' 0"
Depth
62' 0"
Max Ridge Height
28' 1"
Type
Attached
Area
1616 sq. ft.
Count
3 Cars
Entry Location
Front
First Floor
9' 1"
Second Floor
9' 1"
Room
Ceiling Type
Height
Great Room
Cathedral
0' 0''
Primary Pitch
6 on 12
Secondary Pitch
4 on 12
Framing Type
Truss