

Total Heated Area
4,306 sq. ft.
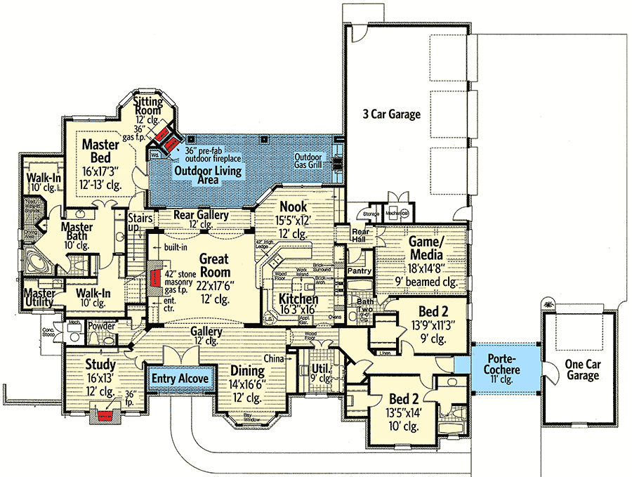
1st Floor
3,800 sq. ft.
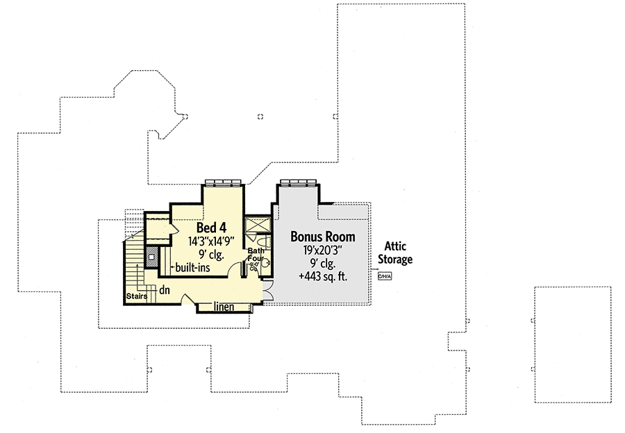
2nd Floor
506 sq. ft.
Bonus
443 sq. ft.
Bedrooms
4
Full bathrooms
4
Half bathrooms
1
Standard Foundations
Slab
Exterior Walls
2x4
Width
115' 5"
Depth
83' 0"
Max Ridge Height
34' 9"
Type
Attached
Area
1232 sq. ft.
Count
4 Cars
Entry Location
Side, Courtyard
First Floor
9'
Second Floor
9'
Primary Pitch
12 on 12
Secondary Pitch
8 on 12
Framing Type
Stick
Total Heated Area
4,306 sq. ft.
1st Floor
3,800 sq. ft.
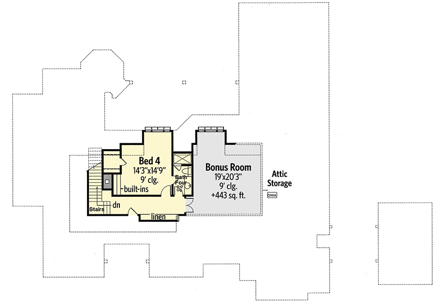
2nd Floor
506 sq. ft.
Bonus
443 sq. ft.
Bedrooms
4
Full bathrooms
4
Half bathrooms
1
Standard Foundations
Slab
Exterior Walls
2x4
Width
115' 5"
Depth
83' 0"
Max Ridge Height
34' 9"
Type
Attached
Area
1232 sq. ft.
Count
4 Cars
Entry Location
Side, Courtyard
First Floor
9'
Second Floor
9'
Primary Pitch
12 on 12
Secondary Pitch
8 on 12
Framing Type
Stick