Exclusive



Total Heated Area
7,502 sq. ft.
Lower Level
2,483 sq. ft.
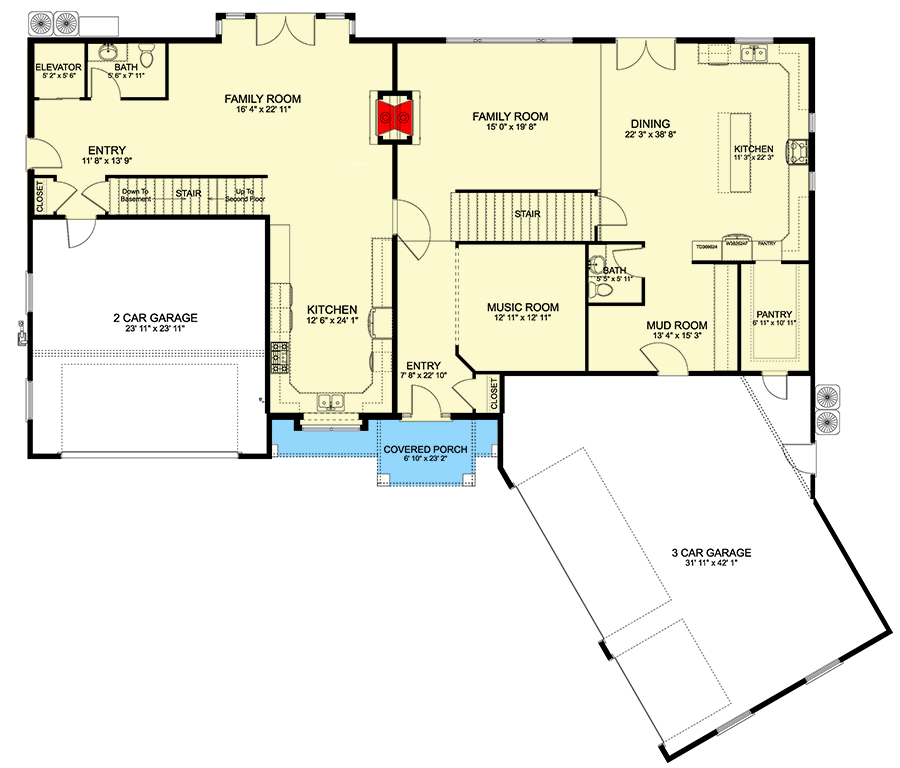
1st Floor
2,533 sq. ft.
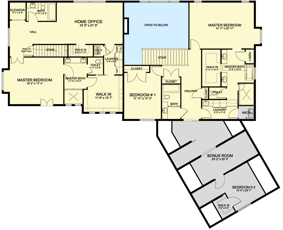
2nd Floor
2,486 sq. ft.
Bonus
685 sq. ft.
Porch, Front
116 sq. ft.
Workshop
614 sq. ft.
Bedrooms
5 or 6
Full bathrooms
6
Half bathrooms
2
Standard Foundations
Basement
Exterior Walls
2x6
Width
87' 7"
Depth
74' 1"
Max Ridge Height
30' 0"
Type
Attached
Area
1635 sq. ft.
Count
5 Cars
Entry Location
Front, Courtyard
Total Heated Area
7,502 sq. ft.
Lower Level
2,483 sq. ft.
1st Floor
2,533 sq. ft.
2nd Floor
2,486 sq. ft.
Bonus
685 sq. ft.
Porch, Front
116 sq. ft.
Workshop
614 sq. ft.
Bedrooms
5 or 6
Full bathrooms
6
Half bathrooms
2
Standard Foundations
Basement
Exterior Walls
2x6
Width
87' 7"
Depth
74' 1"
Max Ridge Height
30' 0"
Type
Attached
Area
1635 sq. ft.
Count
5 Cars
Entry Location
Front, Courtyard