LogoLogo TaglineLogo Tagline
Loading...
Plan 46480LA

Exclusive

Exclusive Modern Farmhouse Plan with Vaulted Living Room and Screened Porch

Heated S.F.
3,252
Beds
3 - 4
Baths
3.5
Stories
2
Cars
3

Floor Plan

Plan 46480LA

Main Level
Main Level
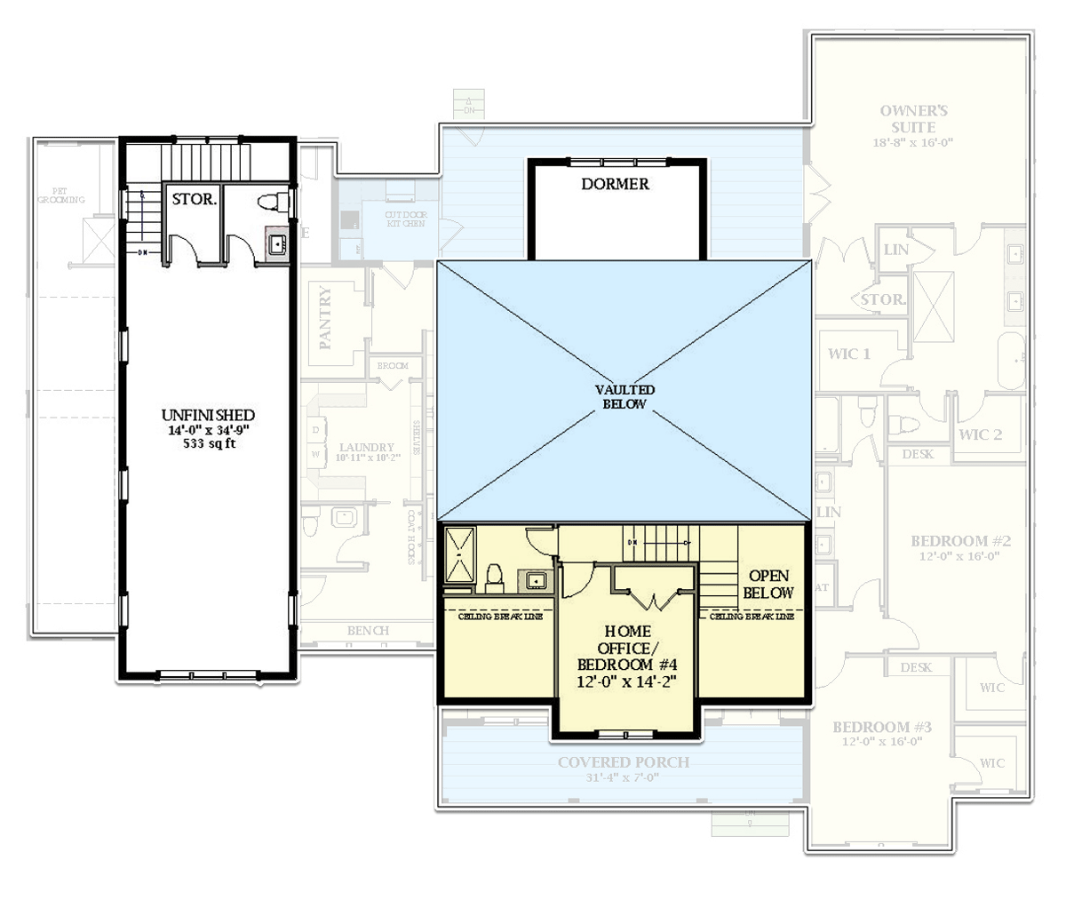
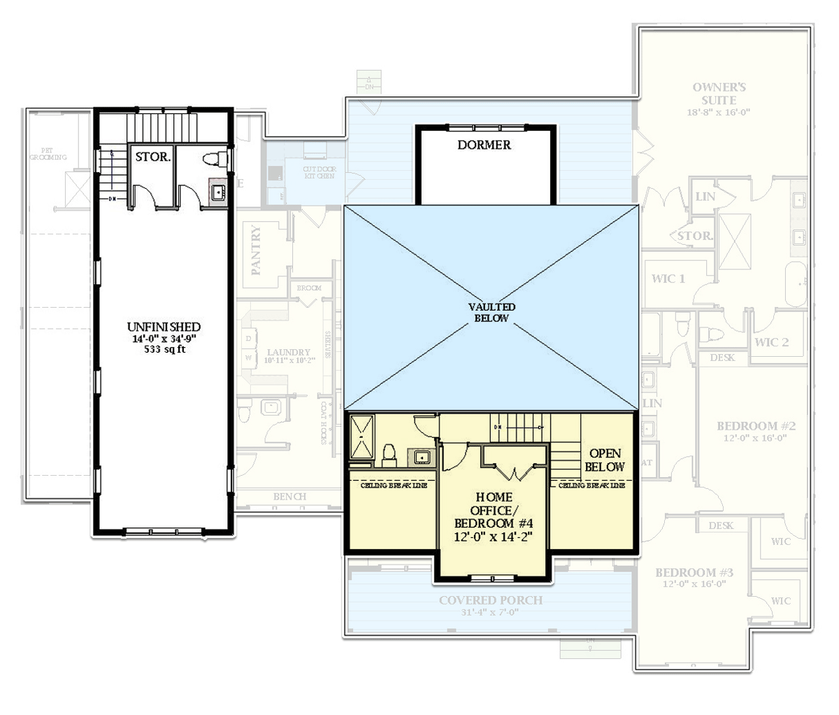
2nd Floor
2nd Floor

Plan 46480LA

M-F 9am-5pm EST |

1-203-761-8500

Main Level

Plan 46480LA: Exclusive Modern Farmhouse Plan with Vaulted Living Room and Screened Porch - Floor Plan - Main Level - Country, Farmhouse, Hill Country, Modern Farmhouse, New American, Traditional, Transitional

2nd Floor

Plan 46480LA: Exclusive Modern Farmhouse Plan with Vaulted Living Room and Screened Porch - Floor Plan - 2nd Floor - Country, Farmhouse, Hill Country, Modern Farmhouse, New American, Traditional, Transitional

Plan Details

  • Thoughtful features can be found throughout this exclusive Modern Farmhouse plan that delivers over 3,200 square feet of living space.
  • A vaulted ceiling soars above the combined living room and kitchen, where an island with a bar sink provides seating for six. Glass sliders encourage you to spend time on the screened porch while a formal dining room with built-in buffet prioritizes family and friends.
  • Three bedrooms consume the right side of the design with the owner's suite tucked towards the rear. French doors provide access to the screened porch from the owner's suite and the attached bath provides two closets and 5 fixtures.
  • A bedroom on the second level neighbors a full bath and can be used as a home office or flexible space.
  • Extra room in the 3-car garage is defined as a pet grooming space and workshop, and an unfinished bonus space above the garage includes a powder bath.
  • NOTE: Please allow 20-25 business days for delivery.

What's Included

  • Floor plans with window and door schedules
  • Roof plan
  • Elevations
  • Front and rear perspectives on some (but not all) plans
  • Building section, eave detail and typical stair detail
  • Interior perspectives and elevations
  • Electrical plans
  • Foundation plan
  • Floor framing plans
  • Ceiling framing plans
  • Roof framing plan
View Sample Plan

What's Not Included

  • Architectural or Engineering Stamp - handled locally if required
  • Site Plan - handled locally when required
  • Mechanical Drawings (location of heating and air equipment and duct work) - your subcontractors handle this
  • Plumbing Drawings (drawings showing the actual plumbing pipe sizes and locations) - your subcontractors handle this
  • Energy calculations - handled locally when required

Starting at

Loading...
Price Match Guarantee
What's included?

FORMAT & LICENSE

Choose an option

$0

Not sure what to choose?

Pointer link icon

FOUNDATION

Choose an option

+$0

OPTIONS

Choose Additional Options

+$0

Loading...

Modify this Plan

Receive a free modification quote within 3 business days.

Loading...

Start with a Cost Report

Calculate the cost to build & furnish your home.

Loading...
Loading...

Square Footage Breakdown

Total Heated Area

3,252 sq. ft.

1st Floor

3,009 sq. ft.

2nd Floor

243 sq. ft.

Bonus

612 sq. ft.

Porch, Front

222 sq. ft.

Porch, Rear

447 sq. ft.

Workshop

219 sq. ft.

Beds/Baths

Bedrooms

3 or 4

Full bathrooms

3

Half bathrooms

1

Foundation Type

Standard Foundations

Crawl

Exterior Walls

Exterior Walls

2x6

Dimensions

Width

86' 0"

Depth

71' 0"

Max Ridge Height

31' 0"

Garage

Type

Attached

Area

743 sq. ft.

Count

3 Cars

Entry Location

Side

Ceiling Heights

First Floor

10'

Second Floor

9'

Roof Details

Primary Pitch

10 on 12

Framing Type

Stick

Architectural Style

Country

Plan Collections

Square Footage Breakdown

Total Heated Area

3,252 sq. ft.

1st Floor

3,009 sq. ft.

2nd Floor

243 sq. ft.

Bonus

612 sq. ft.

Porch, Front

222 sq. ft.

Porch, Rear

447 sq. ft.

Workshop

219 sq. ft.

Beds/Baths

Bedrooms

3 or 4

Full bathrooms

3

Half bathrooms

1

Foundation Type

Standard Foundations

Crawl

Exterior Walls

Exterior Walls

2x6

Dimensions

Width

86' 0"

Depth

71' 0"

Max Ridge Height

31' 0"

Garage

Type

Attached

Area

743 sq. ft.

Count

3 Cars

Entry Location

Side

Ceiling Heights

First Floor

10'

Second Floor

9'

Roof Details

Primary Pitch

10 on 12

Framing Type

Stick

Plan Collections

* Please note that all sale prices and promotions featured on our website are subject to change without prior notice. While we strive to provide accurate and up-to-date information, occasional discrepancies may occur due to factors beyond our control. We encourage you to verify all details, including pricing and availability, before making any purchase. Exclusions or restrictions may apply to specific promotions. We reserve the right to modify or cancel any sale at our discretion. Thank you for your understanding and happy shopping!Let's go back to the top.